Типовые серии хрущевок. Фото планировок
С 1957 года, после принятия закона, который предусматривал устранение излишеств в проектировании домов, в СССР стали возводиться здания нового типа. В народе такие дома получили название «хрущевки» (производное от фамилии генерального секретаря ЦК КПСС Н.С. Хрущева). Такие дома получили второе название – хрущебы, в основном, из-за неудобной и непропорциональной планировки комнат, узких коридоров и пролетов площадок, тонких стен и как результат – ужасной шумоизоляции. В этой статье мы расскажем о том, что такое типовые серии хрущевок, постараемся выделить основные плюсы и минусы этих зданий. Особенности планировки предоставим в виде описаний и фото.
Типовые серии хрущевок: основные плюсы и минусы домов
Давайте рассмотрим основные характеристики квартир и определим особенности каждой серии хрущевок, которые возводились на протяжении 27 лет. Стоит заметить, что изначально хрущевки предполагалось использовать, как временное жилье и эксплуатационный срок здания составлял от 25 до 50 лет. Но, как известно, в таких домах проживают люди и в наше время. К минусам хрущевок можно отнести плохую шумоизоляцию и теплоизоляцию (зимой прохладно, а летом слишком жарко в квартире), не всегда удачную планировку квартиры и подъезда: узкие коридоры, маленькую кухню, отсутствие мусоропровода и очень часто лифта. К основным плюсам таких домов можно отнести невысокую стоимость.
К основным плюсам таких домов можно отнести невысокую стоимость жилья и развитую инфраструктуру вокруг здания. Как правило, недалеко от хрущевок есть садики, школы, магазины и отличная транспортная развязка. Если денежных средств на покупку квартиры мало, то хрущевка – не самый плохой вариант. Тем более, такие здания в Москве и других городах России, подлежат сносу, в этом случае владельцы получают новенькое жилье, или реконструкции и перепланировке.
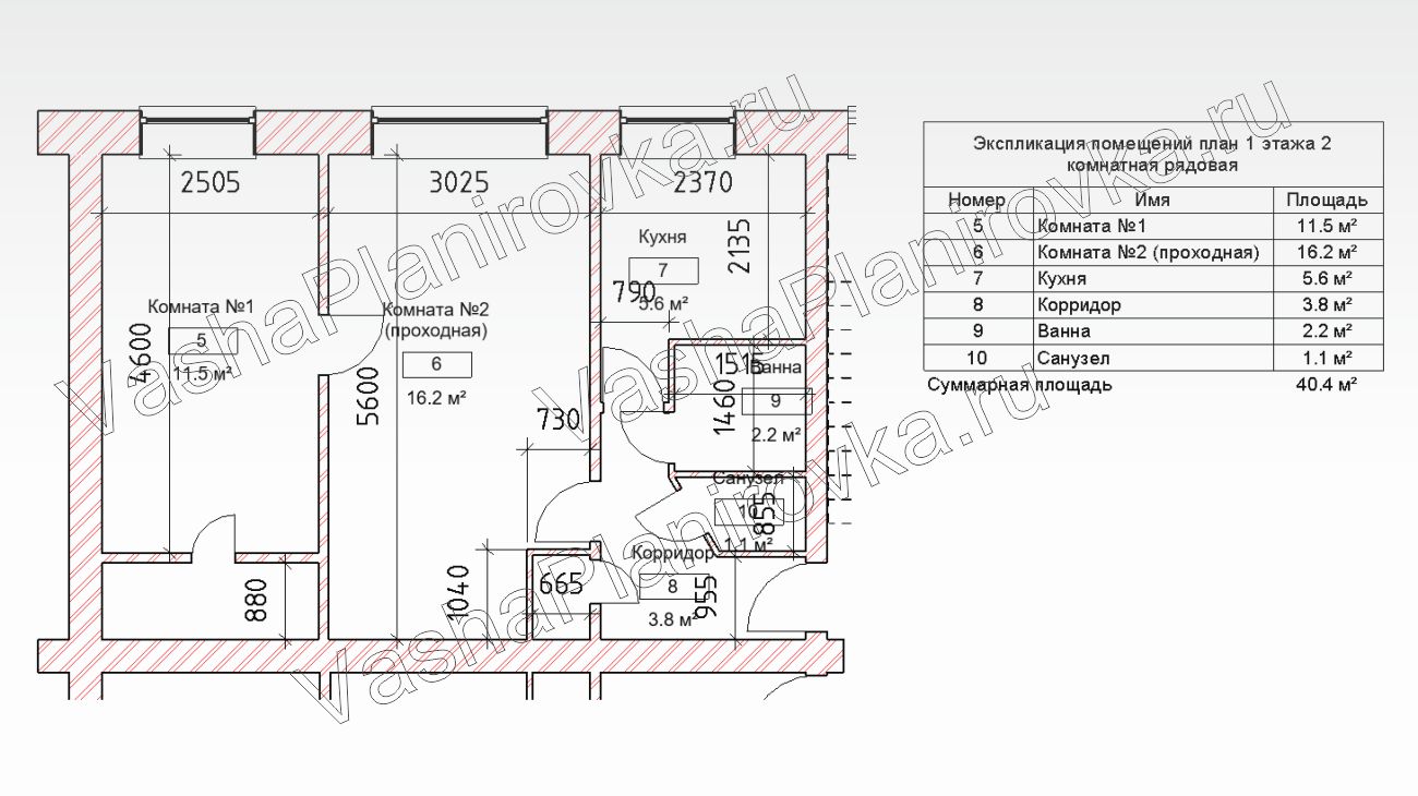
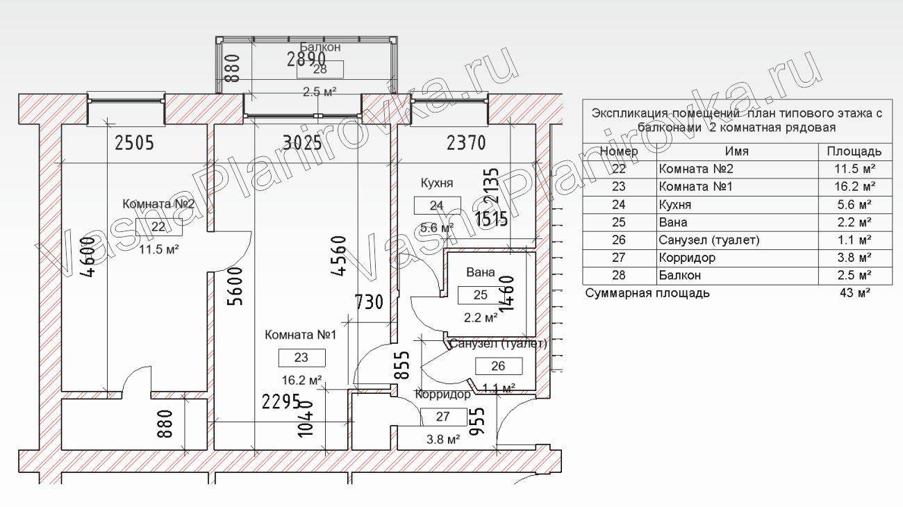
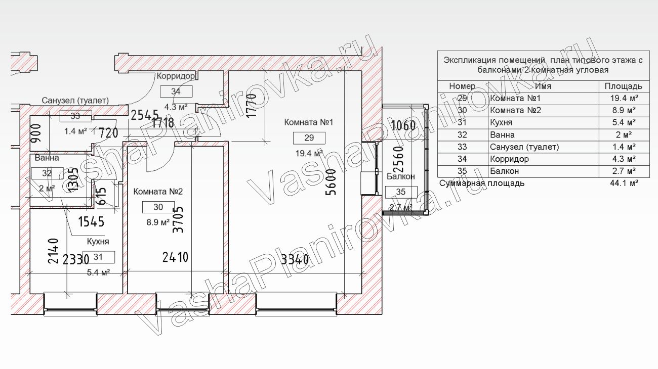
Серия 1-464 (1960 – 1967 гг.)
Одной из самых популярных в СССР серий хрущевок стала 1-464 (1960 – 1967 гг.). Это панельный дом с 5 этажами, редко можно встретить 3 и 4 этажные здания. Во всех квартирах есть балконы (также дополнительные кладовки), а вот лифты не предусмотрены и жителям здания приходиться подниматься и спускаться по ступенькам, что достаточно тяжело пожилым людям, семьям с маленькими детьми. Санузлы в квартирах совмещенные, в подъезде нет общего мусоропровода, а количество квартир на площадке составляет 4. Высота потолков в квартирах – 2,5 м2, кухни менее 6 м2, если быть точнее – 5,8 м2. Квартиры 1, 2 и 3-х комнатные.
Серия 1-335 (1963 – 1967 гг.)
С 1963 по 1967 гг. территория застраивалась домами серии 1-335. Это тоже панельные здания, с высотой потолков 2,54 м., балконами в каждой квартире, совмещенными санузлами, отсутствием лифта и мусоропровода. Площадь кухни немного больше, чем в предыдущей серии – 6,2 м2, площадь потолков – 2,5 м. На площадке располагается четыре квартиры – от 1 до 3-х комнатной. Помимо балконов в квартирах есть дополнительные кладовки и встроенные шкафы.
Серия 1-434 (1958 – 1964 гг.)
Эта серия строилась с 1958 года по 1964 год, в различные года застройки немного видоизменялись планировки квартир. Так, например, в зданиях 1958 года в однокомнатных квартирах площадь жилой комнаты составляла 18,6 м2, а в 1959 году она уменьшилась до 18,2 м2, в 1969 г. – площадь комнаты составляла 17,7 м2. И так во всех типах квартир площадь жилых помещений варьировалась в сторону уменьшения и увеличения. А вот площадь кухни осталась неизменной – 5,8 м2, как и высота потолков – 2,5 м. Дома – кирпичные, совмещенные санузлы, а в каждой квартире есть балкон, кладовая и встроенные шкафы.
<?php related_posts(); ?>
Картинки – чертеж (по годам)
1 комнатная 1958 год
1 комнатная 1959 год
1 комнатная 1960 год
1 комнатная 1961 год
1 комнатная 1964 год
2 комнатная 1958 год
2 комнатная 1959 год
2 комнатная 1960 год
2 комнатная 1964 год
3 комнатная 1958 год
3 комнатная 1959 год
3 комнатная 1960 год
3 комнатная 1961 год
3 комнатная 1964 год
Серия 1-467 (1959 – 1969 гг.)
Последняя серия, которую мы рассмотрим, строилась с 1959 по 1969 год. Это блочные дома, высота потолков, как и в предыдущих сериях – 2,5 м, площадь кухни – от 6,6 м2 до 7,7 м2. Во всех квартирах (1, 2 и 3-х комнатных) есть балконы кроме 1 этажа. Санузлы в ранних версиях зданий — раздельные, а в поздних – совмещенные, отсутствует мусоропровод. К достоинствам квартир этой серии относят возможность их перепланировки, к недостаткам – смежные комнаты во многих квартирах. Картинка – чертеж:
Ей казалось, что в «Эпицентре» безопасно
До 5 марта Ирина оставалась там, потому что, по словам Ольги, ей казалось, что в «Эпицентре» безопасно, — но после того как оттуда стали эвакуироваться другие сотрудники, женщина решила тоже поехать домой. Ее старшая дочь объясняла телеканалу ТСН, что там есть погреб, где можно прятаться.
Ольга говорит, что она недоумевала, почему ее мама была единственной, кто остался в «Эпицентре». Она допытывалась у матери, как получилось, что уехавшие из торгового центра коллеги не взяли ее с собой. «Ну, вот так. Сказали, что у них места нет», — отвечала ей мать.
Ольга с сестрой искали среди знакомых волонтера, который смог бы отвезти маму домой. «И мы почти нашли, к ней должен был приехать наш знакомый, который помогает людям добраться. Он возил людей из Киева во Львов, на запад Украины. Но его надо было ждать два дня, а там уже начали сильно стрелять, в “Эпицентре” стало небезопасно. И она решила поехать сама», — рассказывает Ольга. По ее словам, Ирина в целом была очень самостоятельной и упрямой и с ее решениями сложно было спорить.
Некоторые дизайнерские хитрости
Значительную роль в визуальном расширении пространства и создании эффекта легкости малогабаритной квартиры играет правильное сочетание цвета, рисунка и материала отделки стен, пола и потолка. Дизайн двухкомнатной квартиры в хрущевке может основываться на некоторых хитростях, которые порой используют дизайнеры и профессионалы интерьерного дела:
- Пастельные цветовые тона с преобладанием светлых оттенков создают необходимый зрительный эффект, в то время как яркий и интенсивный цвет обеспечивает эффект визуального сжатия.
- Для небольших комнат подходит мелкий цветовой рисунок, орнамент.
- Высота комнаты зрительно увеличивается при белом или близком к белому цвете потолка. Можно использовать натяжные потолки.
- Эффект высоты обеспечивает разноуровневая конструкция потолка из гипсокартона. Правильный подбор осветительных приборов позволяет усилить эффект.
- Покрытие пола может быть светлым или цветным, но должно совпадать с общей цветовой палитрой комнатного интерьера. Цвет напольного покрытия тоже способен визуально раздвигать стены.
- Выбор мебели — важный элемент. Дизайн двухкомнатной квартиры в хрущевке подразумевает минимизацию количества предметов. Их следует подбирать в тон общему оформлению. Для маленьких комнат наиболее оптимальны раскладные столы, диваны раздвижного типа, многофункциональные комоды.
- Фотообои несколько вышли из моды, но при их правильном выборе можно обеспечить воздушность и визуальную безграничность помещения.
- Занавески на окнах дополняют общее впечатление об интерьере. В небольших помещениях не стоит развешивать громоздкие шторы, особенно темных оттенков. Лучше всего использовать легкие ткани светлой цветовой гаммы.
Выбор стиля и отделки
Главное требование дизайнеров при обустройстве двухкомнатной «хрущёвки» — это поддержание единой стилистики оформления интерьера для всех комнат. Если в точности придерживаться этого требования, то можно получить функциональное и очень красивое пространство. Подобное жилище отличает индивидуальный характер, а малометражность уходит на второй план
Согласитесь, мало кто станет обращать внимание на размер комнаты, если она будет отделана в духе лофт. Это помещение воспринимается как творческое пространство, а не простая «хрущёвка». Грамотным решением для малометражки считается скандинавский подход
Его отличают светлые оттенки, природные текстуры и утончённая геометрия в дизайне декора. Такое сочетание удивительным образом придаёт помещению ощущение простора, лёгкости и света
Грамотным решением для малометражки считается скандинавский подход. Его отличают светлые оттенки, природные текстуры и утончённая геометрия в дизайне декора. Такое сочетание удивительным образом придаёт помещению ощущение простора, лёгкости и света.
Современный стиль объединяет в себе всё самое лучшее от остальных дизайнов. Его отличает эстетика обстановки и продуманность каждой детали. Мебель здесь многофункциональная, преобладают зеркала, светильники и цветовое оформление — всё это играет на визуальное увеличение общего пространства и при этом выигрышно смотрится в интерьерах.
Неплохо вписывается в «хрущёвку» классика. Благодаря богатому текстилю и элегантной мебели можно создать изысканный интерьер, в подобной обстановке можно будет позабыть о скромных габаритах «хрущёвок». Особняком стоит хай-тек — это стиль будущего. Его отличает глянец, подсветка, светлые колеры и округлая мебель. Такой дизайн словно растворяет все границы и преображает «хрущёвку» до неузнаваемости.
Переделка хрущевки двушки
Двухкомнатных хрущевок в домах этих лет большинство. Недостатки у них такие-же, как и у однокомнатных: маленькие площади и неудобная планировка, проходные помещения. Тем не менее, большинство проблем можно решить переносом некоторых стен. Например, смежные комнаты можно разделить, а попутно из двухкомнатной сделать трехкомнатную.

Переделка хрущевки: из «трамвайчика» делаем две раздельные комнаты
Ставим дополнительную перегородку, отделяющую комнату от коридора. Таким образом получается довольно обширное по размерам помещение, которое можно использовать как кладовку, а можно превратить в гардеробную. Второе помещение — длинное и узкое — разбивается на две зоны: спальню и гостиную при помощи легкой перегородки из гипсокартона или другого листового материала.
На фото ниже — другой тип проходных комнат в двушке: — чтобы попасть во вторую комнату, первую нужно пересечь от одной стены до другой. Крайне неудачная планировка в том плане, что функциональность первого помещение очень низкая: выпадает «мертвая» зона прохода. А так как часто в торце второй комнаты сделана кладовка, то и она не может использоваться полностью.

Еще вариант переделки двухкомнатной квартиры в трехкомнатную
По предложенному варианту переделки форма ванной за счет переноса стены становится прямоугольной, прихожая объединяется с первой комнатой. Ее используют как гостиную, из которой сделан вход в кухню. Дальнее помещение разбито на две небольшие спальни
Обратите внимание на перегородку между двумя спальнями — она нелинейная, чтобы была возможность устроить небольшую гардеробную в обоих комнатах

Перепланировка хрущевки: 2 комнаты
Можно обычную двухкомнатную квартиру в панельной хрущевке превратить в современную квартиру-студию с объединенной гостиной-кухней. Основная задача при такой перепланировке — добиться разрешения перенести входные двери. При этом бывшая прихожая превращается в гардеробную. Кухня и гостиная объединяются за счет частично снесенной перегородки, также объединяется санузел.
При желании вторую комнату можно разбить на две при помощи легкой перегородки, которая отделяет спальню рабочей зоны или кабинета. Чтобы зонирование было более полным но при этом в спальне был доступ солнечного света, перегородку можно делать не на всю высоту, а примерно на 1,5 метра.

Интересный вариант перепланировки угловой двушки
Очень эффектно решен вопрос переделки двушки в этом варианте переделки. Фактически она стала трешкой. За счет того, что прихожая скошена, увеличена площадь санузла. Перегородка, отделяющая кухню от комнаты частично разобрана. Вторая комната разделена на две части, площадь второй увелисена за счет кладовки и стенного шкафа. Получилось две отдельных спальни, причем за счет того что квартира угловая, окна есть в обеих.
Коридор имеет необычную форму — его стены расположены по диагонали. Функциональность его небольшая, но и площадь тоже. А в остальном очень хороший вариант.
https://youtube.com/watch?v=ymx4ydCClMM
Из однушки – в евродвушку
Квартира всего 34 квадратных метра, но функционально она ничем не хуже полноценной двухкомнатной квартиры. Владелец небольшого магазина — молодой маркетолог.
Дизайнеры Buro Brainstorm объединили кухню и часть комнаты, чтобы создать удобную зону для приготовления пищи и просторную столовую, разделив их перегородкой.




В спальне с выходом на балкон установлена полноценная кровать и встроен вместительный шкаф, с помощью которого удалось вместить перекладину.


Спроектировав ванную комнату, дизайнеры добились практически невозможного, установив столешницу с накладной раковиной и стиральной машиной, унитаз и ванну. Пространство расширено за счет верхнего шкафа с зеркальными дверцами.


Переделка 4 х комнатной хрущевки
При увеличении количества комнат в квартирах этой планировки, недостатки только усугубляются: маленькие санузел и кухня больше не становится, комнаты часто — проходные. Один из самых неудачных вариантов на фото ниже. Это то, что было «ДО» того.
Перепланировка 4 х комнатной хрущевки: фото «до»
В этой квартире относительно большая по площади прихожая, но она малофункциональна. Единственный угол с приличными стенками занят кладовкой. Все остальные стены использовать проблематично: в прихожую выходит 7 дверей.
Перепланировка 4 х комнатной хрущевки: фото «после»
В предложенном варианте комнаты имеют более правильную форму — ближе к квадрату, что проще использовать. Осталось две обособленных спальни, а две комнаты превращены в столовую и гостиную. Из прихожей вход в выгороженную гардеробную комнату.
Санузел остался раздельным, площадь ванной увеличена за счет спрямления стены. Часть, которая ранее относилась к коридору также требует усиления гидроизоляции.
Секреты оформления
Дизайн маленькой кухни в хрущевке должен основываться на визуальном расширении пространства. Правильное оформление позволит увеличить площадь и придаст помещению домашнего уюта и тепла.
Пол
В качестве напольного покрытия стоит выбирать влагостойкий ламинат, кафельную или керамическую плитку, линолеум без крупного рисунка. Укладывать покрытие следует по диагонали, а плашки не должны быть слишком большими (если речь идет о ламинате или паркете).
Комбинированное покрытие: основная площадь закрывается ламинатом, а рабочая зона выделяется водостойким керамогранитом
Стены
Здесь можно выбрать декоративную штукатурку, обои под покраску, стеновые панели. Вертикальные полосы «вытянут» кухню вверх, но сузят. Горизонтальные, наоборот, помогут ее расширить, но «опустят» потолок. Отдавайте предпочтение однотонным, легкомоющимся покрытиям. Отделка фартука может быть представлена сталинитом или керамической плиткой. Если осталась свободная стена, ее можно оклеить фотообоями с перспективой, которые удлинят помещение.
Фартук из нержавеющей стали гармонично вписывается в дизайн кухни, оформленной в современном стиле
Потолок
Для кухни в хрущевке с высотой потолка 2,7 м подойдет двухъярусная подвесная конструкция из гипсокартона с точечной подсветкой по периметру. Также можно рассмотреть вариант «парящего» потолка. Подобный эффект достигается при помощи светодиодных лент, вмонтированных в карниз. Если высота не позволяет, рекомендуется использовать ПВХ-пленку или простое окрашивание. Оптимальный и бюджетный вариант покрытия – белая водоэмульсионная краска.
Глянцевый потолок визуально увеличит малогабаритную кухню
Освещение
Одного солнечного света порой бывает мало, чтобы обеспечить хорошую видимость на кухне. Кроме того, темное помещение визуально воспринимается как более тесное и маленькое. Поэтому стоит заранее позаботиться об установке дополнительных осветительных приборов. Это могут быть галогенные лампы, бра, люстра, точечная подсветка, светодиодные ленты. Отдельная подсветка фартука и обеденной зоны поможет сэкономить на электроэнергии в будущем.
Для подсветки рабочей зоны применяются локальные источники света
Цвет
Для малогабаритных кухонь подойдут пастельные тона, персиковый, песочный, молочный, белый, бежевый, коричневый цвет. Желательно, чтобы интерьер был светлым – так помещение будет казаться просторным и свободным. Однако чтобы кухня не напоминала больничную палату и выглядела более стильно и современно, допускается яркий акцент в отдельных деталях.
Разбавить однотонный интерьер помогает добавление ярких пятен в виде цветной посуды
Стиль
В первую очередь стоит обратить внимание на лаконичные и простые стили. Это минимализм, модерн, хай-тек, эко-стиль. Классический и восточный дизайны будут неуместны, поскольку они предполагают гораздо большие габариты помещений
Также можно рассмотреть этнический деревенский стиль кантри, который в свою очередь подразделяется на французский прованс и скандинавский
Классический и восточный дизайны будут неуместны, поскольку они предполагают гораздо большие габариты помещений. Также можно рассмотреть этнический деревенский стиль кантри, который в свою очередь подразделяется на французский прованс и скандинавский.
Кухня в стиле прованс: узнаваема, самобытна и очень уютна
Для современных дизайнеров нет невыполнимых задач: даже из самых маленьких кухонь они могут сделать функциональное и уютное помещение. Идеи и секреты специалистов по оформлению интерьера помогут самостоятельно разработать эскиз будущей кухни и воплотить самые смелые мечты в реальность.
Оригинальные дизайны
Не часто обладатели хрущевских квартир обращаются за помощью по оформлению жилья к профессиональным дизайнерам. Скорее, создается свой собственный, индивидуальный стиль. Несомненные его достоинства в том, что у собственного стиля нет никаких правил, он в меньшей степени подвержен веяниям капризной моды. Главная составляющая индивидуального стиля-личное предпочтение. Любому человеку по силам придумать и воплотить стильный дизайн хрущевки.
Принимая во внимание прежде всего небольшие площади помещений, скорее, особое внимание стоит уделить функциональности и практичности. Здесь придут на выручку компактные предметы интерьера, встроенные шкафы, различные системы хранения
Желая преобразить квартиру в новом году самое время перебрать дальние антресоли, верхние полки шкафов.
Никогда не поздно избавится от ненужных вещей, старого хлама. Психологи давно заметили, что наводя порядок в квартире человек подсознательно наводит порядок в своих мыслях и, следовательно, в своей жизни.
Так, даже небольшие перемены, связанные с обустройством жилья, могут дать положительный заряд энергии на целый предстоящий год.
Хрущевка — это какой тип дома и его особенности
Хрущевками называют советские типовые панельки или кирпичные дома с малогабаритными квартирами. Они строились с 1956-го по начало 1980-х годов. В большинстве случаев дома имеют пять этажей, а вот лифтов там нет. Их возведение началось после постановления, которое называлось «Об устранении излишеств в проектировании и строительстве». Уже только по этому названию можно догадаться, что стандартная хрущевка — это дом и квартира с простыми архитектурными решениями. Типовые серии хрущевок строились из панельных блоков (наиболее распространенный вариант), блочных материалов и кирпича.
Перечислим, какие серии домов-хрущевок преимущественно строились в Москве и других городах России:
- панельные пятиэтажки 1-335, 1-464, 1-466, 1-467, 1-515/5, 1605-АМ/5, 1МГ-300, 1Р-303-2, II-07, II-07-19, II-32, II-32-130, II-35, II-38;
- блочные пятиэтажки 1-439А, 1-439Я, 1-510, II-17;
- кирпичные пятиэтажки 1-447, 1-511, II-34;
- блочные девяти- и восьмиэтажные дома II-18-01/08 Б, II-18-01/09 Б;
- кирпичные девятиэтажки II-18-01/09 МИК;
- каркасно-панельные дома К-7.
Некоторые проекты домов позволяли возводить здания не в пять этажей, а в три или четыре. Такие вариации типовых серий хрущевок строились преимущественно вне крупных городов: за МКАДом и КАДом, в провинции.

Кирпичные хрущевки серии домов
Многоэтажные кирпичные дома строились по разному. Были разработаны проектные группы, определяющие характеристики домов, на которых они были возведены. Наиболее распространенными были:
- I-528.
- I-447
- И-511.
- II-14.
- II-34.
- И-513.
- II-20.
- Мм1-3.
Кирпичные дома серии И-528 считаются постройками высочайшего качества. Высота потолков из хрущевки из кирпича до 2,7 м. Для наружных стен использован кирпич. Полы покрыты качественным паркетом, двери обшиты панелями, а сантехника хорошо закреплена.

Планировка 1-комнатной квартиры в хрущевке серии И-528 на первом этаже, угловая планировка


Планировка двухкомнатной квартиры в хрущевке серии И-528 на первом уровне, центральное расположение



Планировка хрущевки 2 комн. Серии И-528 1 этаж

Большинство построек возводились не выше 5-6 уровней. В проекты не входили дорогие элементы, такие как лифт, чердак и мусоропровод. Для строительства выбрали места рядом с хорошим транспортным узлом, с развитой инфраструктурой, стоимость жилья оказалась невысокой.
Особенности
Построенные в середине прошлого столетия дома до сих пор остаются единственным жильем для миллионов семей. И на сегодняшний день кирпичные и крупнопанельные дома до пяти этажей считаются наихудшим архитектурным решением. Зачастую самым простым способом усовершенствовать удручающую планировку квартиры является снос межкомнатных перегородок. При некоторых планировках возможно объединить кухню и комнаты, прихожую и комнату, ванну и туалет. Это позволит расширить площадь квартиры, добавить несколько необходимых метров. Также в некоторых квартирах есть кладовая, которую можно объединить с жилой комнатой.
Размеры коридора обычно наводят тоску. Узкая и темная прихожая в редких случаях может вместить шкаф-купе, поэтому необходимо делать акцент на функциональности, по возможности избавиться от не несущих стен. Если санузел изначально раздельный, его стоит объединить. Тогда можно будет выделить место для стиральной машины и большой угловой ванны. Чтобы сэкономить пространство, можно отказаться от раковины или от ванны в пользу душевой кабины. Любая перестройка стен должна быть согласована со специалистом, независимо от того, в каком доме она проводится: крупнопанельном или кирпичном.
Особенности квартиры не дают возможности перенести кухню в другое место, но зато можно вынести обеденную зону в гостиную. Для этого можно снести перегородку между кухней и комнатой или сделать арочный проем. Такой широкий проход визуально разделит пространство и создаст эффект увеличения площади. Вместо большого вместительного стола можно оставить место на кухне для барной стойки, за которой могут комфортно разместиться до 4 человек.
Двери и окна
- На длинной стене дверные проёмы можно смело расширять. При этом отдайте предпочтение распашным конструкциям с максимально широкими наличниками.
- Другое решение – оформление арки на месте дверного проёма. Край арки отделайте материалом, контрастным по цвету или фактуре по отношению к обоям, штукатурке или краске. Это ещё больше «съест» пространство вдоль длинной стены.
- Если на длинной стене расположены окна, то их тоже лучше расширить. При этом проёмы делайте «раструбом» в сторону помещения. Если же окно находится на одной из коротких стен, то проём делайте строго прямоугольным.
Что важно учесть при ремонте квартиры?
Маленькая квартира может выглядеть стильно и просторно, если подойти к ремонту с фантазией. Специалисты рекомендуют оформлять стены и потолок в светлых пастельных оттенках, но от этих советов всегда можно отступить: например, сделать потолок на полтона темнее, добавить ярких акцентов, оригинальной мебели, динамичных принтов. Декоративный камин украсит гостиную, придаст уюта и элегантности.
На фото светлая отделка в гостиной с встроенным шкафом-купе с зеркальными дверями, который значительно экономит место, увеличивает свет и зрительно углубляет комнату.
На фото ремонт двухкомнатной хрущевки в стиле прованс.
В тренде по-прежнему пол с натуральными текстурами под дерево, который сочетается с любой обстановкой и придает тепла. При ремонте узких помещений следует укладывать ламинат или паркет поперек комнаты, чтобы зрительно расширить ее. Лучше, если вся квартира будет иметь одинаковое напольное покрытие (кроме санузла и кухни): это позволит поддержать единство дизайна.
Смотрите еще один интересный проект ремонта в двушке за 800 тр.
На фото гостиная в стиле лофт с ламинатом, уложенным поперек помещения.
Перепланировка 3 х комнатной хрущевки
Переделка трехкомнатной квартиры в хрущевке серии II-57.3.2. Самое худшее в этом варианте — мизерные размеры туалета и ванной. В основном для того чтобы исправить ситуацию и затевался ремонт. Для перепланировки убрали простенки между туалетом и ванной, примыкающую часть коридора отгородили стеной, в которой сделали двери. Так как в зоне, где ранее был коридор, гидроизоляция перекрытия хуже, требуются в этой зоне дополнительные меры.

Перепланировка трехкомнатной хрущевки: фото до и после
Второе слабое место первоначальной планировки: некуда шкаф поставить. В занятом под ванную отрезке коридора был небольшой стенной шкаф, но он был очень мал. В связи с этим было принято решение перенести стену одной из спален, а на освободившемся месте сделать гардероб.
Чтобы объединить кухню и гостиную, была разрушена часть стены. Согласно проекта, необходимо было произвести усиление прилегающих несущих стен и перекрытия. Так как плита на кухне — газовая, необходимы двери. Были поставлены раздвижные.
Следующий вариант ремонта затевался с целью увеличить площадь санузлов, а также превратить одну из комнат в гостиную-столовую, с выходом в кухню. Попутно требуется получить две спальни.

Перепланировка 3 х комнатной квартиры хрущевки
Были разобраны простенки между туалетом и ванной, часть коридора отходит к санузлу. Для организации нормального пространства прихожей немного сдвигается стена одой из комнат. В кухню делают вход со стороны гостиной, на противоположной стене сделан вход во вторую спальню, а дверной блок, который ранее вел во вторую спальню демонтирован, проем заделан. Об оформлении арок читаем тут.

Переделка планировки: до и после
Еще один вариант. Главная задача, которую решает перепланировка хрущевки — увеличение площади кухни и санузла. Решение для санузла традиционное — убрали простенки, также выровняли выровняли стену. Маленькая кухня объединена со столовой. В ей даже нашлось место для группы отдыха — дивана и телевизора.
Решенная еще одна задача: проходные комнаты разделены. Произошло это за счет уменьшения площади, но помещения стали более функциональными, а в выгороженных площадях сделаны две гардеробные комнаты.
Если вы задумались о том, чтобы убрать перегородку между кухней и комнатой, об оформлении совмещенной кухни и гостиной можно прочесть тут.
Новая квартира из «убитой» двушки
Площадь квартиры 43 кв м. Дизайнер Анастасия Калистова убрала все перегородки и переформировала пространство. Получилось яркое, современное жилье для молодежи. Бывшую кладовую переоборудовали в гардеробную, а кухню сделали более просторной за счет совмещения с гостиной.



Комната была оборудована столовой и телевизором с гостиным уголком. Особенность интерьера — акцентная стена, окрашенная в бирюзовый оттенок. Белый шкаф — встроенный.


Спальня выдержана в спокойных тонах, не имеет лишней мебели и декора. Ее главное украшение — молдинги на стенах, придающие обстановке элегантность.


Площадь санузла увеличили за счет коридора. Интерьер продуман до мелочей: в ванной задействован каждый сантиметр.







































