Вентиляция
Одним из условий того, как правильно построить туалет на даче, является наличие хорошей вытяжной вентиляции, позволяющей выводить из ямы характерные канализационные запахи. Вентиляция в данном случае представляет собой обычную трубу, нижняя часть которой заводится напрямую в яму, а верхний располагается над крышей таким образом, чтобы между кровлей и краем трубы было расстояние свыше 20 см.

Для вентиляции подходит любой отрезок трубы, но самым простым и доступным вариантом будет пластиковое изделием сечением 10 см. Труба устанавливается вдоль задней стенки домика и фиксируется с использованием хомутных креплений. Чтобы улучшить тягу, на оголовье трубы стоит установить дефлектор.
Туалет с выгребной ямой
Лучший деревенский туалет – это туалет с выгребной ямой. Для ее очистки придется вызывать ассенизатора, но зато нужник будет служить очень долго и будет максимально экологичным.
Выгребную яму делают так:
Копают углубление там, где будет стоять туалет. Размеры котлована (и в стороны, и вниз) должны быть где-то на 40 см больше, чем размеры будущей ямы. На дно углубления высыпают глину, разведенную водой до пастообразной формы. Толщина глины – от 20 до 30 см. Этот слой будет мешать нечистотам впитываться в грунт. Когда глина полностью высохнет, дно и стены ямы покрывают кирпичом или просмоленными досками. Сверху штукатурят и смазывают водоотталкивающей пропиткой
Важно выбрать пропитку, которая подходит для агрессивной среды. Сверху ямы кладут перекрытие из бруса или досок
Толщина материала – от 40 мм
В перекрытии делается отверстие для люка. Сам люк делают двойным, чтобы минимизировать запахи. Устанавливают трубу для вентиляции.
После этого можно построить туалет на улице над выгребной ямой. Подойдет любой вид сооружения, главное – чтобы по размерам он совпадал с габаритами ямы.
Глубина ямы для дачного туалета
Каждому, кто сооружает дачный туалет, нужно знать, какую яму копают в таких случаях. Слишком большое углубление не нужно – достаточно будет 1х1,5 м, а если туалетом будут пользоваться нечасто, то даже 1х1,2 м. Глубина – от 2,5 до 3 м.
В идеале выгребная яма должна быть прямоугольной, а не квадратной. Это упрощает работу ассенизатора, ведь на поверхности более длинной стороны ямы можно обустроить люк, куда будет окунаться шланг.
Люфт-клозет
Если необходимо обустроить летний туалет, которым зимой не будут пользоваться – подойдет вариант с люфт-клозетом. Это небольшая кабинка с унитазом, на небольшом расстоянии от которой находится герметичная емкость для нечистот. Можно даже установить люфт-клозет внутри дома, рядом со стеной, а емкость – снаружи.
Туалет с бочкой
Туалет для дачи, построенный своими руками, может использовать вместо выгребной ямы бочку. Принцип такой:
- если грунтовые воды залегают глубоко, то у бочки удаляют дно и используют только оставшийся цилиндр – его просто вкапывают в землю под туалетом;
- если грунтовые воды находятся близко к поверхности, то у бочки оставляют дно и используют ее как обычную выгребную яму – вызывают ассенизатора по мере заполнения.
Выгребная яма из шин
Из старых автомобильных шин можно устроить отличную выгребную яму. Объем вмещаемых отходов зависит только от глубины ямы – чем больше шин в ней разместят, тем реже ее придется чистить.
Делают так:
- Выкапывают выгребную яму. Глубина – на 20 см больше, чем суммарная ширина покрышек. В этом случае яму делают не прямоугольной, а круглой – по форме шин.
- Высыпают на дно ямы гравий, формируя слой толщиной в 20 см.
- На гравий кладут покрышки, одну на другую.
- Сверху делают деревянное перекрытие и устраивают туалет любого вида.
Хотя стыки между шинами не герметичны, отходы сквозь них почти не просачиваются. Гравий служит хорошим фильтром для жидкости, а густые нечистоты придется иногда удалять самостоятельно.
Яма для дачного туалета из кирпичей
Сельский туалет своими руками построить нетрудно. Но если грунтовые воды на участке залегают очень близко к поверхности, то выгребную яму следует делать полностью герметичной. Лучший способ – использовать кирпичи:
- Копают яму желаемых размеров.
- Дно заливают слоем бетона толщиной около 10 см. Для равномерного распределения бетона используют влажный песок.
- Через неделю, когда бетон полностью затвердеет, начинают строить кирпичные стены. Делают это так же, как и при любом строительстве из кирпича – по одному ряду, смазывая стыки бетоном.
- Когда стенки ямы будут полностью покрыты кирпичами – оставляют до полного застывания. Спустя 3 недели уже можно строить туалет.
Яма из железобетонных колец
Если грунтовые воды залегают глубоко, то можно использоать для выгребной ямы железобетонные кольца. Это отличный вариант – они просты в применении, надежны и полностью герметичны. Поэтому их широко используют в создании колодцев.
Устанавливают кольца так:
- Выкапывают круглую яму, диаметр которой – где-то на 30 см больше, чем диаметр кольца. Высоту ямы «подгоняют» под общую высоту колец, чтобы не осталось пространства, не покрытого железобетоном.
- Насыпают на дно ямы до 15 см гравия.
- Ставят первое кольцо, смазывают окружность сверху бетоном и ставят второе кольцо. Всего устанавливают от 2 до 4 штук.
- Снова насыпают гравий так, чтобы он заполнил нижнее кольцо хотя бы наполовину.
Дизайн дачных туалетов
Чего только наши сибмамы не придумают, чтобы удивить своих гостей на даче, и чтобы домочадцам было уютно и комфортно!
Фото мама ЮляШа: «На стене разместилась папина коллекция сигарет, в вазе летом стоят живые цветы, а на этажерке разместилась маленькая библиотека».
Фото ksai – в туалете есть даже шторка и полка для мелочей.
Фото ksai – снаружи туалет отделан планками, окрашенными в контрастный цвет.
Фото ksai – окно туалета открывается.
Фото Birka «Пока я с детьми была в отпуске, наш папа творил нечто. Это трудно назвать туалетом, мы его прозвали «Дом для Смурфиков».
Фото Klara: «Построил муж из природного материала. К сожалению, недалеко шла расчистка участков, и пилили деревья (осины). Вот и решили осинам дать вторую жизнь. Получилась избушка (сруб) на бетонной яме. Сейчас снаружи украшен цветочками в маленьких горшочках».
Фото Klara: «Внутри на стене висит деревянное изделие в виде страшной “морды лица”, выжженой сыном на уроке труда с помощью выжигателя».
Фото внутреннего дизайна туалета от Olushka_mama.
Фото туалета-мельницы натал14.
Фото очень красивых навесных петель на двери туалета и красивой окраски показывает Екатерина Александровна: «Сначала хотели купить готовый, но раздумали – захотелось просторный и удобный. Поэтому решили строить сами. Фотографий всех этапов строительства, к сожалению, нет. Строили вместе с мужем – один он работать не любит, поэтому все постройки на даче делаем вместе – и дом, и баня, и беседка. Туалет решено было сделать просторным -1,5 на 1,5 м. Муж придумал не просто покрасить его пропиткой, а прежде обжечь горелкой, чтоб видно было структуру дерева. И вот что получилось».
Фото отделанного блок-хаусом и стильно окрашенного туалета от Дракон 2012
Фото весёленького туалета от B@gIr@
Фото Убаня: «Это трафареты, сама их делала. Краски, кажется, обычные, на Ленинском рынке брала. Голубая и красная – для внутренних работ. А зеленая – для наружных работ».
Фото Убаня
Можно просто украсить петуниями ваш туалет, как на фото Кошуша.
И, наконец, самый необычный туалет, который когда-либо мне встречался, демонстрирует победитель конкурса дачных гальюнов-2016 Alyona.
Фото Alyona: «Покажу гальюн, который выстроил мой папа. Простой деревенский туалет, без современных удобств, умывальника и освещения, но всё же необычный. Папа не любит плотничать, зато ему нравятся плиточно-мозаичные и малярные работы. После забора из бутылок и облицовки домика и бани дошла очередь и до туалета. Вот что вышло. В июле и августе туалет затмевает цветущая клумба».
Фото Alyona: «Через пару лет после постройки решил покрасить, сейчас так. Конструкцию всю сам придумывал, по ходу дела прилаживал бутылки и подставлял дощечки. В светлое время суток внутри прекрасное освещение сквозь бутылки».
Фото Alyona: «Чтобы технологические полочки не пропадали, понаставил туда разных неприкаянных побитых бутыльков и керамики. Стульчак слеплен из того, что было – сломанный стул, прохудившаяся кастрюля. Вот такая получилась «обсерватория».
Санитарно-гигиенические нормы для дачного туалета
Перед тем, как приступить к строительству, необходимо изучить пункт 7.1 СП 42.13330.2016. В своде правил описаны требования к расположению туалета и расстояниям от него до иных построек:
- до стен соседнего дома – не менее 5 м;
- до ближайшего источника водоснабжения (колодца) – не менее 25 м.
Нормы для дачного туалета
Также желательно обратить внимание на глубину заложения грунтовых вод во время весенних паводков. Если их горизонт расположен на расстоянии менее 2,5 м от поверхности, туалет с негерметичной выгребной ямой строить нельзя
В данном случае поможет лишь установка непроницаемой емкости.
Чертежи дачных туалетов
Чтобы построить хорошую уборную в саду, нужен подробный чертеж туалета для дачи с размерами. Есть много чертежей под разные виды нужников, так что не приходится ничего придумывать самостоятельно. Схема дачного туалета с указанными размерами сильно упрощает строительство и экономит много времени.
Скворечник
Чертеж туалета “Скворечник”
Туалет-скворечник – это самая популярная ввиду своей простоты конструкция. Чертеж туалета элементарен, модель действительно напоминает домик для птиц. Это прямоугольная вертикальная кабинка с односкатной крышей с небольшим уклоном к задней стене.
Чтобы построить скворечник, достаточно установить каркас и обшить его любым стройматериалом, а спереди установить простую дверь. Такой туалет полностью делают из дерева.
Избушка
Чертеж туалета “Избушка”
Избушка, или теремок – это ближайший родственник скворечника. Они очень похожи, но разница в том, что крыша у избушки двускатная. Нужно очень тщательно и точно строить туалет-теремок по размерам на чертеже, иначе есть риск, что крыша готового сооружения будет «перекошена» в одну сторону.
Этот нужник делают немного расширяющимся кверху. Строят его из деревянного бруса, обшивают тоже деревом. Если отделать сооружение «под сруб», то благодаря симпатичной форме оно будет выглядеть как настоящий теремок.
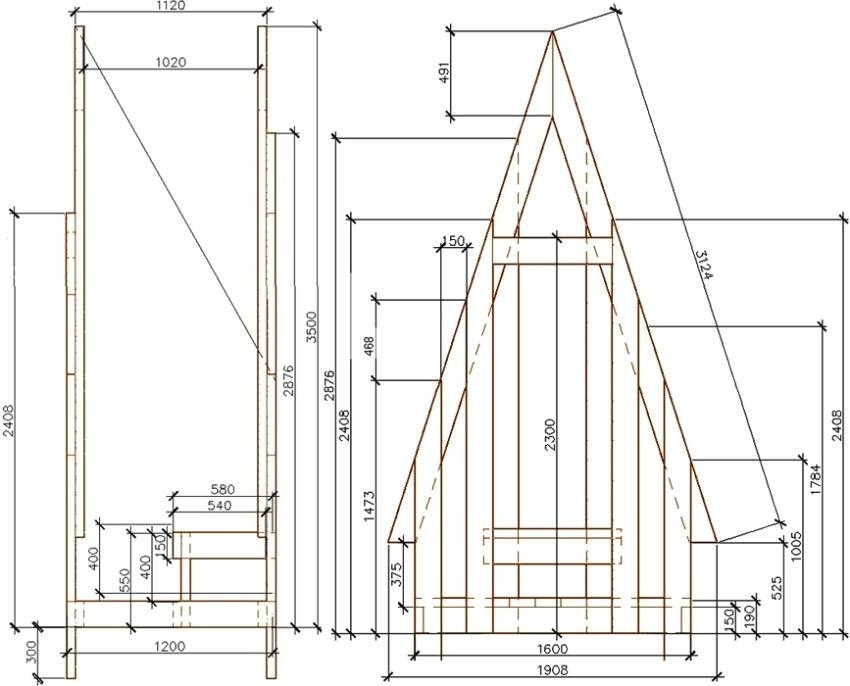
Шалаш
Чертеж туалета “Шалаш”
Отхожее место в виде шалаша очень легко построить. Это двускатная постройка, напоминающая по форме вигвам. Такой чертеж дачного туалета из дерева с размерами позволяет сэкономить стройматериалы и время, требуемое для возведения.
Делают шалаш из дерева, металла или даже шифера. Плюс такой постройки – в том, что она не похожа на туалет, и любопытные прохожие, заглядывая через забор, могут принять ее за хранилище садового инвентаря.
Домик
Чертеж туалета “Домик”
Туалет-домик похож на избушку, но, в отличие от нее, не расширяется кверху. Прямоугольную кабинку венчает простая двускатная крыша, благодаря которой туалет выглядит уютным.
Габариты туалета для дачи примерно одинаковы для всех моделей, и домик – не исключение. Строить его лучше всего из дерева, чтобы он выглядел эстетичнее, но и обшитый металлом домик тоже не сильно портит вид на дачный участок.
Веяния времени
Сегодняшний сельский туалет уже не тот, что был 20 и даже 10 лет назад. И дело не только в моде:
- Экологическая ситуация в целом ухудшилась, в связи с чем ужесточились санитарные требования. Традиционные решения не всегда им соответствуют.
- В технологии переработки и обезвреживания отходов произошла настоящая революция, и многие ее достижения доступны и в быту.
- Повысились требования людей к качеству жизни, включая не только комфорт с эргономикой, но и внешний дизайн.
Исходя из этого, мы узнаем, как построить сельский туалет своими руками. С одной небольшой оговоркой: прочно мы коснемся только кирпича и бетонных конструкций: это уже капитальное строительство со всеми вытекающими требованиями. В дачном доме построить отдельный теплый капитальный туалет можно только в исключительных случаях из-за небольшой площади земельного участка. Рассмотрим архитектурный проект важнейшего здания, в котором содержится качество жизни, а туалет в этом отношении является одним из самых сложных элементов. Если не самое сложное. Тем не менее, решение подлежит; Например, см рис.

Различные сельские туалеты
Давайте посмотрим, как наконец навести красоту. Сначала вам предстоит заняться строительством, а проект уже связан с ним. Чтобы построить уютный, чистый, гигиеничный и приятный глазу туалет, нужно сначала решить другие задачи:
- Выберите тип системы до истощения, истощения и использования сточных вод, исходя из местных условий.
- Укажите расположение туалета на странице.
- Выбрать тип и конструктивное решение наземной конструкции; Simplee – каюты или каюта.
- Позаботьтесь о декоративном проекте: что из подходящего в данном случае получится сделать.
- Оценить стоимость строительства.
Надо сказать, что эти проблемы тесно связаны между собой и с ними приходится бороться. В стороне только каюта; Он почти не взаимодействует с подземной частью и базой. Так что, в общем, туалетную кабину можно сделать, какую угодно, и это самая простая и дешевая часть работы. Вот почему мы начнем с этого.
Полезные советы
Чтобы построить туалет на даче своими руками правильно, а пользоваться им было удобно и просто, нужно обратить внимание на советы опытных строителей:
- Выгребная яма заполняется быстрее, если в нее постоянно попадает туалетная бумага и другие средства гигиены. Необходимо разместить в туалете специальную емкость под мусор, который при наполнении можно сжечь или утилизировать другим способом.
- Яму под нечистоты в туалете можно сделать самому, но лучше приобрести специальный септик. Это облегчит очищение и продлит срок эксплуатации. В таких емкостях предусмотрено 2 горлышка. Первое для поступления отходов, второе для их выкачки.
- Чтобы неприятный запах не распространялся, нужно установить в стульчак сиденье от унитаза с крышкой.
- Если туалет для дачи торфяной, то можно сделать обычный стульчак подъемным. Разделить его на три части и смонтировать из каждой дверцу. В первом отсеке разместить ведро для мусора. Посередине будет находиться сам туалет, а с другого края ведро с торфом. Когда придет время наполнить или опорожнить одно из ведер, нужно просто поднять крышку.
- Необходимо продумать обустройство внутри кабинки туалета. Можно купить пластиковые полки или сделать деревянные своими руками. Там будут храниться предметы гигиены. Если ширина кабины позволяет, то можно поставить небольшой умывальник с раковиной и сделать дополнительное отверстие в полу для слива воды в яму или септик.
- Стены туалета из доски можно сделать утепленными. Для этого строят двойной каркас, обшивают с обеих сторон, а между стенами вкладывают пенопласт или специальный утеплитель. Если туалет утеплен, то необходима хорошая вытяжная система.
Замечание! При строительстве необходимо уделять особое внимание основе каркаса. Оно должно быть ровным и крепким.. Толщина доски для основы не должна быть меньше 5 см
В противном случае готовую постройку может сильно повести в сторону
Толщина доски для основы не должна быть меньше 5 см. В противном случае готовую постройку может сильно повести в сторону.
Особенности эксплуатации
Если канализационное сооружения сделано правильно, то проблем с ее эксплуатацией не возникнет. Главная проблема – откачка нечистот. Здесь три варианта:
- старый дедовский метод – веревка и ведро;
- фекальный насос и емкость;
- ассенизационная машина.
Сегодня можно увеличить срок периодичности откачки. Для этого в яму засыпают сухие бактерии. Они во влажной среде оживают и активно перерабатывают органику, оставляя на дне активный ил, который является хорошим удобрением для растений. Но, как показывает практика, с годами жировые наслоения увеличиваются на стенках и дне канализационной конструкции, уменьшая ее объем. Даже бактерии с ними не справляются. Выход один – чистить яму вручную, запустив внутрь человека.
Как собирать туалет
Лучше всего, если будет чертёж туалета. Тогда будет меньше ошибок. 
- По периметру ямы возводится основание из деревянного бруса 10×10 см. Брус лучше всего укладывать на целый шлакоблок. Если нет шлакоблока, используют кирпич. Размещают материал по углам выгребной ямы.
- Пол в туалете сооружают из досок, имеющие толщину не меньше 3 см. Дойдя до середины ямы, переходят к созданию стульчика. Для этого по углам устанавливается дополнительный брус.
- Листы стружечной плиты делают метровыми, и прикрепляют к стульчику. А по контуру листы усиливают брусками.
Нижние стойки скелета постройки расположены не в вертикальном положении, а под углом. 
Дальше собирается верхняя часть туалета. Возводится каркас из бруса. Брусья укладываются в основание и на них вертикально устанавливаются брусья размером 50×50 см. Высоту постройки со стороны входа делают больше. Это надо, чтобы вода во время дождя стекала с кровли. Чтобы ещё прочнее сделать туалет, вертикальные брусья соединяются между собой горизонтально брусками. 
К брусу крепятся листы OSB необходимого размера. Получается двускатная крыша. После монтажа листов делается для дверного проёма каркас.
Чтобы сделать кровлю, на саморезы прикручиваются к скатам бруски обрешётки. Далее к обрешётке прикрепляется кровельный материал, например, профнастил или Ондулин. Находим кусок трубы для конька, разрезаем вдоль.
Для такой постройки однозначно нужна дверь. По размерам собирается прямоугольный каркас из брусков. Обшить его можно как доской, так и листами OSB.
Варианты обшивки конструкции
Стены из ориентировано-стружечной плиты можно и не обшивать другими материалами. Достаточно их покрыть лаком по древесине или покрасить краской.
А можно по желанию обшить тем материалом, который остался от строительства других построек либо купить, сайдинг, например. Если для крыши покупается профнастил, то можно взять дополнительно листы для обшивки. Тогда красить листы не понадобится, да и профлист отлично защищает древесину от осадков.
Варианты внутреннего обустройства
Как обустроить туалет внутри – это уже каждый владелец дачного участка решает самостоятельно. Вариантов много. Главное, обустроить в верхней части постройки окошко для вентиляции.
Придётся в самом начале строительства внести в план изменения. Но, если вам поможет опытный плотник, тогда это не проблема.
А вот стульчик возводится дёшево и быстро. Электролобзиком в досках делается отверстие, можно прикрутить от унитаза сиденье. Внутри избушки делают несколько полочек и проводят свет. Пол в туалете не надо отделывать кафельной плиткой. Зимой на ней будет очень скользко, а летом – холодно. Чтобы постройку дополнительно утеплить, делают обшивку двойной. А внутри размещают поролон или другой утеплитель.
Сделать туалет на даче не сложно. Конечно, придётся потратить время. Но, зато экономятся средства на покупку постройки. Главное, на возведение туалета надо настроиться и все моменты продумать.
Выбираем дизайн
И пусть ваш туалет будет самой простой постройкой, его надо красиво оформить. Тем более, что сегодня найти чертёж и подобрать дизайн по вкусу не проблема. И будет очень оригинально и эффектно, когда на дачном участке туалет будет иметь форму избушки или сказочного домика.
Здесь, главное, включить свою фантазию! Например, есть несколько прекрасных вариантов, соорудив которые, не стыдно будет показать их гостям либо соседям.
- Форма «Шалаш». Такая постройка не нуждается в больших тратах. В результате «шалаш» получается прочным, ему не страшен ветер и природные осадки. Из недостатков отмечаем тесноту внутри, а также потребуется на участке выделить много места.
- «Скворечник». Места на участке займёт минимум, также средств на постройку уйдёт мало. Построить сможет и новичок, настолько несложные работы при возведении. Минусы: продувается ветром, не держит зимой температуру, саму конструкцию надёжной назвать нельзя. Но, на сегодня это один из самых популярных видов построек на дачных участках.
- «Домик». Для постройки не понадобится много стройматериала и земли под строение. Похож «домик» на «скворечник», только его можно утеплить и сделать более прочным. Для украшения обычно используют как покупные декоративные элементы, так и сделанные своими руками.
- «Избушка». У этой постройки оригинальный и эффектный вид. По устойчивости, надёжности и защищённости «избушка» превосходит остальные конструкции.
По форме крыши различают: односкатные и двускатные. К односкатным принадлежит «скворечник». К двускатным крышам принадлежат остальные перечисленные постройки. И сегодня они приобретают всё большую популярность.
Когда выбран вариант постройки, то определиться надо с размерами. Обычно глубина туалета составляет 1,5 метра. Для «скворечника» и «избушки» ширину рекомендуют 120 см, для «шалаша» примерно 150 см.
Также надо учитывать, что у всех видов туалетов общий недочёт – не закрывающаяся дверь. Поэтому, если нужна надёжная, защищённая от порывов ветра постройка, то на двери навешивают потайные либо амбарные петли.
Тип «Избушка»
Рассмотрим, как можно сделать своими руками такой туалет на даче.
Возведение подобной конструкции состоит из нескольких этапов:
- Строительство и укрепление стенок выгребной ямы.
- Возведение стен туалета.
- Обшивка и утепление.
- Установка крыши и кровля её профнастилом.
- Монтаж двери и необходимой фурнитуры.
Понадобится для работы:
- шесть метров деревянного бруса 10×10 см;
- 16 м брусков 5×5 см;
- для обшивки нужны 4 листа ориентированно-стружечной плиты (OSB) не меньше 9 мм;
- дюймовые доски 40 м, шириной 18 см;
- доски для пола, толщина 3 см;
- кровельный материал с волокнистым наполнителем, 3 листа;
- и по мелочам: гвозди, сиденье на унитаз, куски бруса на обрешётку, саморезы, пропитка для древесины.
Для работы нужно: ножовка, рулетка, молоток, строительный уровень, шуруповёрт, электролобзик, рулетка.
Поглощающий колодец (дренажный)
Это альтернатива выгребной яме. Главное отличие — в нем нет изолированного дна. НО его даже проще сделать своими руками. Вместо дна в поглощающий колодец насыпается «пирог» из щебня разной фракции, желательно сделать так:
- нижний слой — песок
- средний слой — мелкий щебень
- верхний слой — крупный щебень (можно использовать крупные камни (минимум 5 см) или битый кирпич).
Таким образом получается настоящий фильтр, который позволяет «воде» отделяться от более плотных примесей и уходить в землю.
Для экономии средств и времени, вместо выкладки стен кирпичом, для поглотительного колодца часто используют готовые резервуары из:
- железных или пластиковых бочек (дно вырезается),
- колесных шин, сложенных друг на друга (предварительно лучше срезать загибающиеся края, чтобы в них не застаивалось сами понимаете что).
Поглощающий колодец для туалета из железной бочки (слева) и колесных шин (справа).
Если хочется резервуар побольше – можно сделать 2 – 3 колодца рядом и соединить их переливной трубой. Таким образом, когда первая наполнится на 2/3 начнется перелив излишков во вторую. Можно сделать первую бочку с герметичным дном — это будет отстойник, а последующие — как описано выше.
Дачный туалет со стульчаком и душем
Создание дачного туалета со стульчаком и душем своими руками — это комплексное решение, которое позволяет вам оптимизировать пространство и обеспечить комфортное использование дачи. Давайте подробно рассмотрим этот процесс.
Выбор места и проектирование
Прежде всего, вам необходимо выбрать подходящее место для установки туалета. Это должно быть место, доступное для всех, но при этом обеспечивающее некоторую степень приватности и удаленность от мест общего пользования.
Следующим шагом будет создание проекта вашего туалета. Проектирование поможет вам определить размеры конструкции, место расположения санитарного оборудования и двери, а также предусмотреть необходимую вентиляцию и дренирование.
Строительство каркаса
После разработки проекта вы можете приступить к строительству каркаса туалета. Материал для каркаса можно выбрать исходя из ваших предпочтений и бюджета, это может быть дерево, кирпич, металл или профнастил
Важно, чтобы каркас был прочным и обеспечивал устойчивость конструкции
Установка санитарного оборудования
Следующим этапом является установка санитарного оборудования: туалетного стульчака и душевой кабины. Учтите, что для душа потребуется подведение воды и система дренирования.
Отделка и декор
После установки всего необходимого оборудования, вы можете приступить к внутренней и внешней отделке вашего туалета. Выбирайте материалы, которые будут устойчивы к влаге и легки в уходе. Также не забудьте о вентиляции, чтобы предотвратить образование конденсата и неприятных запахов.
В целом, создание дачного туалета со стульчаком и душем своими руками — это проект, который требует некоторых навыков и времени, но результат, безусловно, стоит усилий. Такой туалет не только улучшит уровень комфорта на даче, но и сделает пребывание на природе более приятным и беззаботным.
Будьте творческими, используйте доступные материалы и создайте функциональное и удобное пространство, которое будет служить вам и вашим гостям на протяжении многих лет.


































