Подборка проектов
Несколько дизайн-проектов четырехкомнатной квартиры.
Дизайн четырехкомнатной квартиры 72 кв. м.
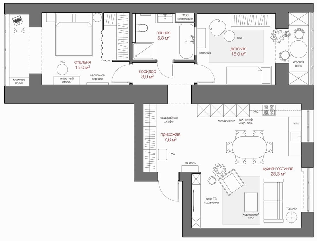
Проект выполнен под нужды семьи с тремя детьми разного возраста. Предполагается, что двое из них еще малыши, а третий – постарше. Для него было принято решение выделить отдельную спальню, для взрослых – вторую и для младших детей – третью. Оставшуюся комнату оборудовали под гостиную, где все вместе смогут собираться для совместного проведения досуга и приема гостей.
Для такой большой семьи желательно наличие двух санузлов, однако такое решение было технически невозможно, поэтому дизайнеры предусмотрели один раздельный санузел.
При проектировании гостиной учитывались вкусы всех членов семьи. Здесь есть и обеденный стол, и мягкий диван, и большая плазма для просмотра душевных фильмов. Помещение наполнено светом, выполнено в белых тонах с яркими и зеркальными включениями. Родительские апартаменты – спокойное помещение в кофейно-бежевых тонах.
Отделка и дизайн комнат четырехкомнатной квартиры соответствуют возрасту, развитию и предпочтению детей. В спальне старшего мальчика современный стиль, удобное место для учебы, светлые, не напрягающие оттенки. Комната малышей вмещает две кровати, общий стол, несколько полок для развивающих игр. Дизайн яркий, веселый, предусмотрены обои, на которых можно рисовать, а потом легко стирать изображения.
Дизайн-проект 4-х комнатной квартиры
Дизайн-проект создавался для семьи из пяти человек – родителей, прекрасной девочки и двух мальчиков. Главным их пожеланием было максимальное использование в интерьере натуральных материалов. Для энергичных и современных людей был выбран стиль лофт с элементами эко.
В гостиной четырехкомнатной квартиры одну из стен облицевали грубым кирпичом, под его расцветку подобрали светлую мебель с древесными фасадами. В гостиной расположились удобный диван, несколько кресел, большая плазма. Дизайн интерьера дополнили интересными светильниками и элементами декора.
Кухню гармонично совместили с коридором для рационального использования пространства. Подобранная брутальная мебель подчеркивает лофт, французские окна ведут на уютный, балкон с кирпичными стенами.
Главный элемент дизайна прихожей – белый стеллаж с хаотично расположенными закрытыми и открытыми окнами, который тянется с кухни.
Спальня родителей в четырехкомнатной квартире совмещена с кабинетом и впечатляет оригинальностью. Стены окрашены в контрастные оттенки, Темную, шоколадную стену разбавляет яркий постер. Комната вмещает множество шкафов для хранения вещей.
В спальне дочери собран воедино эклектичный стиль. Светлые спокойные оттенки, сочетание громоздкого массивного шкафа и легких по структуре стеллажа и стола создают необычную композицию.
Стена в спальне малышей покрыта моющими обоями со специальной краской, сверху которой можно рисовать, а потом стирать детские шедевры. Под окном, размещено два рабочих места. У стен расположены две одинаковые кровати. Цветовая гамма сдержанная, с яркими вставками.
Санузел поддерживает общее для всей квартиры эко-направление. Плитка тёмного оттенка и древесной фактуры покрывает все поверхности. Приборы белого цвета, совмещены с хромированными сантехническими деталями.
Дизайн интерьера четырехкомнатной квартиры
На площади в 145 кв. метров реализован стиль лофт. Несмотря на его минималистичность и строгость, дизайнерам удалось сохранить уютную атмосферу, располагающую к отдыху. Холодность черного металла постепенно переходит к мягким, приятным взору оттенкам. Чем больше комната – тем светлее тон отделки. Это помогает расширить пространство, сделать его воздушным и просторным.
Данный дизайн четырехкомнатной квартиры предусматривает зонирование, которое умело подчеркнуто освещением, состоящим из основного и декоративного.
Мебель сочетает в себе пожелания всех жильцов – тут есть и антикварные предметы, современные гарнитуры, детали, изготовленные по индивидуальному заказу. Элементы декора и текстиль подобраны в одной цветовой гамме, создавая яркие, но ненавязчивые акценты.
Делаем перепланировку
Иногда планировка жилья полностью соответствует вашим потребностям и вам не нужно ничего менять, но бывают случаи, когда требуется перепланировка. Особенно это актуально для семей с детьми (от однокомнатной до двухкомнатной), которым нужна отдельная комната, или когда комнаты в квартире маленькие.
Есть несколько вариантов перепланировки в комнате:
частичный снос стен, за счет чего увеличивается жилая площадь. Например, убрав перегородку между кухней и гостиной, вы получите визуальное расширение обеих комнат. Такого же эффекта можно добиться, объединив холл и коридор. Однако стоит помнить, что сносить можно только ненесущие стены, иначе последствия могут быть негативными;
создание дополнительных внутренних перегородок. Данная перепланировка позволит увеличить количество комнат в квартире, создав из двухкомнатной полноценную трехкомнатную квартиру;
увеличение поверхности под лоджию, балкон
Если первые два варианта вам не подходят, обратите внимание на балкон или лоджию. Выделив их и соединив со спальней, вы получите рабочее место или уголок для отдыха
Соединив холл и лоджию (балкон), вы получите большую комнату, которую легко разделить на зоны (рабочая, зона отдыха, игровая).
Удачные примеры и лучшие варианты
В современном городе в настоящее время при строительстве новых микрорайонов с многоквартирными домами появляется большое разнообразие планировок квартир. Самыми популярными считаются трехкомнатные. Они проектируются строятся как в панельных, так и в более престижных кирпичных домах.
Самым лучшим вариантом считается студия со свободной планировкой. Такая нестандартная квартира позволяет проявить собственную дизайнерскую фантазию и смоделировать для себя наиболее удачный вариант для комфортного проживания.
Планировки трехкомнатных квартир бизнес-класса могут включать в себя высокие потолки, а также несколько санузлов. Конечно же, общая площадь такой квартиры также будет больше обычной.
Также следует отметить, что покупка трехкомнатной квартиры – это выгодное инвестирование, так как цены на такое жилье постоянно растут.
7фотографий
Рассмотрим примеры трехкомнатных квартир. Здесь представлена планировка новой трехкомнатной квартиры. Имеется большой и просторный коридор-холл, где свободно расположены шкафы для одежды, обуви и постельного белья.
Все комнаты изолированы друг от друга. В правой части находится раздельный санузел и кухня. При желании санузел можно сделать совмещенным, что позволит разместить там стиральную машину. В левой части расположены две спальни – одна больше, другая поменьше. В центре находится гостиная, которую можно совместить с кухней, позволив тем самым визуально и физически увеличить общее пространство.
В целом, довольно удачная и современная планировка для семьи из трех или четырех человек.
Еще один вариант планировки трехкомнатной квартиры. Здесь имеется коридор в виде буквы Г. А вот раздельный санузел совместить при всем желании будет довольно сложно, так как ванная и туалетная комнаты находятся в разных частях коридора.
Гостиная довольно просторная и имеет выход на балкон. Выйдя из нее через коридор, мы попадем в кухню. В конце коридора по обе стороны от ванной комнаты слева и справа расположены две спальни.
Все комнаты изолированы друг от друга. Вариант данной квартиры, в целом, довольно хорош, но при желании в нем возможна даже кардинальная перепланировка комнат со сносом стен.
Рассмотрим еще вариант планировки трехкомнатный квартиры, имеющий небольшие отличия от предыдущих вариантов.
Все комнаты изолированы друг от друга. При входе в квартиру мы попадаем сразу в длинный и прямой коридор. Слева от него расположены три спальни. Первые две имеют выход на балкон. В третьей, более просторной спальне, имеется своя гардеробная.
Туалет и ванная разделены друг от друга и, как и во втором варианте, не имеют смежных стен. Справа по коридору, напротив туалетной комнаты, расположена большая и вместительная кухня-гостиная. Она также имеет выход на весьма большой балкон, где можно уютно разместиться целой компанией. В общем планировка довольна хороша и имеет ряд своих особенностей и достоинств.
В заключение хочется сказать, что в настоящее время в приоритете не только комфорт и роскошь квартиры, но и практичность и функциональность. Поэтому упор в современных постройках делается именно на это. Если же хочется сделать более комфортной жилье старого фонда, например, «хрущевку», то вполне можно составить проект перепланировки, воспользовавшись помощью дизайнера. Он отобразит на схеме новое расположение комнат.
Подробнее о современном проектировании трехкомнатных квартир вы узнаете из следующего видео.
Комфортное одиночество
В студии приятнее всего жить одному. На просторных шестидесяти квадратах с избытком хватит места для удобной спальни с двуспальной кроватью, на которой одно удовольствие засыпать. В широкой столовой-гостиной найдется местечко для рабочего уголка с компьютерным столом и другими принадлежностями. Большую часть площади занимает в рассматриваемом интерьере с фото выше зона отдыха. Огромный широкий диван занимает все пространство у телевизора и рассчитан на шумную компанию гостей. Барный стол-стойка с небольшой керамической электроплитой также с радостью примет хозяйских друзей.
В интерьере квартиры основным цветом выступает белый, ему чуть уступает черный. Строгое сочетание цветов разбавляют естественные цвета – плитка под камень на кухне, ламинат в гостиной, зелень на подоконнике и в цветочном горшке. Напольное покрытие объединяет кухню и прихожую в одну «служебную», и гостиную со спальней в «жилую». Уединенность, закрытость спальни дизайнер умело подчеркнул вкраплениями другого стиля: если гостиная сочетает элементы лофта, хай-тека и минимализма, то в спальне последний соседствует с классикой. Тумба на ножках, высокое мягкое изголовье, ниспадающие складки штор – плавные линии и нежные цвета смягчают монохром в отделке.
Интересные детали:
- Цветовое решение: стерильный белый на кухне, где необходим порядок, расслабляющий серый и черный в зоне отдыха
- Зонирование при помощи фактуры материалов
- Темный кухонный гарнитур
- В спальне стена за кроватью покрашена в темный цвет: это и акцент, и визуальное увеличение комнаты в длину
Стандартный план
Планировка 4-комнатной хрущёвки предусматривает следующие помещения:
- две спальни, расположенные в самой дальней зоне;
- третья комната – гостиная, являющаяся проходной для этих спален;
- четвёртая комната – ещё одна спальня, расположенная по соседству от кухни;
- кухня, ванная и туалет располагаются по соседству с прихожей, близко от входа;
- в конце прихожей по соседству с гостиной имеется гардеробный отсек.
Следующая исторически более поздняя разновидность многоэтажного дома – панельный 9-этажный дом, «брежневка» – обладает некоторыми отличиями от «хрущёвки». Спальни и гостиные, кухня и санузел расположены примерно так же, как и в 4-комнатных «хрущёвках», но отличаются по площади.
В Санкт-Петербурге и Москве за последние несколько лет выполняется программа реновации – старые «хрущёвки», многие из которых признаны аварийными, подлежат расселению и разборке. Взамен строительные компании по указу федеральных и местных властей возведут новостройки, в которых площадь комнат немного подрастёт. Кухни, санузлы и коридоры (включая прихожие) станут заметно больше.
Кирпичные «хрущёвки» и «брежневки», вне зависимости от числа комнат в квартирах, обладают меньшей продуваемостью и улучшенной звукоизоляцией.
Формат двухкомнатной квартиры
Это уже история, в которой может жить как один человек, так и целая семья. Такой метраж считается самым популярным для двух жилых комнат, поскольку таким образом каждая комната будет содержать достаточно объема для комфортного проживания. Как распоряжаться комнатами – дело каждого и зависит от потребности живущих.
Однако тут
уже стоит задуматься об единении дизайна, что можно легко добиться за счет
одинакового напольного покрытия и деталей интерьера, которые должны гармонично
перекликаться друг с другом. Сейчас речь идет об материалах фасадов, дверях и
декоре. Как правило, именно эти три вещи делают дизайн целостным в рамках
целого жилья.
Однако всегда нужно оставлять место и для экспериментов, так как каждая отдельная комната может быть выполнена в своем дизайне. Это немного нетипичная ситуация, однако, если жильцам так будет комфортно, то именно их комфорт должен стоять во главе угла создания дизайн-проекта.
Что касается планировки, то даже сегодня удачным вариантом считается распашонка, когда между двумя комнатами расположились коридор и кухня. При таком расположении комнат окна выходят на разные стороны. Когда нет общих стен, создается возможность жить в рамках одной жилплощади, не мешая друг другу. Часто именно пример распашонки дает старт для новых идей, когда нужно разделить площадь по вкусам живущих на ней людей.
Что еще классного
можно придумать, когда создаешь дизайн проект двухкомнатной квартиры 60 кв, так
это перепланировка. Самый простой вариант – совместить кухню с близлежащей
комнатой. Также можно спокойно пожертвовать коридором в пользу жилого
пространства. Такое расширение получило название «евродвушка». Это когда есть
отдельная спальня, отдельные санузлы и просторная гостиная. Сейчас это
оптимальный вариант для многих, учитывая семьи, где порой ребенку отдают спальню,
а в просторной гостиной родители зонируют себе отдельное спальное место.
Зал в маленьком доме
Для небольших помещений нужно учесть ряд обстоятельств:

Если вы хотите использовать гостиную для веселого времяпрепровождения с друзьями, вечеринки, танцы с друзьями, то мебель обязана быть комфортной, не занимать много времени и быстро складываться. Для этого нужна мебель-трансформер.
Из мебели трансформера достаточно будет дивана, раскладного стола и раскладных стульев.

Когда в хрущевке вы решили обустроить комп, то все нужно продумать так, чтоб находящиеся не мешали работать.

Для перепланировки маленькой комнаты лучше посоветоваться с дизайнером. Здесь самым уместным вариантом будет гостиная студия.


Телевизор в наше время играет важную роль при времяпрепровождении, поэтому удачно спланированное место для телевизора преображает гостиную.

Маленькая спальня: состав и размещение мебели
Важно понимать, что функциональная спальня 4 кв м предусматривает минимальный состав мебельного гарнитура. Главным элементом такого маленького спального помещения должна являться только кровать. Остальные элементы мебели присутствуют здесь в минимальном количестве, а ненужные вещи размещаются в иных зонах жилого помещения
Остальные элементы мебели присутствуют здесь в минимальном количестве, а ненужные вещи размещаются в иных зонах жилого помещения.
Для сохранения важнейших метров полезной площади кровать должна размещаться либо изголовьем к реальному окну, либо впритык к одной из стен. Небольшим неудобством последнего варианта является возможность подойти к кровати только с одной стороны, однако такое решение позволяет сделать помещение более просторным.
Варианты перепланировки и зонирования в трехкомнатной квартире
Перепланировка трехкомнатной квартиры может оказаться довольно сложным делом; некоторые типовые планировки практически не подлежат изменениям из-за расположения несущих стен или длинных коридоров, а также колонн или просто маленькой площади. Тем не менее мы собрали для вас актуальные и удачные планировки с практичными идеями, которые могут вам понравиться.

В этом варианте перепланировки, кухню (8 кв. метров), гостиную (20 кв. метров) и прихожую (7,6 кв. метра) объединили в одну комнату, которая получилась очень просторной и с двумя окнами.В детской и спальне лоджии присоединены, там образовались кабинет и игровая комната.Ванная комната расширена за счет одной из спален, теперь здесь есть и ванная чаша, и душевая кабина.Кухонный гарнитур поставлен таким образом, чтобы раковина находилась напротив окна, что очень удобно, а зона для ТВ встроена в нишу.

Эта практичная планировка трехкомнатной квартиры площадью 110 квадратных метров имеет две спальни, в каждой из которых есть ванная комната и гардеробная. Кухня не имеет окна, но спроектирована в американском стиле – с островом и столовой на четыре персоны. В гостиной двери на балкон решены в формате дверей-слайдеров со стеклами от пола до потолка.

Эта планировка трехкомнатной квартиры вполне типична для новостроек Москвы. Гостиная и кухня были объединены, на месте прихожей расположилось помещение для электрощитка, по совместительству – гардеробная. Также есть гардеробная при главной спальне и гостевой туалет.

Еще один вариант перепланировки трехкомнатной квартиры реализован в интересном формате. На месте, где раньше была кухня, теперь расположились гостевой дополнительный туалет и прачечная, на месте прихожей – кухонный гарнитур. Кухня и столовая объединены. На плане в правой части квартиры расположены две спальни, каждая с ванной комнатой и встроенными шкафами-купе. А при гостиной большая лоджия оформлена в стиле патио с диванчиком и летней столовой.

Еще одна удачная планировка трехкомнатной квартиры имеет по гардеробной в каждой из спален и две ванные комнаты. Столь расширенный формат стал возможен благодаря размещению кухни в зоне прихожей и устранению коридора как такового. Теперь здесь есть лишь проходная зона между кухней и гостиной, с обеих сторон острова.

Проблема квартир с длинными коридорами в том, что в них зачастую очень сложно сделать перепланировку, так как вариантов расположения комнат не так уж и много. Но в данном варианте, обе спальни получили встроенные гардеробы, хозяйка – отдельную прачечную и кухню-гостиную открытой планировки, а в прихожей теперь есть встроенный шкаф для одежды.

В данном случае трехкомнатная квартира в хрущевке стала двухкомнатной. Спальню в 6 квадратных метров, которая в некоторых случаях в пятиэтажках также является кладовой, сделали частью главной спальни, которая теперь располагает площадью в 15,6 квадратных метров.

Гостиная или комната для приема гостей
Под гостиную зачастую выбирают помещение с наибольшей площадью, поскольку именно в ней будет собираться вечерами вся семья, приниматься друзья, родные.
Рассмотрим случай, когда у вас гостиная «два в одном» – гостиная – спальня. Если позволяют габариты комнаты, спальное место можно отделить от общей площади. Для этого часто монтируют раздвижную перегородку, либо сооружают гипсокартонную стенку с зеркальными вставками или одним большим зеркалом. Красиво также будет смотреться деревянная полка под потолок с разнообразными мелочами, книгами, живыми цветами.
Ваша главная задача – не перегрузить пространство, при этом разместить в комнате всю необходимую мебель (диван, мягкие кресла, пуфики), бытовую технику, при необходимости обеденный стол. По возможности размещайте мебель вдоль стен, оставляя центр свободным.
Если вы планируете совместить гостиную с кухней, установите на границе между ними барную стойку. Она визуально отделит помещения, не перегружая их.
В случае совмещения зала с прихожей, красиво будет смотреться декоративная перегородка, выполняющая роль стены, а также разное напольное покрытие.
Все что касается оттенков стен, пола, выбирайте исходя из выбранного стиля.
Оформление некоторых отдельных помещений в большой квартире
Проведём перепланировку четырёхкомнатной квартиры с узкой длинной прихожей. Одна стена позволяет расположить высокий (в потолок) шкаф-купе с зеркальными раздвигающимися дверцами и довольно большой комод.

На противоположную стену вмонтированы профили, которые чуть выступают вперёд, помещая в нишу незримые точечные светильники. Такая уловка помогает визуально углубить стену, создав дополнительную свободную площадь.

Детские комнаты, естественно отличаются по признаку: девочка и мальчик. Для мужского пола применяются светло-голубые тона, а для юной леди — розовый цвет. Но, несмотря на гамму, любая комната ребёнка делится на две зоны:
- Серая гостиная: необычные идеи для сочетания оттенков + 200 фото красивого дизайна
- Маленькая гостиная: особенности планировки и зонирования. Фото красивого дизайна в современном стиле
- Бежевая гостиная: идеи сочетания и правильного комбинирования. ТОП-100 фото лучших вариантов дизайна гостиной
- рабочая, настраивающая ребёнка на творческую деятельность, решение уроков. Не стоит применять лишние предметы декора, что провоцирует отхождение от рабочей темы;
- зона для отдыха малыша предполагает наличие удобного спального места, интерьер которой зависит от половой принадлежности ребёнка. Лучше, если кровать имеет встроенные выдвижные ящики для постельных принадлежностей, либо для игрушек.


Как правило, туалетная комната располагает унитаз и небольшую компактную раковину. Чтобы добиться корректировки, то есть гармонии высоты потолка и ширины стен, требуется грамотно комбинировать цветную плитку и её узоры по всему периметру санузла.
Помещение ванны относительно просторное, хорошо, если имеется оконный проём, который выгодно пропускает естественный свет. Здесь, обычно, расположены лишь все строго необходимые вещи: душевая кабинка, стиральная машинка, раковина.

Как дополнение является, конечно, большое зеркало на стене. Отделку, чаще всего, выполняют при помощи керамической декоративной плитки, либо крупного кафеля. Крупные цветные орнаменты визуально расширяют объём ванны.

Маленькая спальня: идеи планировки, зонирования и создания уютного дизайна (135 фото новинок)
- Серая спальня: фото красивого дизайна, варианты сочетания, новинки, рекомендации от профи
Бежевые шторы в интерьере — более 150 фото новинок дизайна штор 2021 года. Правила идеального сочетания бежевого цвета
Дизайн интерьера 4-х, 5-и и более комнатных квартир, дизайн-проекты
Квартира в ЖК «Максимум», 286 кв.м.
Интерьер квартиры в современном стиле, 178 кв.м.
Квартира в стиле неоклассика в ЖК The Residence, 123 кв.м.
Дизайн интерьера квартиры в ЖК «Крестовский De Luxe», современный стиль, 233 кв.м.
Дизайн квартиры в стиле современной классики, ЖК «Riverside», 180 кв.м.
Интерьер квартиры в скандинавском стиле, ЖК «Silver», 146 кв.м.
Квартира в современном стиле, ЖК «Приморский квартал», 131 кв.м.
Интерьер квартиры в современном стиле в ЖК «Крестовский De LUXE», 206 кв.м.
Девятикомнатная квартира в современном стиле, 350 кв.м.
Интерьер квартиры в современном стиле, ЖК «Дом на Зелейной», 170 кв. м.
Квартира в стиле современной классики, ЖК «Verona», 205 кв.м.
Интерьер квартиры в стиле современной американской классики, ЖК «Royal Park», 214 кв.м.
Квартира в стиле неоклассики, ЖК «Леонтьевский мыс», 250 кв.м.
Интерьер квартиры в современной классике, 122 кв.м.
Квартира в стиле минимализм в ЖК «Елагин Апарт», 40 кв.м.
Интерьер квартиры в ЖК «Парадный квартал», 145 кв.м.
Квартира в стиле неоклассики с элементами ар-деко, ЖК «Смольный Проспект», 177 кв.м.
Дизайн квартиры в стиле парадной неоклассики с элементами ар-деко, элитный ЖК «Привилегия», 250 кв.м.
Интерьер квартиры 200 кв.м. в стиле Ар-деко, ЖК «Граф Орлов»
Дизайн квартиры в современном стиле, ЖК «Home Sweet Home», 129 кв.

Дизайн интерьера четырехкомнатной квартиры в классическом стиле, 204 кв.м.
Загрузить еще
О четырехкомнатной квартире мечтают многие. Большую площадь можно обустроить максимально эффектно и практично. Чтобы результат работы оправдал ожидания, при выборе дизайна интерьера четырехкомнатной квартиры нужно учитывать все нюансы.
Основные принципы оформления больших квартир
Для обустройства просторного жилья можно выбрать один из следующих двух вариантов:
Перепланировка и снос всех перегородок для получения огромной площади, на которой можно реализовать любые идеи. Такой дизайн-проект целесообразно выбирать в том случае, если в квартире будут проживать два или три взрослых человека.
Максимально эффективное и рациональное использование пространства для благополучного размещения всех домочадцев.
Тогда интерьер четырехкомнатной квартиры оформляется в соответствии со стандартными принципами обустройства малогабаритных апартаментов.
Если в квартире проживает семья с детьми, то бояться “потерять” каждый сантиметр не стоит, потому что сложностей при оформлении функциональных зон не возникнет. Главное грамотно разделить пространство на зоны общего и частного пользования. К общей территории относится санузел, прихожая и кухня, иногда гостиная. Такие зоны частного пользования, как детская и спальня, следует располагать подальше друг от друга. При наличии просторного коридора можно разместить в нем гардеробную.
Выбор цветовой гаммы
Оформлять большую квартиру можно в любых тонах, главное руководствоваться при этом размерами комнат, ориентацией окон и естественным освещением. Для эффектного зонирования пространства можно использовать комбинирование цветовых схем. Для активных зон квартиры (кухня, детская, гостиная) подойдут яркие цвета.

Стилистическая концепция обустройства большой квартиры
От выбранного стиля зависят такие аспекты дизайна, как цвета и формы, декоративные элементы, освещение, текстильное оформление. Выделяют два основных направления в оформлении интерьеров большой жилплощади:
Классическое. Характерными чертами таких дизайнов являются правильность форм и линий, сдержанность, симметричность и статичность. Квартира поделена на функциональные зоны посредством перегородок. Присутствуют распашные двери, в некоторой степени отнимающие пространство.
Современное.
Данному направлению присуща динамика, асимметрия, контрасты и возможность трансформации. Часто комнаты объединяют, располагая вместо стен раздвижные перегородки. Для эффектного зонирования подбирают идеальное световое и цветовое оформление.
По каждому из вышеуказанных направлений в интернете можно найти фото дизайна четырехкомнатной квартиры. При выборе того или иного направления не забывайте о единстве стиля и цвета. В гармонично оформленной квартире приятно находиться, в ней царит особая атмосфера домашнего уюта.
Особенности
Одной из особенностей трехкомнатной квартиры является наличие проходного пространства. В современных домах планировка 3-х комнатного жилья стала весьма удобной благодаря высоким потолкам.
Такое жилье в хрущевских пятиэтажках часто подвергаются самостоятельной перепланировке. Причиной тому служат небольшие площади отдельных жилых и нежилых зон, проходные комнаты и т. д.
Следует сказать, что при наличии определенной фантазии в проектировании и желании как-то преобразовать свой дом вы всегда можете создать уникальный и неповторимый дизайн и планировку из, казалось бы, привычных и типовых квартир. Например, одним из вариантов такого проектирования может являться присоединение застекленного балкона к общей жилой площади путем его утепления и сноса части стены.
Нельзя не отметить, что при выборе трехкомнатного жилья наибольшим спросом пользуются помещения с раздельными и изолированными друг от друга комнатами. Вообще, среди типовых планировок таких квартир можно отметить самые разнообразные варианты, смежные, смешанные, изолированные, открытые (студии). По размещению окон различают линейные квартиры, «распашонки» и торцевые.
Современные типовые планировки трехкомнатного жилья нередко подвергаются индивидуальным изменениям. Для этого зачастую объединяют несколько комнат, комнату с балконом или комнату с коридором.
Варианты планировки в зависимости от помещения
Планировка 4-х комнатной квартиры разнится от большинства других различными помещениями и их количеством. Да и комнаты бывают отдельными или проходными, что не часто встретишь в двухкомнатных квартирах.

Дизайн четырехкомнатной квартиры в панельном доме
Существуют различные вариации плана квартир. Но основным для панельного дома является вариант с тремя отдельными спальнями, которые объединяет коридор. Как правило, одна из комнат больше других.

В хрущевке
Хрущевки как известно представляют собой маленькие комнаты, а именно: узкие прохожие, крошечных размеров кухни, ванная комната и туалет совмещены и низкие потолки. Однако и четырехкомнатные квартиры тоже встречаются.

Современному человеку вряд ли будет по душе 4 комнатная хрущевка, однако и ее обустроить будет интересно. 4 комнатная хрущевка, планировка которой будет представлена на фото.
В сталинке
Совершенно иначе обстоят дела в сталинских квартирах. Высокие потолки, более 3-х метров, широкие коридоры, раздельные туалетные и ванные комнаты, внушительных размеров кухни. А благодаря тому, что дома строились из кирпича они имеют хорошую звукоизоляцию и лучшую теплозащиту, чем панельные. Вот, где разгуляться можно дизайнеру.

Секреты перепланировки хрущевки
Перед тем как начать «расширение» хрущевки, важно определиться с тем, будет ли квартира проходить радикальную перепланировку, или же достаточно ограничиться зонированием. Сложнее всего обновить дизайн – в однокомнатной квартире типа хрущевки, где тесным кажется всё
Архитектор, подписывающий разрешение, без риска обрушения стены и подъезда определит, где несущая стена, а где – второстепенная перегородка, которую можно сносить. Иногда простенок требуется убирать не полностью, достаточно вырезать в нём арку или расширить проход. Учтите, что перепланировка и дизайн однокомнатной квартиры хрущевки считаются наиболее проблемными.
Для улучшения освещения прихожей целесообразно сделать стеклянную вставку или витраж на одной из внутренних перегородок, которая обычно тоньше, чем несущая стена. При необходимости ее можно снести для увеличения полезной площади. Толщина стен хорошо видна на чертежах в проекте квартиры.
Если не удалось получить разрешение, не стоит рисковать и делать перепланировку, рискуя последствиями. Проще ограничиться доступными методами:
- использовать зонирование пространства;
- продумать каждый сантиметр свободной площади;
- убрать громоздкую корпусную мебель;
- ставить мебель и бытовую технику одного размера на 2-3 уровня (друг на друга), чтобы не загромождать углы и простенки;
- ограничивать рабочие зону и места отдыха легкими перегородками, невысоким подиумом и двухсторонними стеллажами без дверок.
При покупке мебели обратите внимание на компактные образцы. Это консоль в прихожую (вместо широкого туалетного столика), зеркала без рамки, откидные сидения, двухместный диван с раскладкой вперед на 3 сложения и пр. Мягкую мебель необязательно ставить вдоль стены, если тыльная сторона такая же привлекательная, как и лицевая
Они могут образовать удобный мягкий «островок»
Мягкую мебель необязательно ставить вдоль стены, если тыльная сторона такая же привлекательная, как и лицевая. Они могут образовать удобный мягкий «островок».
Также можно перенести дверной проем, установив раздвижную дверь. Рекомендуется оформить аркой или придать новую форму части стены, сделать вставку со стеллажом или укороченную оригинальную перегородку. Это отличный вариант в 1-комнатную квартиру – для одинокого человека или небольшой семьи.
При любом количестве комнат многие стараются изменить санузел и расширить прихожую за счет перепланировки коридора и смежного помещения. Еще одна «фишка» дизайнеров для тесной квартиры – модульная мебель из отдельных блоков, и трансформеры, которые меняют свой функционал.
Выводы
Помимо оформления, предварительного этапа планировки важно ухаживать должным образом за жильем. Это касается порядка, постоянного поддержания чистоты.

Рассматривая вариант оформления в стиле минимализм, например, можно действительно преуспеть в простоте, порядке и стиле. Часто владельцы обзаводятся практичными и вместительными кладовыми, оборудуют гардеробную комнату. Таким образом, многих проблем с хранением вещей можно избежать.

Во время создания проекта дизайнеры учитывают не только пожелания владельцев, но и их образ жизни. Соблюдая все основные рекомендации со стороны профессионалов, воплощая интересные идеи в жизнь, вы получите действительно хороший конечный результат.





































