Система вентиляции сауны
Обязательно должна быть предусмотрена вентиляция в сауне, поскольку проветривания посредством стен быть не может из-за их тепло- и пароизоляции. На каждый 1 м3 объема парной требуется вентиляционное отверстие площадью 24 см2.
Схема расположения отдушин для вентиляции предполагает установку окна в 30 см от пола возле печи, чтобы обеспечить тягу. На противоположной стене вентиляционный люк прорезают в 30 см от потолка.
Через нижний ход поступает холодный воздух, который, проходя сквозь камни, постепенно прогревается и поднимается вверх. Верхнее вентиляционное окно пропускает внутрь свежий воздух, который вытесняет застоявшийся в верхней части сауны. Принудительное вентилирование воздуха не рекомендуется, чтобы не спровоцировать термические ожоги на коже.
История происхождения финской сауны
Появление финской сауны произошло так давно, что уже вряд ли кто, возьмётся утверждать точную дату. Бытует мнение, что случилось это более 2 тыс. лет назад. В ту пору финны были кочевым народом и контактировали с другими племенами, населявшими Землю. Подтверждением данной теории является то, что сауна — это продукт симбиоза взаимоотношений со славянами и ирландцами.
Красивым объяснением происхождения сауны является легенда. Капельки дождя, упавшие на камни домашнего очага через случайно протекшую крышу, испарились и создали в помещении приятную атмосферу тепла и пара. И тогда человек решил воплотить случайность в закономерность, искусственно повторив естественный процесс. Так, появилась финская сауна.
Суховоздушная сауна из Финляндии благоприятно воздействует на организм человека, принося ему пользу. Однако нужно помнить не только о положительном влиянии, но и о чувстве меры и противопоказаниях парных процедур. Подробнее об этом можно узнать тут (польза и вред финской сауны).
Любители финской сауны могут построить ее своими руками в доме, гараже, квартире и даже на балконе и наслаждаться прелестями парных процедур. Подробные рекомендации представлены в этой статье.
Оснащение сауны
В любом магазине, который занимается реализацией материалов и предметов для сауны, можно приобрести все необходимое, например, лежанки или пульты управления. Здесь же можно найти полностью собранную сауну для квартиры. В этом случае встает проблема, как готовую конструкцию установить в имеющееся пространство. В то время как сделать сауну в квартире своими руками можно по собственному проекту.

Кабель, прокладываемый внутри парилки, должен быть пропущен через термостатический шланг, который защитит проводку от высоких температур. Кабель питания должен быть проведен отдельно от щитка. Другие электроприборы сюда уже подключаться не должны. Расход электроэнергии будет примерно таким же, как при работе стиральной машинки.
V этап. Строительство лавочного каркаса
Строительство лавочного каркаса
Изготавливать лавочный каркас для домашней сауны нужно из брусков с сечением 40х80 мм, в качестве которых можно использовать короткие доски, соединенные вместе шурупами.
В начале работы нужно главный брусок пришить горизонтально на уровне третьей обвязки на всю ширину стены, противоположной от входа. Само пришивание необходимо делать 8-10-сантиметровыми шурупами. Главное, чтобы шляпки немного утопали в бруске и к ним впоследствии случайно никто не смог прикоснуться и обжечься. Оптимальное расстояние между шурупами – 50 см.Таким же образом пришиваются и боковые лавки сауны. Но к торцам боковых брусков еще нужно прикреплять висящий брус при помощи 15 сантиметровых саморезов. В итоге длина висящего бруса должна получиться равной парилочной ширине. Там, где будут завинчены шурупы-саомрезы, необходимо в целях безопасности замаскировать отверстия с помощью хорошо пригнанной пробки с клеем ПВА. Главное, чтобы пробка была из такой же древесины, что и лавки.Для настила лавок традиционно используются доски 20х80 мм. Настил собирается из продольных и поперечных досок и должен получиться съемным. Продольные доски по своей длине совпадают с шириной сауны, а поперечные – с шириной настила, которая не должна быть меньше 60 см для верхней лавки и 40 см для нижней.
Этапы строительства и несколько советов
- Выбор дерева для строительства бани – дело ответственное. Для стен выбираем хвойные породы (ель, кедр, сосна), дерево должно быть прямое, выдержанное, сухое, без смоляных полостей и сучков. Причем, сруб должен простоять для усадки где-то год-полтора. За это время его пропитывают противопожарными составами и антисептиками. В дальнейшем пропитка не потребуется. На потолок и полки лучше всего брать лиственные породы дерева (липу или осину), так как они почти не выделяют смол.
- В проекте бани для дачи должны предусматриваться как минимум два помещения: собственно моечно-парильное и предбанник. Для мытья 2-3 дачников этого будет достаточно вполне. Вместо предбанника можно использовать террасу перед входом, кстати, там сподручнее попить чего-нибудь после парной, причем на свежем воздухе. Как представишь…. Ощущения непередаваемые.
- Изготовление дверей не должно создавать никаких проблем. Для них подойдут толстые доски осины или липы. Засовы и ручки не допускается изготавливать из металла. Размещать дверные проемы следует по перпендикулярной схеме, это необходимо, чтобы исключить прямой сквозняк. Рекомендованная высота дверей 1,6-1,7 м, а высота порогов 10-20 см. Такой небольшой размер двери нужен, чтобы сберечь тепло в бане. И еще одна особенность – двери будут открываться наружу, ведь это дача, и банька крохотная.
- В предбаннике можно сделать окно обычного, стандартного размера, а в парилке допускаются размеры 60х80 или 30х40 см и выполняют их на уровне нижнего полка. Стекла в окне парной должны быть двойными и термостойкими.
- Полы традиционно изготавливают из дерева. На сегодняшний день на строительном рынке можно выбрать различные альтернативные материалы для обустройства пола в парилке. Очень популярным материалом, например, является кафель. Всегда помним о создании уклона в сторону слива. И, желательно, все это накрыть деревянной решеткой. А вот в предбаннике пол полностью выполняем из дерева по следующей схеме: черновой пол, утеплитель, гидроизоляция, чистовой пол.
- Без полок в парилке не обойтись никак. Их размещают в 2-3 яруса вдоль глухой стены. Размещение планируйте так, чтобы между печью и полками поместить экран, выполненный из кирпича. При их изготовлении не рекомендую использовать металлическое крепление, лучше деревянные шипы. При металлических крепежных деталях, их нужно глубоко утапливать в дерево, чтобы не допустить в дальнейшем ожогов.
- Самый верхний ярус располагают на 100-110 см от потолка, чтобы было сидеть удобно. Второй размещают ниже примерно на 40-50 см. Ширина нижнего полока 40-45 см, там только сидеть, а верхний полок делают шириной 70 см, чтобы была возможность париться лежа. Для их изготовления используют отшлифованные планки, у которых закругляют края. Для обеспечения циркуляции воздуха их крепят на расстоянии 1,5 см. друг от друга. В материале для полков не должно быть сучков, так как сучки нагреваются сильнее. Лучшим материалом для изготовления считается осина. Но все же, самым лучшим будет африканское дерево абаш. Но, увы и ах, оно очень дорогостоящее.
P.S. А на десерт предлагаю посмотреть видео-ролик: Баня на даче
IV этап. Обшивка вагонкой сауны изнутри
Схема утепления стены парилки и отделки вагонкой.
Все русские бани когда-то строились из осины или липы. Конечно, такие материалы далеко не самые прочные для такого солидного сооружения, как парная, зато обладают поистине исцеляющими свойствами. Поэтому сегодня этот материал практически всегда используется для внутренней обшивки парилки и сауны. Но можно обшить квартирную сауну и обычной вагонкой.
Начинать обшивать домашнюю сауну вагонкой нужно с потолка. Если потолком для сауны служит потолок помещения, его нужно затянуть фольгой со стороны к самой парилке. Фольга должна быть прикреплена к каркасным элементам с помощью крепких кнопок и натянута перпендикулярно к каркасным доскам. Причем укладывать фольгу нужно не встык, а внахлест, где ширина перекрытия – 5-10 см. Изнутри обшивать потолок нужно со стороны входа. А шить вагонку нужно специальными потайными гвоздями на каждой каркасной доске. Сначала гвозди забиваются под углом в паз молотком, а потом – двобойником. Самые крайние доски можно пришивать обыкновенным гвоздем без шляпки, которую заранее нужно убрать кусачками, а место входа гвоздя в дерево – затереть шкуркой. Поверх фольги необходимо уложить утеплитель, уже с внешней стороны потолка сауны. Как утеплитель можно использовать любую минеральную вату, которая не дышит и не воспламеняется от спички. Но нельзя использовать пенопласт – ему свойственно выделять в воздух ядовитые вещества.
Поверх минеральной ваты укладывается пергамин и можно приступать к обшивке вагонкой. Если потолок сауны монтируется непосредственно на потолке выделенного для нее помещения, полотно фольги можно натянуть и со стороны входа. Для этого его зашивают 4 досками вагонки снизу, а образовавшиеся между каркасными досками проемы заполняют утеплителем. Далее натягивается еще одно полотно и процедура повторяется.
Аналогично потолку домашней сауны обшиваются и ее стены. Но в данном случае уже нужно помнить и о местах для выхода проводки. В этих местах в самой доске нужно предварительно просверлить отверстие, диаметр которого будет равен диаметру металлорукава. После чего сам металлорукав необходимо пропустить в отверстие, и тогда доска вагонки может быть пришита на свое постоянное место. Если же зашиваются стены без плинтусов, то вагонка между стенами и потолкам пришивается «в руст», а нижний плинтус прибивается гвоздями с откусанными шляпками непосредственно через вагонку прямо к нижней обвязке. Но, чтобы получился хороший вентиляционный проток сквозь стены, нижний край самой нижней доски не нужно доводить до пола – пусть останется щель в 20 мм. Кроме того, плинтус при этом пришивать нужно через прокладку.
Проект бани с пристройкой
Строительство бани с пристройкой – увлекательный и полезный проект для тех, кто желает наслаждаться теплом и уютом своего собственного спа-комплекса. Создание бани своими руками позволит не только сэкономить деньги, но и ощутить радость и удовлетворение от достижения цели.

Список инструментов:
- Лопата и кирка для подготовки фундамента.
- Плиты или блоки для строительства фундамента.
- Деревянные бруски и брёвна различных размеров для основной конструкции.
- Кирпич или блоки для пристройки.
- Цемент, песок и щебень для строительства фундамента и стен.
- Пилы для распила дерева и кирпича.
- Молоток, гвозди и саморезы.
- Уровень и рулетка для контроля точности строительных работ.
- Электроинструменты: дрель, шуруповерт, циркулярная пила (по желанию).
- Изоляционные материалы для кровли и стен (пенопласт, минеральная вата и т.д.).
- Отделочные материалы: доски, вагонка, краска и т.д.

Планировка и подготовка места:
Выберите подходящее место для строительства бани с учётом требований к безопасности и комфорту. Очистите территорию от растительности и проведите разметку фундамента.
Строительство фундамента:
Выкопайте ямы под фундамент и заполните их песком и щебнем для обеспечения хорошей дренажной системы. Затем установите плиты или блоки, создавая основу для бани и пристройки.

Строительство основной конструкции:
Соберите каркас бани из деревянных брусков и брёвен
Обратите особое внимание на качественное соединение элементов конструкции и использование уровня для выравнивания
Строительство стен и крыши:
Заполните пространство между брусками стенами изоляционными материалами и обшейте бани досками или вагонкой. Установите крышу, обязательно обработав материалы против гниения и влаги.

Строительство пристройки:
Приступайте к строительству пристройки (например, раздевалки или комнаты отдыха). Используйте кирпич или блоки для возведения стен пристройки и прокладывайте кровлю.
Отделка и внутренняя обработка:
Завершите внешнюю и внутреннюю отделку бани. Покрасьте стены, установите полы, обустраивайте помещение по своему усмотрению.

Вентиляция и электричество:
Обеспечьте хорошую вентиляцию в бане, чтобы избежать скопления пара и плесени. Установите электрическую проводку и необходимые осветительные приборы.
II этап. Монтаж электропроводки в сауне
Монтаж электропроводки в сауне
Перед самым монтажом электропроводки в домашней сауне необходимо определить логическим путем, где именно будет располагаться все электронагреватели. Светильники же можно размещать где угодно. Например, для сауны кубической формы с одной стороной в 2 метра нужно всего пару 40-ватных светильников, расположенных по обе стороны от лавки. Ведь именно такое их расположение всегда дает мягкое и равномерное освещение. Но можно закрепить светильники и на потолке, и на стене, прикрыв их декоративной деревянной решеткой.
Монтаж всего электрооборудования в собственной сауне лучше проводить после консультации с электриком — лучше всего опытным, хорошо знающим, как построить сауну в квартире и правильно провести в ней электропроводку. Еще лучше, чтобы подобные работы сделал специалист. Но, конечно, можно основные работы провести самостоятельно. Так, трасса раскладки проводов в таком помещении должна быть намечена как можно ниже и проходить лишь по внешней стороне каркаса. Все провода должны проходить через закрепленный на каркасных элементах металлорукав. Никаких повреждения или соединений в таких проводах быть не должно. Главное, чтобы свободные концы всех прокладываемых проводов для сауны были с длинными концами, чтобы можно было без проблем провести распайку на клеммах и обеспечить зарядку выключателей и светильников.
И, наконец, соединение светильников в домашней сауне может быть только параллельным и обязательно должно проходить через выключатель. Фазу для этих светильников должен давать нагреватель, а силовой и осветительный кабели – тянуться к самому нагревателю в металлорукавах, которые заканчиваются в нагревательных панелях.
Каркасные
Каркасно-панельные конструкции стали популярны среди потребителей несколько лет назад. Они достаточно просты в сборке, не требуют большого количества натурального дерева и привлечения специальной техники.
Недорогая баня из каркаса ставится на облегченный фундамент, чаще всего выбирается столбчатый. Это значительно сокращает расходы на строительство, так как не требуется так много бетона для заливки основания.
Стены бани монтируются чаще всего уже из готовых рам, которые сразу изготавливаются в цеху. При желании, чтобы еще больше сократить траты, каркас можно собрать самостоятельно, но это замедлит стройку. Чтобы создать хорошую теплоизоляцию и для продолжительного срока службы строения, его следует обшить подходящими досками. Для экономии подойдут хвойные породы.
Так как каркасные бани имеют тонкие стены, они требуют обязательного утепления. Среди недорогих утеплителей чаще всего выбирается минеральная вата. Ее закладывают в стены в виде плит. Они не только доступные по стоимости, но и отличаются надежностью и продолжительным сроком службы при условии качественного монтажа.
Строительство фундамента
Для строительства столбчатого фундамента потребуются:
- опорные столбы;
- садовый бур и лопата;
- рулетка и уровень;
- емкость для септика;
- щебень и песок;
- бетонный раствор.
Шаг 1. Разметка участка
Сначала делают разметку: определяют расположение угловой опоры, вбивают колышек и отмеряют расстояние до второго угла. Далее перпендикулярными линиями отмечают боковые стороны и еще 2 угла постройки. Должен получиться правильный прямоугольник. Периметр будущей сауны и внутренние перегородки размечают с помощью натянутой между колышков веревки. Опорные стойки обязательно устанавливают на каждом углу, под несущими стенами на расстоянии 2 м и под пересечением внутренних перегородок.
Кроме расположения угловых столбов следует сразу определить место для сливной ямы. Если имеется большая емкость для септика, размеры ямы должны соответствовать объему емкости, в противном случае нужно выкопать квадратный котлован со стороной 1 м и глубиной примерно 1,2 м. Отверстия под опорные столбы легче всего сделать с помощью ручного бура. Для легкой деревянной сауны глубина отверстий под столбы фундамента составляет 40-50 см.
Шаг 2. Подготовка ямы
На дно котлована насыпают песок слоем 15 см, утрамбовывают и насыпают слой щебня. После этого устанавливают емкость с перфорированными стенками, выравнивают и укрепляют верх. При отсутствии бочки стены ямы выкладывают кирпичом, оставляя в кладке небольшие равномерные зазоры для просачивания воды. Начиная от половины ямы и до верха, кладку нужно делать монолитной, чтобы избежать осыпания грунта.
Шаг 3. Возведение фундамента
Для опорных стоек подойдут бревна, металлические трубы и бетонные столбики. Дерево обязательно выбирают самое плотное, желательно сосну. Чтобы избежать гниения, поверхность бревен густо обмазывают битумной мастикой и просушивают.
Металлические трубы сначала обрабатывают грунтовкой с антикоррозийными свойствами. На дно отверстий насыпают щебень, после чего устанавливают столбы и выравнивают их по высоте и вертикали. Далее отверстия засыпают грунтом, смешанным с песком, проливают водой для большего уплотнения и трамбуют.
Верх столбов закрывают рубероидом и укладывают балки основы по периметру будущей постройки. Закрепляют балки скобами или гвоздями к опорным стойкам. Внутри периметра монтируют дополнительные брусья с шагом 20 см и параллельно друг другу. Это будет основа для напольного покрытия. Можно заменить брус арматурной решеткой, установить опалубку и залить бетоном.
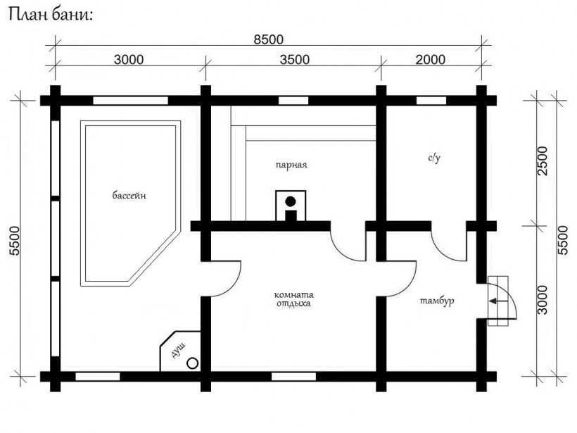
Составление планировки бани
Самый простой, но затратный вариант — выбрать один из множества готовых проектов. Можно также заказать чертеж, но это тоже будет стоить денег. Поэтому многие из умельцев, решившихся на строительство, создают чертежи бани своими руками, опираясь на советы, рекомендации и определенные нормы.







План будущей бани должен быть максимально точным. На нем необходимо прорисовать места расположения окон, дверей, печки и внутренних деревянных конструкций: лавок, полков, ступеней. Также следует определить площадь помещений и обозначить коммуникации.

На дачных участках обычно ставят бани простого типа, вмещающие в себя комнату отдыха, парилку и моечное помещение. Желательно, чтобы был предбанник, который не пропустит холод с улицы и послужит местом хранения дров.

Самый популярный и простой проект — строение 3х3 или 3х4. В этом случае получается компактная постройка с парной, объединенной с моечной и предбанником в роли комнаты отдыха. В такой бане одновременно могут париться два человека. Для постоянного использования она не подойдет, но как дачный вариант будет очень удобна.

В последнее время при возведении бань парную отделяют от моечной, выбирая планировку из трех помещений. В этом случае размеры строения должны быть 4х4 или 6х4.


Но для них лучше приобретать готовые проекты, которые рассчитаны на размеры сооружений 8х8 или 10х10. Эти варианты хороши для частого использования большими компаниями.

Строительство каркаса
для строительства домашней сауны в квартире своими руками лучше всего использовать панели. Их соединение производится без клея с помощью системы паз-шип, что позволяет легко собирать и разбирать сауну при необходимости.
Помещение сауны обмерено. Затем изготавливается каркас из обычного бруса. Достаточно будет высоты 2 м. Каркас обшивается вагонкой и укладывается фольгированный утеплитель светоотражающей стороной наружу. Бруски каркаса предварительно следует плотно прижать к стене и выполнить обвязку на 5 уровнях.
Для этого на фольге размечают в виде горизонтальных линий. Первые три линии проводятся от пола на расстоянии 3 см, 60 см, 1 м. Еще один будет на расстоянии 5 см от потолка, а последняя линия проведется ровно посередине между ним и третьей. В результате должно получиться 5 горизонтальных линий.
Через утеплитель и точно по линиям на расстоянии 50-70 см друг от друга проделываются отверстия, в которые вставляются деревянные заглушки или пластиковые дюбели. Каркас сауны крепится через просверленные отверстия.
Следующий шаг — подготовить щит. Его следует тщательно отшлифовать наждачной бумагой. Затем его устанавливают с трех сторон каркаса. Между досками прокладывается полоса резины, и они соединяются при помощи мебельных уголков, которые затем закрываются плинтусами.
Теперь можно установить лицевой щит, который будет располагаться в дверном проеме. Затем следует закрепить потолок. После этого прокладывается кабель для освещения сауны. Стыки между щитком и стеной по периметру лицевого щитка закрываются наличником.
Для утеплителя лучше выбрать минеральную вату. Фольгу следует закрепить, приложив края полос друг к другу, стыки проклеить алюминизированной лентой. Утеплитель кладется на потолок в несколько слоев.
Баня из дерева своими руками
Древнее и всем известное здание – баня, изначально создавалась для оздоровления и поддержания чистоты души и тела. Сегодня баня по-прежнему остается популярным местом для семейного отдыха и восстановления сил.

Строительство бани своими руками – это великолепная возможность создать уютное и комфортабельное место для релаксации, пользуясь прочными и экологически чистыми материалами, такими как дерево.
Перед началом строительства убедитесь, что у вас есть все необходимые инструменты. Вот основной список того, что вам может понадобиться:
- Пилы (циркулярная, ножовочная).
- Рубанок и стамеска.
- Молоток и гвозди.
- Шуруповерт и саморезы.
- Лента мерная и уровень.
- Плоскогубцы и клещи.
- Зубило и молоток для резьбы по дереву.
- Защитные очки и перчатки.

Выбор места и проектирование:
Определите место, где будет стоять баня. Обязательно проверьте уровень земли и убедитесь, что место не склоняется. Затем создайте примерный план будущей бани, включая размеры, количество окон, расположение дверей и т.д.

Закупка материалов:
На основе проекта составьте список необходимых материалов: бревна или бруски, доски, утеплитель, кровельный материал и т.д. Закупите все материалы, убедившись, что они качественные и соответствуют вашим требованиям.
Подготовка фундамента:
Заложите фундамент для вашей бани, чтобы обеспечить прочность и устойчивость здания. Вариантов фундамента много: ленточный, свайный, столбчатый и другие. Выберите подходящий для ваших условий.

Строительство стен и крыши:
Прокладывайте первый ряд бревен (или брусков) вокруг периметра будущей бани. Затем продолжайте наращивать стены до желаемой высоты. После этого приступите к установке крыши. Убедитесь, что все стены и крыша надежно закреплены и защищены от влаги.

Утепление и отделка:
После постройки стен и крыши, утеплите баню, чтобы обеспечить комфортный климат внутри. Затем приступайте к отделке – обшивайте внутренние стены, устанавливайте окна и двери.
Установка печи:
Поместите печь в баню и правильно подключите ее к дымоходу. Убедитесь в надежности и безопасности установки.

Отделка интерьера:
Добавьте банные принадлежности и интерьерные элементы, которые сделают вашу баню уютной и комфортабельной. Разместите полки, вешалки для полотенец, и другие удобства.

Как построить баню на каркасной основе
Предварительно спроектируйте место расположения печи, дымохода, вентиляции, веранды и подберите вид кровли.
Фундамент и нижняя обвязка
Теперь по поводу фундамента, нижней обвязки и возведения стен:
- Под легкую конструкцию каркасника подойдет бюджетный столбчатый фундамент из асбестоцементных труб с бетонной заливкой. Понадобятся 4-метровые асбестоцементные трубы диаметром 100 мм и раствор для заливки из цемента, мелкого щебня, просеянного песка и воды. Сперва трубы нарезают на одинаковые половинки, затем вставляют в пробуренные бензобуром скважины (глубина 1,5 м; диаметр 200 мм). Далее засыпают и утрамбовывают песок, а на финальном этапе заливают бетонной смесью.
- Нижнюю обвязку организовывают из нескольких обрезных досок 150х50 мм в сечении, сколоченных между собой. Лаги для настилки пола из досок врезаются в обвязку после. Для гидроизоляции подойдут отрезки рубероида. Для дополнительной прочности лаги и обвязка крепятся на трубах фундамента металлическими пластинами, замурованными предварительно. В финале конструкцию обрабатывают раствором для защиты от гниения и насекомых.

Возведение стен и крыши в каркасной конструкции
Когда древесина отлежится и хорошо просохнет, начинается подготовка каркасных стоек и деталей стропильной системы для крыши. Проводится разметка мест монтажа каркасных стоек. Окончательная сборка делается так:
- Монтируются две угловые стойки и несколько промежуточных.
- Строго по уровню на шурупы производится обшивка ориентировано-стружечными плитами от одного выбранного угла.
- Остальные стойки выставляются и обшиваются по тому же принципу.
Цельная конструкция получается в результате последовательного добавления стоек и прикрепления к ним ОСП-плит. Дверные и оконные проемы при этом учитываются сразу.

Возведение кровли
Кровля делается следующим образом:
- Все стропильные конструкции собираются на земле по единому шаблону.
- После сборки они поочередно поднимаются на крышу, у каждой есть своя стойка, над которой производится установка.
- Перед монтажом последней фермы размечают форму листов осп для будущей обшивки фронтона.
- Для удобства сборочных работ на балки стелют временные перекрытия из обычных досок.
- Вентилируемая крыша считается лучшей по функционалу, поэтому специальная пленка укладывается между стропилами и контрбрусом, а непосредственно на брус набивают обрешетку.
- Одним из самых желательных материалов для крыши является ондулин.
Отделка бани-каркасника
Наружная обшивка еловыми или сосновыми досками — оптимальный и визуально привлекательный вариант. Горизонтальное положение элементов обеспечивает устойчивость и дополнительную жесткость каркасной бани. Иногда доски размещают встык с монтажом гидро- и теплоизоляции под обшивку.

Внутреннюю обшивку делают для защиты от влияния окружающей среды. Для чернового потолка также подойдут листы ОСП, которые использовали ранее. Три слоя утеплителя понадобится для уменьшения теплопередачи. Простенки парной закрываются экранной фольгой, а оставшиеся — пергамином.
Далее доски лицевой стороной прибивают к лагам, на данном этапе можно сэкономить и повторно использовать леса. Печь-каменку ставят в парилке, а котел-нагреватель — со стороны предбанника. Ради соблюдения пожарной безопасности рекомендуем выложить кирпичную стену между парилкой и зоной отдыха.

Шлифовка древесины
Затем готовим сруб к окрашиванию. Будет обрабатываться бревно повсеместно, с торца обязательно – это самый рыхлый участок, который может спровоцировать порчу бревна.
Начинают с самой простой и небольшой стены. Стоит повозиться с углами, там круг болгарки не везде достает, придется поработать стамеской. Торцы обрабатывают в конце, их запечатывают мастикой. Удобно брать белый цвет, на него легче ляжет покраска. Шлифовка позволяет показать красивую структуру дерева, натуральный узор.
Сушка базы – 1 сутки, затем наносят лессировку. После этого хорошо пройтись по поверхности шкуркой-нулевкой. Затем наносят краску слоями, первый сушат полсуток, но лучше держать сутки, затем – новый слой, что дает матовый блеск.
Материал для бани
От этого фактора зависит стоимость проекта, потребность в фундаменте и скорость монтажа. Среди популярных вариантов здесь называют:
- Каркасные бани, которые считают рекордсменами по дешевизне и скорости постройки. Конструкция довольно лёгкая, поэтому не требует серьёзного фундамента. И такая экономия не влияет на функциональность помещений.
- Деревянные строения. Такой вариант обойдется немного дороже, и потребует более крепкого основания в сравнении с каркасной постройкой. Однако в силу свойств древесина не нуждается в утеплении.
- Проекты из арболита. Причем можно выбрать между монолитными стенами и блоками. Вариант отличается прочностью и комфортом, а также обходится недорого.
Менее популярны кирпичные или каменные бани. Причиной является потребность в крепком фундаменте. А способность стен промерзать приводит к тому, что на растопку бани уходит много времени. Альтернативой является использование пеноблоков или газоблоков. Но эти материалы нуждаются в хорошей влагоизоляции.
Энергообеспечение бани
Следует помнить при проектировании бани, что это несколько помещений с достаточно высокой степенью влажности. Поэтому к электрооборудованию предъявляются повышенные требования к степени защиты от повышенной температуры и влаги. Электротехнические работы в банном домике должны выполняться в соответствии ГОСТ 50571.7.702-2013.
Обратите внимание!
- Тандыр своими руками из кирпича: готовые чертежи, размеры, пошаговая инструкция + 100 фото идей
Как сделать ворота с калиткой своими руками: пошаговая инструкция, чертежи, размеры конструкции, дизайн, монтаж и установка
Веранда пристроенная к дому — 150 фото красивых и практичных вариантов сделанных своими руками
Для зоны отдыха можно использовать светодиодные лампы. Нагреватели в парилке подключают медным кабелем в кремнийорганической изоляции с использованием быстродействующих устройств защитного отключения токоведущей части. Правильно смонтированная система энергообеспечения банного домика обеспечит защиту пользователей от поражения электрическим током.
Обустройство крыши
Монтаж крыши, к которому можно приступать только после усадки здания, выглядит следующим образом:
- Деревянные потолочные балки укладываются над верхней обвязкой стен.
- К неподвижным балкам крепятся стропила на расстоянии около метра.
- К стропильным ногам прибивается настил из выбранного заранее материала или обрешетка под листовую кровлю.
- Теперь можно крепить материал в соответствии с технологией его укладки.
- Конек закрывается листом оцинкованного железа.
- Фронтоны зашиваются подходящим материалом (например, сайдингом или вагонкой).
Когда наружная часть крыши установлена, остается только обустроить внутреннее пространство – монтаж утеплителя, гидроизоляции и провести отделочные работы.
Заключение
Данная статья подробно рассказывает о том, как обустраивается своими руками баня с нуля. Этот процесс далеко не самый трудоемкий, особенно если подойти к нему ответственно, а к непосредственному исполнению – грамотно.

































