Какую лучше лестницу для себя подобрать
Есть несколько популярных малогабаритных конструкций на второй этаж, которые специально предназначаются для маленького проема. Виды и особенности выбора лестниц зависят от жильцов и их потребностей. Модели существуют такие:
- модульная;
- поворотная;
- прямая;
- с «гусиным шагом»;
- спиральная.
Каждый из этих видов размещается очень компактно и хорошо выполняет свою функцию. Но у каждого из них имеются как достоинства, так и недостатки.
Модульная лестница
Модели лестниц из модульных деталей позволяют менять их конструкцию таким образом, чтобы они хорошо поместились в маленьком доме. Вот несколько полезных советов по работе с ними:
- модульные детали часто располагают под углом, чтобы было похоже на зигзаг;
- можно расширить каркас, чтобы он максимально удобно уместился в проем;
- часто задействуют не все модули, а оставшиеся раздвигают, тем самым делая получившуюся лестницу круче.
Поворотная
Пространства для двухмаршевой поворотной конструкции потребуется относительно немного – 160х180 сантиметров. У поворотных и прямых лестниц одинаковые по высоте ступеньки, но в случае с поворотной конструкцией они занимают существенно меньше места.
Кроме того, эта конструкция станет отличным вариантом для дома, где есть маленький ребенок. А для экономии пространства вместо площадок допустимо использовать забежные ступеньки.
Единственный недостаток поворотных лестниц – по ним неудобно носить крупные предметы.
Прямая
Есть ли возможность сделать покатую лестницу, если места немного? Стоит признать, что именно такая конструкция удобнее всего. Однако для экономии пространства их действительно делают в большинстве довольно крутыми. А по ступеням, которые наклонены под большим углом, перемещаться не так уж удобно. Потому рекомендуется делать угол наклона для такой конструкции не больше 45 °.
С «гусиным шагом»
Такое нестандартное наименование эта конструкция получила благодаря тому, что перемещаться по ней можно только вперевалочку. А все потому, что у ступенек разная ширина и твердо опираться на них можно исключительно одной ногой. Но такой вариант будет комфортно использовать на маленькой площади.
Сама по себе лестница с «гусиным шагом» малогабаритная. И удобна тем, что максимальный угол ее наклона – 65 градусов.
Спиральная
Спиральная (она же винтовая) лестница – пользуется особой популярностью в помещениях с небольшой площадью. Ее несложно уместить в проем с диаметром от 130 сантиметров
Однако стоит прежде обратить внимание на некоторые неудобства варианта:
- нельзя перемещать крупные предметы;
- она нежелательна в доме, где есть старики или маленькие дети;
- подняться или разойтись на ней двум людям одновременно будет сложно.
Хороша же эта модель, например, тем, что перепланировка комнаты не потребуется – ее можно разместить как в углу помещения, так и в центре.
Идеальный выбор для небольшого проема – винтовая лестница на больцах. Это значит, что к опорной балке узким краем прикрепляются ступеньки трапециевидной формы. А на более широкой стороне закрепляются перила.
Отлично, если и сама стена, и лестница возле нее будут выполнены в похожей светлой гамме. Тогда дополнительно добавится эффект расширенного пространства.
Винтовые лестницы также привлекают внимание тем, что делаются из различного материала: древесины, металла и даже стекла. Вот почему они так легко вписываются в совершенно любой дизайн
Освещение холла с лестницей
Вне зависимости от выбранного вами стиля, освещение лестницы украсит любое стилистическое решение. Вариантов уйма. Если лестница вашего дома выполнена на больцах, то вдоль стены, под каждую ступень установите светильник. В вечернее и ночное время вы будете приятно удивлены. Также отпадет надобность включать общий свет в коридоре.
Светильники должны поддерживать общее оформление помещения
Отдельно выполненная подсветка ступеней повышает безопасность хождения по лестнице в темное время суток
Поручень расположен вдоль стены? Тогда осветите и его. Сейчас магазины предлагают множество различных вариантов напольных светильников различной формы и испускаемого света. Установите несколько миниатюрных точечных лампочек на краях ступеней, свет которых будет ложиться вниз. В продаже можно найти светильники, которые создают на стене различные эффекты. Например, при отсутствии настенного поручня, его можно высветить таким светильником.
Подсветка поручня светодиодной лентой
Выбор конструкции лестницы
Лестница из кухни на второй этаж в виде проекта вряд ли где-нибудь найдется. Такое решение всегда очень индивидуально. При этом, межэтажные переходы – это всегда объекты повышенного травматизма, а значит должны проектироваться без ущерба для безопасности и быть максимально практичными.
Современные технологии позволяют строить лестничные марши занимающие минимальное пространство
Для того чтобы лестница максимально эргономично вписалась в пространство, при составлении проекта следует учитывать следующие моменты:
Конструкция должна быть расположена максимально близко к выходу. При этом, для удобства, первую нижнюю ступень межэтажного перехода следует расположить параллельно входной двери.
Расположение межэтажного перехода в кухне делает пространство по сути входным холлом
Важно подобрать размеры пролета таким образом, чтобы минимально съедать пространство.
Не обязательно монтировать конструкцию непосредственно у стены. Например, когда проектируется гостиная-кухня с лестницей, то ступени могут стать элементом зонирования пространства.
Зачастую конструкция перехода выполняет роль перегородки, разделяя жилое пространство на разные функциональные зоны
Дизайн кухни с лестницей может быть разработан с применением различных форм переходов. На выбор формы конструкции определенно влияет пространство, в которое она должна вписаться и в первую очередь его размер.
Чаще других, предпочтение отдается следующим формам:
- Одномаршевой;
- Двухмаршевой;
- Винтовой;
- Открытой.
Одномаршевый пролет
Цена такого типа конструкции самая бюджетная, что обусловлено простотой изготовления и минимальными требованиями к пространству размещения. Кроме того, данный тип конструкции может быть устроен из любого строительного материала, что означает, что в отделке такая конструкция тоже весьма демократична.
При этом у конструкции, с точки зрения размещения в кухне, есть один недостаток: отсутствие площадки перехода.
Двухмаршевая конструкция
Это наиболее комфортный тип конструктива с точки зрения подъема и спуска. Наличие площадки между пролетами позволяет остановиться и передохнуть, что весьма актуально для домов, в которых проживают маленькие дети или пожилые люди.
Недостаток – два марша требуют довольно значительной площади внутри дома для размещения под удобным углом подъема.
Винтовая лестница
Достоинства такого типа очевидны: простота и элегантность решения вписываются на минимальной площади. При этом винтовая конструкция сама по себе может стать центральным элементом интерьера, вокруг которого будет обустроено полезное пространство.
Недостатки тем не менее весьма существенны:
- Винтовой способ размещения ступеней ограничивает полезную ширину прохода. Как правило, спиральная конструкция предполагает перемещение лишь одного человека.
- Сложность формы предполагает довольно значительные затраты на реализацию такого проекта.
Открытая форма
Лестницы без перил в последнее время приобретают всё большую популярность. Отсутствие ограждений дает визуальный эффект большого пространства, при этом снижает материальные затраты на установку.
Чтобы повысить безопасность данного типа конструкции, её можно расположить примыканием к несущей конструкции здания. В такой ситуации перила могут быть установлены в стену.
Способ перемещения на второй этаж как объект искусства
Лестница в интерьере гостиной
Новый взгляд на вертикальное перемещение в доме воплощает в себе четкий дизайн, высокие художественные стандарты. Модерновый дизайн, соответствующий материал, а также лестничные марши, перила создаются дизайнерами, художниками, чтобы обеспечить уютную, стильную атмосферу. Популярностью во всем мире пользуются консольные конструкции, которые точно отражают дух времени.
Консольная лестница с деревянными ступенями
Стеклянные подъемы
Стеклянные подъемы не менее популярны, они визуально увеличивают пространство комнат. Стеклянные стены обеспечивают прозрачность, легкость.
Впечатляющая консольная конструкция из стекла
Деревянные ступени
Однако металлические, деревянные ступени обеспечивают высокую стабильность. К полной гармонии приводит сбалансированное сочетание разных материалов. Независимо от того, фиксированы ли они, свободно стоят или подвешены – угол, длина, ширина планируются индивидуально.
Лестница — это конструкция, которая неизменно должна совмещать высокий комфорт, долговечность. Те модели, которые не имеют дополнительного настенного крепления и нагрузки, характеризуется одним центральным креплением, непрочными ступенями. В зависимости от дизайна, материала, разновидности современного дизайна лестниц практически не ограничены.
Оригинальный дизайн скульптурной лестницы
Согласовываем с общим интерьером
При планировании вам необходимо согласовать ее элементы с общим дизайном интерьера, если хотите, посмотрите на некоторые готовые проекты. Например, в минималистском интерьере декоративная лестница будет выглядеть неуместно.
С другой стороны, если вы хотите превратить ее в фокусный объект, вы выберете эффектный художественный дизайн с необычной формой, цветом или интересными перилами.
Яркая лестница на второй этаж
Помните, что безопасность имеет особую важность, дизайн вашей лестницы должен быть удобным и безопасным для маленьких детей или пожилых членов семьи. Идеи дизайна интерьера современной кухни в частном доме + 130 ФОТО и ТОП-8 трендов в 2019 году. Идеи дизайна интерьера современной кухни в частном доме + 130 ФОТО и ТОП-8 трендов в 2019 году
Идеи дизайна интерьера современной кухни в частном доме + 130 ФОТО и ТОП-8 трендов в 2019 году
Кухни под кованой лестницей второго этажа – декор
Главное, суметь распланировать это небольшое пространство и при помощи декораторских приемов визуально объединить кухню с лестницей и комнатой. Совсем небольшой кухонный уголок поместится под лестничным маршем.
Ну а если запроектирована лестничная площадка, то под ней можно уместить полноценное место для приготовления самых изысканных блюд. А в пространстве под маршем устроить стеллаж с огромным количеством выдвижных ящичков, в которых поместится вся кухонная утварь.
Под лестницей с коваными перилами идеально впишется кухня в стиле модерн или прованс. В этом случае лучше выбрать фасады для кухни из натурального дерева.
Эффекта состаривания можно добиться путем браширования древесины. Такая брутальность будет идеально сочетаться с элементами ковки. Их, кстати, необходимо добавить и в кухонный уголок. В кухне кованными могут быть ножки стола или стула, консоли под полочку и даже лампа. Добавить антуража помогут декоративные деревянные балки.
С модерном «дружит» камень во всех его проявлениях. Поэтому можно смело на такой кухни использовать керамику, натуральный и акриловый камень. Искусственный материал подойдет для кухонного гарнитура. А камень сможет заменить традиционный фартук в рабочей зоне. Ну и, конечно же, не стоит забывать об декоративных «металлических вкраплениях».
Сообщение отправлено.
На стадии проектирования двухэтажного частного дома, встает вопрос о месте размещения лестницы, которая будет связывать два этажа. Часто её устанавливают в коридоре или холле, но стоит помнить, что непосредственная близость данной конструкции к входной двери несколько снизит комфорт ее использования. В коридоре может быть прохладнее, чем в других помещениях, возможны сквозняки и грязь с улицы.
Еще один нюанс заключается в том, что такая конструкция для комфортного ее использования требует много места. Чем расширять коридор, устанавливая в нем добротную красивую лестницу, не лучше ли для нее подобрать другое место?

Лестницы на второй этаж в гостиной, влияют на полное изменение характера комнаты и ее целевого назначения. Их присутствие в общей комнате имеют как положительные, так и отрицательные нюансы.

Проекты домов с лестницей в гостиной должны особое внимание уделять эргономическим аспектам при выборе места расположения конструкции, учитывая технические характеристики дома и выбранное стилистическое решение интерьера

К положительным нюансам расположения лестницы в гостиных загородных домов, можно отнести следующее:
- Открытая конструкция лестницы выглядит эстетично, и позволяет объединить два этажа не только зрительно, но и создать акустический эффект единого пространства;


- Полезная площадь дома увеличивается – коридор и прихожая становятся просторнее, а в гостиной пространство под конструкцией марша может быть использовано для различных целей;
- Открытые конструкции лестниц упрощают процесс перемещения на верхний этаж крупных предметов;

- Лестница из гостиной может преображаться за счет ее дополнительного декора, и тем самым еще больше украшать комнату. На ступенях можно поставить живые растения или декоративные аксессуары. Балюстрада может использоваться для размещения картин или фото, для этой же цели используют и свободные стены вдоль маршей, которые можно ;

- Сама по себе конструкция может стать единственным и главным акцентом в интерьере, задавая ему тон и настроение.

Из отрицательных нюансов можно отметить следующее:
- Между общими помещениями первого этажа и «тихими» второго, существенно нарушается шумоизоляция. Комната становится проходной, и использовать ее в качестве дополнительной спальни или изменить ее функциональное назначение уже не получится;

- Цена такой лестничной конструкции будет выше, так как она обязана иметь оригинальное и эстетически привлекательное внешнее исполнение, находясь на виду в центральной комнате, где собираются все члены семьи, проводятся встречи с друзьями и отмечаются праздники;

- Необходимо найти рациональное применение месту под маршем – если его оставить пустым, то интерьер гостиной с лестницей на второй этаж будет выглядеть незавершенным. А при организации там рабочего места или бара, необходимо всегда поддерживать его в порядке и чистоте.

В стиле прованс
Благодаря подбору оттенков отделки, кухня с лестницей наверх в частном доме может смотреться элегантно и одновременно уютно.
Мы советуем поэкспериментировать с окрашенным брусом — он идеально подходит для такого оформления. Лучше выбирать пастельные, нежные тона, например светло-голубой или почти прозрачный зеленый.
Идея : Ступеньки сделайте в той же цветовой гамме, что и стены. Так интерьер получится целостным.
Если подъем скрыт за перегородками, ремонтируйте помещение без оглядки на нее. Такой метод удобен, если вы строите дом по собственному проекту: сразу становится меньше ограничений. Но необходимо учитывать, что перегородки займут дополнительное место.
Если же не планируете замаскировать сходни, сделайте их частью обстановки. Используйте характерные для прованса плавные линии без лишних завитков.
Зачем заполнять пустоту?
Кроме рационально использования пустой площади, заполнение площади придаст лестничной конструкции надежность и прочность. Необычные решения форм и цветовой гаммы сделают интерьер эксклюзивным и приятно удивят знакомых и друзей.
Лестница может находиться как в гостиной, так и в коридоре. В зависимости от расположения, некоторые варианты могут не подойти, лучше посоветоваться по этому поводу со специалистами. Статья расскажет о различных способах заполнения свободного места и, прочитав ее, вы наверняка сможете придумать что-то новое и интересное для своего дома.
В большинстве загородных домов имеется лестница, ведущая на второй этаж или в мансардную комнату. Знали ли вы, что пространство под ней можно использовать с пользой, придумав массу оригинальных решений по ее обустройству? Сегодня мы расскажем про 10 самых необычных идей по использованию подлестничного пространства.
Комната Гарри Поттера
Винный бар
Мини-гараж
Читальный зал
Игровая комната
Личный кабинет
Домашний кинотеатр
Прачечная
Гардеробная
Комната Гарри Поттера
Маленькая и уютная комната – совсем как у Гарри Поттера, только больше и лучше – отличный вариант для подлестничного пространства. В комнате можно разместить кровать, небольшую тумбочку или столик. Такое пространство можно использовать для уединения или же для размещения гостей.
Винный бар
Пожалуй, одним из самых необычных, и в то же время практичных решений является оборудования пространства под лестницей под винный бар.
Для небольшой коллекции можно обустроить слегка наклонные полки, а бокалы и аксессуары для бутылок – хранить в шкафчиках по соседству.
Любители порядка и сортировки бутылок по странам или типам напитка могут поставить винные стеллажи с многочисленными ячейками.
Более дорогую и серьезную коллекцию можно хранить за прозрачным витринами – как в музее. Благодаря современным технологиям, в лестничной винотеке можно установить необходимую температуру и уровень влажности.
Мини-гараж
Извечный вопрос – куда спрятать с глаз долой велосипеды, самокаты и коляски – никогда не утратит своей актуальности. Спасением может стать пространство под лестницей, где можно установить специальные крепления или держатель, чтобы велосипед не заваливался набок посреди ночи. А на пол можно постелить коврик, куда будет стекать вода и грязь после прогулки.
Библиотека
Для истинного книголюба пространства для книг много не бывает. Для обустройства дополнительной библиотеки отлично подойдет место под лестницей. Для этого можно установить несколько открытых или закрытых вместительных стеллажей. Если же места не очень много, вместо стеллажей можно повесить полки для хранения любимых произведений и приятных мелочей. А если установить рядом удобное кресло – читать можно будет не отходя далеко от книжек.
Игровая комната
Все малыши любят строить домики и шалаши. Для этих целей идеально подойдет пространство под лестницей, где дети смогут оборудовать свою собственную Нарнию и почувствовать себя героями сказки. Для антуража игровую комнату можно снабдить маленькой дверцей, куда сможет пройти только ребенок.
Личный кабинет
Личное пространство для уединения – всегда проблема №1 в любом доме. Обустроив укромный уголок под лестницей, вы всегда сможете спрятаться от всех и заняться делами в тишине и покое. Организовать рабочее место под лестницей не так уж сложно. Все, что вам понадобится, это комфортное кресло, система хранения мелочей и удобный стол. Не лишними будут также несколько полок для бумаг и книг.
Домашний кинотеатр
Под лестницей можно оборудовать настоящий мини-кинотеатр с акустической системой, удобными креслами и монитором для просмотра кинофильмов. Главное – суметь найти места для сидения так, чтобы они не мешали подходу к лестнице.
Прачечная
Сэкономить уйму полезного пространства можно, разместив стиральную и посудомоечные машины, сушилку и места для хранения белья – под лестницей. Здесь же можно установить раскладную гладильную доску и место для утюга и средств для стирки.
Гардеробная
Пространство под лестницей можно переоборудовать под полноценную гардеробную, обустроив там места для хранения обуви и сезонной одежды. Удобные выдвижные системы сделают все вещи легко доступными и позволят хранить их в чистоте и порядке.
Кухня
Небольшая кухня — отличный вариант для ниши под лестницей. Если вы не большой любитель домашней кулинарии или масштабных кухонных пространств, такой вариант может сэкономить вам целую комнату.
Модульная лестница на второй этаж на маленькой площади
Современные модульные конструкции позволяют экспериментировать с моделями сборки и играть с пространством. Их преимущество заключается в том, что собрать конструкцию можно самостоятельно, предварительно определившись с ее видом. Модульные лестницы можно поворачивать на 90, 180 градусов, делать их спиралевидными, винтовыми, Г-образными, П-образными, скругленными.
Насколько бы ни были удобны лестничные конструкции, они могут представлять большую опасность при передвижении, если сконструированы неправильно. Именно поэтому сборку лучше доверить профессионалам
Также важно учитывать наличие в доме детей, пожилых людей и людей с ограниченными возможностями
Популярными являются модульные лестницы, которые можно устанавливать в помещениях любых размеров и форм
Советы по выбору модульной конструкции:
- Перед покупкой измерить площадь помещения и определить точные размеры проема, в которые будет установлена лестница.
- Лучше, если конструкция будет иметь защитные перила.
- Для удобства перемещения следует выбирать лестничные конструкции без подступенков, чтобы ноге было комфортно.
- Дизайн лестницы следует выбирать с учетом общего стиля в комнате.
Компактные повороты и небольшие платформы позволяют экономить много места в доме или квартире
При выборе конструкции важно понимать, что в первую очередь лестница должна быть безопасной, и только потом – красивой. Обычно модульные лестницы устанавливают с целью быстрого перемещения между этажами, учитывая то, что узкие ступени – не очень удобны и небезопасны
Оформление и подсветка
Выбор декоративной отделки лестницы индивидуальный, но важно учитывать сочетаемость дизайна конструкции с интерьером зала. Детали должны сочетаться по стилю и архитектурной направленности.. Интерьер гостиной с лестницей может быть выполнен следующим образом:
Интерьер гостиной с лестницей может быть выполнен следующим образом:
Хай-тек, минимализм
– стеклянные одномаршевые модели с металлическими фрагментами, подсветкой, простые формы.

Классика
– деревянные конструкции необычной конфигурации с массивными резными балясинами.

Модерн
– негабаритные винтовые или поворотные лестницы с лаконичной отделкой, без вычурных фрагментов.

Шале
– для гостиной коттеджа в охотничьем стиле подойдут лестницы из натурального дерева с брутальными массивными формами.

Прованс, эко-стиль, кантри
– дерево и металл, возможно использование патинирования, искусственно состаренной древесины, рустикальных элементов (грубая обработка).

Вставки и фрагменты из стекол очень хорошо гармонируют с домашним интерьером в гостиной в стиле поп-арт или лофт. Каменные изделия в центре комнаты, украшенные коваными ограждениями, выгодно подчеркивают дизайн холлов в классической и современной стилистике.
Освещение лестницы выполняет не только декоративную функцию, используется в целях безопасности.
С помощью декоративной подсветки можно придать дизайну гостиной атмосферность и оригинальность, создавать интересные оптические эффекты.

Подсветку можно расположить по краю ступеней с одной или двух сторон, установить основные LED-светильники под поручнем или проложить тонкую осветительную ленту по длине ступеней.

Идей оформления гостиной с лестницей огромное количество. Удачно выбранная модель придаст залу особенный шарм. Чтобы лестница прослужила долгое время, нужно выбирать материалы для ее изготовления хорошего качества. Оформление и декор – дело вкуса, но все фрагменты лестницы должны гармонировать с интерьером гостиной и не выбиваться из общего архитектурного ансамбля.
Лестница в интерьере: виды конструкций
Без лестницы невозможно представить частный дом и многоуровневую квартиру. В условиях отсутствия лифта, эта конструкция позволяет легко перемещаться с этажа на этаж.
На сегодня существуют такие виды лестниц:
- Прямая лестница – конструкция на двух или одном косоуре (или нескольких тетивах), лестничный марш которой не имеет поворотов. Такие конструкции удобные и выглядят очень привлекательно. К их недостаткам можно отнести то, что для размещения прямой конструкции требуется достаточно много места.
- Угловая конструкция имеет два лестничных марша, объединенных забежными ступенями или переходной площадкой. Угловые лестницы могут быть с углом поворота в 45, 90 и 180 градусов.
- Винтовая лестница – наиболее компактная и, при этом, безопасная конструкция. Винтовая лестница представляет собой марш, который располагается на одном опорном столбе по кругу.
При ограниченном количестве места под лестницей можно расположить кухню
Лестница любой конструкции может быть как закрытая (с подступенками и закрытым подлестничным пространством), так и открытая. Выбор конструкции по большей мере зависит от оформления интерьера.
Отдельно выделяют вертикальные лестницы. К ним относятся пожарные, которые часто располагают на балконе квартир. Нередко жильцы хотят спилить или срезать такие конструкции. Делать этого не стоит: если вы не можете отказаться от пространства, которое занимает лестница, то можно заменить конструкцию на выдвижную. Такая лестница легко монтируется на крышку люка под потолок и выдвигается по мере необходимости.
Готовая деревянная лестница
Готовый вариант
Помимо того, что лестницу в доме можно построить своими руками, обладая незначительными навыками в строительстве и инструментами, современные производители предлагают готовые варианты.
Готовая конструкция
При расчете необходимо учитывать площадь, которую можно отвести под сооружение. Поэтому при проектировании двухэтажного дома следует заранее предусмотреть место расположения.
Современные производители предлагают готовые унифицированные комплекты из дерева по доступной цене.
На место сборки конструкция поставляется в разобранном виде в коробках. Инструкция сборки прилагается производителем. Остается только собрать конструкцию, как конструктор.
Готовая постройка с поворотной площадкой
Изготовление под заказ по индивидуальным размерам будет стоить дороже.
На стоимость повлияют:
- Порода древесины, из которой изготавливается конструкция;
- Сложность изготовления фрагментов;
- Наличие декоративных элементов.
Деревянная маршевая лестница
Маршевая разновидность с декоративной перегородкой
Маршевый тип является наиболее традиционным, удобным, прочным, надежным и безопасным. Выбор дизайна зависит от ее конструкции. В современном интерьере будет стильно смотреться вариант на больцах или на тетиве. Для классического интерьера отличным решением будет крепление на косоуры.
Дизайн из дерева
Необычная конструкция
Одним из преимуществ деревянных конструкций является то, что при желании можно произвести замену деревянных балясин на современные стеклянные или полимерные вставки.
Ограждение из каленого стекла
Наиболее практичной и простой в исполнении является конструкция на косоурах, которые являются несущими элементами.
На косоурах
Распространенной породой древесины является ель или сосна. Для нее характерна высокая прочность и низкая гигроскопичность.
На гнутых тетивах в современном интерьере
Самым распространенным видом является конструкция с поворотными площадками. Визуально облегчить ее можно, убрав подступенки.
Квадратная поворотная площадка
Форма может быть разной – прямоугольной, округлой или изогнутой. Особого шика можно достичь при помощи искусственного состаривания древесины.
Необработанные опоры ограждения
Для создания прочной и надежной постройки можно применить комбинирование материалов изготовления – несущие и ограждающие конструкции можно сделать из металла, а ступени из древесины.
Дизайнерское исполнение
Для изделий из данной породы дерева характерны следующие качества:
- Высокая прочность;
- Декоративность;
- Износоустойчивость;
- Противостояние деформациям;
- Длительный эксплуатационный срок.
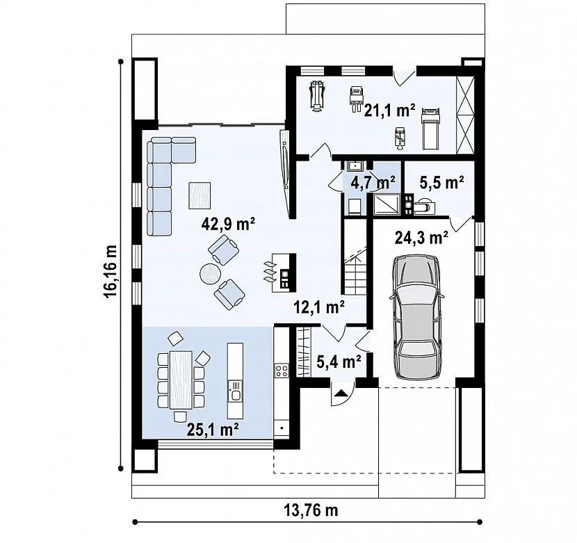
Идеи планировки двухэтажного дома
Определить конструкторские решения будущего коттеджа с первого раза удаётся не всегда. В большинстве случаев на это уходит много времени, так как разработка планировки двухэтажного дома имеет много особенностей, которые должны учитываться с предпочтениями каждого проживающего. Сделать это можно самостоятельно или обратиться к услугам специалистов. В качестве примера представляем несколько оригинальных идей.
Проект № 1
- Общая площадь: 170,7 м2.
- Жилая площадь: 70 м2.
- Площадь первого этажа: 92 м».
- Площадь второго этажа: 17,7 м2.
- Размер дома: 9,9*15,5 м.
Проект двухэтажного дома площадью более 150 м2Источник innstroy.ru
Лаконичный коттедж эконом-класса, укомплектованный всем необходимым для комфортного проживания семьи из четырёх человек. Планировка первого этажа показывает наличие просторной гостиной, расположенной в заднем крыле дома. Помещение объединено с кухонной рабочей зоной и столовой. Строгая прямоугольная форма станет причиной зонирования большого зала на несколько частей. Делать это придётся внутренними элементами отделки (обоями, кафелем, мебелью). Небольшое пространство совмещённого санузла (4,4 м2) станет проблемой для монтажа ванной. Владелец будет вынужден решать между душевой кабинкой или уголком.
Проблема первого этажа решается благодаря увеличившемуся санузлу на втором. На 5,8 м2 уже удастся разместить небольшую ванную и остальную сантехнику.
Оригинальным может показаться решение второго кабинета с аналогичными характеристиками. Вы скажете, – «Для чего на втором этаже 2 туалета!». Ответ очевиден – дети. Они растут по одному принципу: захотел один, побежал и второй. Поэтому на данном примере планировки эта проблема устранена.
3 спальни могут использоваться для членов семьи, оставшаяся внизу – в качестве гостевой. Бросающимся в глаза недостатком является отсутствие кладовой или гардеробной.
Проект № 2
Проект двухэтажного дома площадью более 150 м2Источник www.faulaconstruction.com
Проект первого этажа дома площадью более 200 м2Источник drevkostroy.ru
- Общая площадь: 236,38 м2.
- Жилая площадь:212,69 м2.
- Площадь первого этажа: 141,4 м2.
- Площадь второго этажа: 95,3 м2.
Оригинальный, а самое главное – стильный и современный дом, относящийся к стилю хай-тек. Огромные, во всю стену, панорамные окна, зал для занятия тяжёлой атлетикой или фитнесом на первом этаже. Преимущества планировки двухэтажного дома в следующем:
- Наличие просторной общей зоны, образованной объединением гостиной, столовой и кухни.
- Дополнение первого этажа спортзалом.
- Классная веранда на втором.
- Сближающие с природой панорамные окна, через которые отлично просматривается ухоженный ландшафт участка.
- Отдельный вход в санузел из главной спальной второго этажа.
Такая планировка нацелена на людей, предпочитающих современный стиль, спортивный образ жизни и не принимающих старую добрую классику.
Проект № 3
Проект двухэтажного дома площадью более 250 м2Источник demo2.sbsite.ru
- Общая площадь: 287,8 м2.
- Жилая площадь: 95 м2.
- Площадь первого этажа: 118,7 м2.
- Площадь второго этажа: 111 м2.
Дом в классическом стиле с отдельной котельной, поделённой кухней, раздельным санузлом, большой террасой и спальней на первом этаже. Последнюю, при необходимости, можно использовать как гостевую. Благодаря наличию всего этого, планировка предстаёт в индивидуальном стиле и подойдёт для утончённых, любящих оригинальность людей.
Уникальность и отличие заканчиваются после подъёма по лестнице. Второй этаж коттеджа предстаёт в стандартном виде:
- Несколько спален.
- Санузел.
- Гардеробная.
Проект № 4
Проект двухэтажного дома площадью 182 м2Источник myhome.nifty.com
- Общая площадь: 182,1 м2.
- Жилая площадь: 53 м2.
- Площадь первого этажа: 95,9 м2.
- Площадь второго этажа: 87,2 м2.
Дом со вторым этажом мансардного типа, построенный в стиле шале. Планировка просторного первого этажа полностью отдана под так называемые нежилые помещения и гостиную, площадью 26,78 м2. На входе гостей встречает небольшая прихожая с дверью в кладовую, чуть дальше санузел и рабочий кабинет главы семейства. В отсутствии необходимости такого помещения допускается перепланировка под другие цели, например, детская игровая комната, просторная гардеробная или что-то иное.
Хотя кухня и гостиная размещены в одном большом зале, разделение происходит благодаря зонированию внутренней отделкой и небольшому «притоплению» в заднее крыло дома. Здесь же выход на террасу.
Второй этаж дома спроектирован по классическому принципу: 3 спальни, коридор с лестницей в центре и просторный санузел.




































