Шаг третий: начните планирование
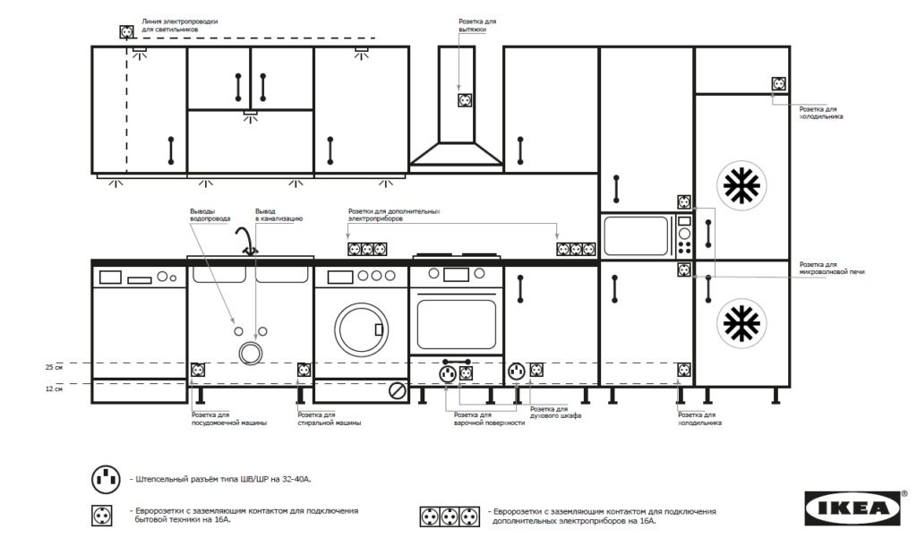
Если вы определились хотя бы с настроением и некоторыми «фишечками» будущей кухни, самое время приступить к планированию. У ИКЕА есть хорошее руководство с видео. Измерьте свою кухню или закажите выезд замерщика (это стоит 1400 руб, но компенсируется при заказе сборки). Не забудьте отметить, где выходы розеток или проходят трубы.
Не все можно двигать самостоятельно: на скриншоте ниже видно, что раковина уходит в стену и ее нельзя подвинуть левее. В жизни ее можно будет разместить так, как удобно.

Важный момент: цены, которые будет подсказывать вам программа, не всегда актуальны. Чтобы уложиться в бюджет, сверяйтесь с каталогом на сайте.
Если вы не хотите/не умеете/устали справляться с планировщиком самостоятельно, проект также можно заказать специалистам ИКЕА за 2990 руб.
Подбор фасадов кухонной мебели Икеа
Модули выпускаются по сериям, но конструктивно полностью соответствуют друг другу. Различается только дизайн. По внешнему исполнению можно найти нужные фасады и подходящую фурнитуру.
Напольные типы шкафов
Шкафы системы “Метод” имеют ширину 20, 40, 60, 80 или 100 см, высоту – 60, 80, 100, 140, 200, 220 см. В каждом модуле может быть от 1 до 8 выдвижных ящиков. Всего предлагается более 16 тыс. возможных вариантов размещения шкафчиков.
Высота пластикового цоколя составляет 8 см (для сравнения: в системе “Фактум”, на смену которой пришел “Метод”, – 16 см). Такое изменение позволило увеличить высоту напольных шкафов.
Для встраиваемой техники
Модули для встраиваемой техники имеют стандартные размеры. Многие шкафы укомплектованы дополнительными отделениями (ящиками, открытыми полками) для хранения посуды, кухонных принадлежностей.
Для духовки предлагается специальный модуль с металлической вентиляционной решеткой.
Подвесные
Навесные модули представлены в разных размерах. Ширина варьируется от 20 до 80+ см, высота – 40, 60, 80 или 100 см, глубина – 37, 38, 39 или 40 см (самые глубокие – угловые и модули, которые размещают над холодильником).
Есть шкафы с полками и ящиками, глухими фасадами и вставками из матового или прозрачного стекла.
Фронтальные типы панелей
В ассортименте есть фронтальные панели, которые помогут незаметно разместить все бытовые приборы. За фасадами, которые соответствуют выбору дверок нижних и верхних секций, можно спрятать посудомоечную машину, СВЧ-печь или холодильник.
Дверцы шкафчиков
Дверцы и фронтальные панели изготавливают из МДФ по безрамочной технологии. Есть модели с ровной гладкой поверхностью, с филенками, глянцевые или матовые. Одни и те же полки и ящики могут комплектоваться разными дверцами.
Грамотно выбираем цветовое решение и стиль кухни
Белая классика
В этом году это тренд, цвета и расцветки выглядят очень стильно, а благодаря специфическому стилю и дизайну Икеа делает их красивыми, уютными и теплыми. При этом белый цвет для кухни Икеа легко отмыть от любого загрязнения, так что такая расцветка кухням Икеа не страшна.

Яркие краски
Яркие расцветки представляют молодежную коллекцию кухонь. В кухнях этот яркий штрих разбавляет какой-либо однотипный цвет и придает кухне насыщенности. Это главное решение по цвету, а все другие цвета лишь его дополнение или грамотно подобранные оттенки для разбавления основного цветового решения.

Природная расцветка
Подойдет для людей, любящих, классическое дерево. Эта фоновая расцветка – характерна для светлых пород деревьев и используется в двух вариантах: в первом, как особый древесный “холст” для выделения каких либо ярких акцентов, во втором как смягчающий элемент слишком “живой” природной гаммы. И в том и в другом случае он дает возможность сделать оформление более живым, естественным и натуральным.

Металлик
Это уникальная новаторская расцветка кухонь Икеа, подойдет людям с креативным складом ума и оригинальным вкусом. Главный или акцентный цвет – металлик, это грамотный выбор гаммы и соответствующего сочетания цвета с общим конструктивом и кухонной техникой, все вместе создает эффект комнаты будущего или космического корабля.

Отличительные черты

При выборе кухонной мебели в IKEA следует обратить внимание на несколько ключевых отличительных черт:
- Качество и прочность: все изделия в IKEA проходят строгие испытания и соответствуют высоким стандартам качества. Кухонная мебель изготавливается из прочных материалов, таких как ДСП или МДФ, что обеспечивает ей долгий срок службы.
- Функциональность: кухонная мебель в IKEA разработана с учетом потребностей современного человека. Она обладает множеством удобных функций и дополнительных элементов, таких как выдвижные ящики, органайзеры, регулируемые полки и др.
- Дизайн: мебель от IKEA отличается стильным и современным дизайном. Она имеет разнообразные яркие цветовые решения и может быть легко вписана в любой интерьер кухни.
- Доступность и цена: кухонная мебель в IKEA доступна широкому кругу потребителей по разумной цене. В ассортименте IKEA всегда можно найти варианты на любой кошелек.
Кроме того, важно отметить, что кухонную мебель в IKEA можно комбинировать и дополнять, создавая собственный уникальный дизайн кухни. Весь ассортимент предлагаемых товаров может быть легко скомпонован и согласован, чтобы полностью удовлетворить потребности каждого покупателя
Стиль и модули
Кухни Икеа, благодаря своему стильному дизайну способны украсить любое помещение, не зависимо от того коттедж это или обычная квартира. Гарнитур хорошо выступает как отдельная кухня, так и мебель что объединяет различные зоны.
Скандинавский гарнитур

Скандинавский стиль – лучшее решение для кухни Икеа
Для скандинавской, производитель предлагает хороший выбор модулей имеющих белый окрас и геометрические формы. Фасады изготавливаются из массива берез, а поверхность обладает глянцевым или матовым оттенком. Так же, по желанию клиент может выбрать глухие фасады или закрытые стойким стеклом.
Готовый проект экостиль

Эко стиль – простота и натуральные материалы
Для создания экостиля требуется простор, природные материалы и много света. В ассортименте Икеа имеются кухни подходящие под данный стиль, сделанные из березового или дубового шпона и стеклами матового оттенка и столешницами под дерево.
Модерн дизайн

Стиль модерн лучше всего подчеркнуть тепными фасадими гарнитура
Данный стиль предпочитает большое количество цветовых оттенков и материалы из разных структур. В Икеа найдется мебель и для этого стиля. Яркая контрастность цвета, фасады, что оснащены фурнитурой из алюминия и обработаны пленкой, все это укажет на стиль модерна или ретро. Помочь в создании стиля могут и имеющиеся в наличии островные модули, а также высокие конструкции.
Кухня Икеа, обзор гарнитура:
https://youtube.com/watch?v=T2yPN22ppIc
Интересная специфика кухонь Икеа
Все производимые кухни Икеа имеют свою специфику, в ее основе четыре дизайнерских линии:
- Стиль – молодежный(ориентирован на потребителя среднего возраста и самодостаточную молодежь, чаще всего имеет яркие насыщенные цвета и креативный дизайн).
- Стиль – современный(ориентирован на людей любящих комфорт, ценящих современные веяния в интерьере и инновационные материалы).
- Стиль – кантри(чаще всего представлен древесными тонами и ориентирован на любителей природных оттенков).
- Стиль – скандинавский(классический белый, “холодный” стиль ориентирован на любителей классического кухонного интерьера).
Все стилистические решения объединены особым дизайном компании, характерные черты включают:
- уникальную безрамочную технологию создания кухни из особопрочной и качественной древесноволокнистой плиты МДФ;
- все кухни стандартизированы, т.е. размеры однотипны;
- шпон, покрывающий МДФ отличного качества;
- изготавливаемые кухонные модели часто имеют особопрочные ножки из пластика;
- во всех кухнях Икеа присутствует большой ассортимент креплений различного назначения, причем они изготавливаются специально для компании. Благодаря этим уникальным креплениям ящики и двери легко открываются и закрываются, а это принцип долголетия любой кухни.
Ключевые особенности – это то, что отличает компанию от общей массы аналогичных, но ни этим Икеа завоевала рынки большого количества государств. Широкий ассортимент продукции и высокий уровень качества, плюс низкая стоимость обеспечивают серьезные конкурентные преимущества все 73 года существования компании.


Дизайн двухкомнатной квартиры: фото оформления, практические советы, планировки

Дизайн трехкомнатной квартиры: фото интерьера и планировок, советы
Дополнительные советы
1. Точные замеры помещения – залог успешного результата. Измерить нужно не просто ширину и высоту кухни, а еще и место, занимаемое водосточной, газовой, вентиляционной и др. трубами. Не уверены, что справитесь? Попросите о помощи – к примеру, тех же специалистов «ИКЕА».
Глядя на проект кухни, мысленно выдвиньте каждый ящик и убедитесь, что ничего ему не препятствует. Откройте все ящики и шкафчики одновременно, потом – окно, навесные шкафы, все с этой же целью. В подробностях представьте, как вы готовите, по какой траектории движетесь и что достаете.
2. Если вы не будете собирать кухню самостоятельно и обратитесь к сотруднику «ИКЕА», он, как, впрочем, и другие мастера, выставит отдельную цену за каждый вид работ. Будьте готовы к этому и заранее проясните, сколько стоит та или иная услуга.
3. Выиграть пространство можно за счет глубины шкафчиков. Чем они глубже, тем больше занимают места. А все ли наполнение шкафа вы используете? Возможно, пара дополнительных полок изменит ситуацию?
Если настенный гарнитур будет глубоким, но вы не знаете, какой размер выбрать – ориентируйтесь на свой рост и, как это ни странно звучит, длину рук. Привстаньте на цыпочки перед стеной, вытяните руки, представив, что вы хотите что-то достать из шкафа. На той же стене сделайте необходимые отметки.
4. Приобретая мебель из тех или иных материалов, поинтересуйтесь их характеристиками
Это важно, потому как некоторые из них не предусмотрены для сильного нагрева плиты или постоянного воздействия влаги. Натуральное дерево требует определенного уровня влажности. 5
Говорят, что привычка – вторая натура. Если раньше мебель на кухне была с круглыми ручками, а теперь вы намерены от них отказаться или выбрать другую модель – хорошенько подумайте. Действительно ли это будет вам удобно?
5. Говорят, что привычка – вторая натура. Если раньше мебель на кухне была с круглыми ручками, а теперь вы намерены от них отказаться или выбрать другую модель – хорошенько подумайте. Действительно ли это будет вам удобно?
6. Перед покупкой ознакомьтесь с отзывами, а еще лучше – посмотрите на фото покупателей. Так вы получите самую верную информацию, а главное – убедитесь в ее правдивости.
На этом наш небольшой экскурс завершен. Уверены, что новый дизайн кухни «ИКЕА» пришелся вам по душе, а прочитанное окажется полезным и познавательным. Желаем вам быстрого, недорогого и великолепного обновления интерьера и неиссякаемого вдохновения для новых творческих комбинаций!
Недостатки сборки кухни Икеа
Что же возможно отнести к недостаткам сборки кухонной мебели Ikea?
Во-первых, это довольно простой, минималистичный дизайн. Хотя, очень много говорится об их большом штате дизайнеров, разрабатывающих новые и оригинальные модели, но я их почему-то это не встречал.
Во-вторых, хочется сказать и о сборке гарнитуров.
К минусам можно отнести то, что в ассортименте этого производителя только стандартные модули (30,40 ,60,80 и т. п.) что очень отличается от кухни, которую можно сделать под заказ. Например, если у вас посудомоечная машина шириной 45см, то фасад подберёте только на 50см, так как 45-х у них не предусматривается. Если точнее, они есть в продаже, но только металлические. Такой вариант может очень сильно искажать общий стиль кухни. Так, вы сделали все фасады красного цвета, а один по причине необходимого размера взяли и поставили металлического. Будет ли это красиво смотреться? Очень спорный вопрос.
Такое решение, на торце кухни встроенная посудомоечная машина шириной 45см расположена в шкафу с металлическим фасадом, когда у других – выдержан коричневый тон. Вот и приходится заказчику ломать себе голову, как же лучше размещать модуля, чтобы были учтены все «не стандарты» крохотного российского кухонного помещения, у которого выпирают из стены вентиляционные каналы или водопроводные трубы.
На мой взгляд, недостатком в ассортименте сборки Икеа возможно считать и отсутствие нормальных стеновых панелей. Часто сборщики, приезжая к клиенту, не обнаруживали их вообще, или видят купленные в Леруа Мерлен или Castorama. Как оказалось, в Ikea их продают не того качества, которое хотелось бы видеть. Это маленькие куски 60х50, сделанные из очень тонкого пластика и неудобные в монтаже. Ещё один нюанс. В моей практике я ни разу не видел торцевые планки для столешницы этой фирмы. Так, если приходится её разрывать, чтобы установить электроплиту, то торцы можно оформить, только применяя соединительные планки. Также непонятна и икеевская кромка, сделанная для неё. Она намного тоньше, чем необходимо, а также не самоклеющаяся. Например, мы возьмём прекрасную столешницу Икея и отпилим её лобзиком до длины нам необходимой
Если обратите внимание, то она по периметру оклеена кромкой ABS, толщина которой 2мм. Нам же для оклейки отпиленной стороны предлагают кромку толщиной 0,4мм
Не покажется ли вам странным, что один торец будет отличаться от другого?

Изменения в ассортименте и новинки компании Икеа
Апрель 2016 года стал новой вехой в истории компании, она отказалась от производимой несколько десятилетий системы каркасов – Фактум и перешла на выпуск кухонной мебели с новой системы каркасов – Метод. Эта система обладает большей мобильностью, что существенно увеличивает количество возможных вариантов сборки. Главная линейка моделей осталась старой, правда, ее разбавили альтернативными вариантами.
Кухни компании Икеа – это многолетний и отточенный до мелочей производственный цикл, огромная база как технических, так и маркетинговых знаний, ежедневно успешно применяющихся на практике. В производственной линии постоянно появляются самые последние разработки и новые инновационные материалы, что позволяет кухням компании иметь современную и отвечающую всем потребностям клиента продукцию. Важным аспектом являются постоянные дизайнерские разработки, в основном это касается аксессуаров, а не модельного ряда кухонь, но они всегда очень точно дополняют выбранный покупателем стиль. Благодаря своим уникальным характеристикам, широкой базе производства, эргономичности, экологичности и одному из лучших соотношений цены и качества кухонная мебель компании Икеа, все так же популярна и ценится потребителями во всем мире. Высокий уровень качества и приемлемые цены позволяют компании оставаться мировым лидером по производству кухонной мебели и аксессуаров. В общем, важнейший голос потребителя это его кошелек и он уже 73 года отдает свои кровные за доступную и функциональную кухонную мебель. Если вы решили приобрести продукцию этой компании, то вряд ли пожалеете о своем выборе!
Кухня в стиле Икеа: общие правила и принципы
Вам очень повезло, если вы решили или решились на создание кухни в стиле Икеа. Ведь в вашем арсенале теперь будет удобная мебель, современные технологии и красивые предметы декора. Например, на кухне вы сможете использовать мебель с беспроводными зарядными устройствами или технологии, позволяющие экономить свет, воду, рационально использовать продукты, за счет их правильно организованного хранения. Кроме того, вы всегда можете воспользоваться дизайн проектом Икеа для вашей кухни — это специальное приложение, позволяющее задать конкретные параметры, выбрать понравившуюся мебель, попробовать скомбинировать ее с другими деталями и расставить в том порядке, в котором хотите. Что отличает кухню Икеа от других стилей:
- Высокая практичность.
- Максимальная натуральность.
- Рациональное использование пространства.
- Возможность в любой момент поменять кухонные модули между собой.
- Открытые системы для хранения продуктов.
- Стильное оформление при максимальной функциональности.
- Оригинальные предметы декора, которые одновременно выполняют роль кухонных помощников.
На кухне Ikea ощущаешь домашнюю теплоту, одновременно чувствуешь себя гостем на профессиональной кухне семейного ресторана, представляешь себя сидящим в лаунж-кафе или на веранде загородного дома.
Возврат
Мы нашли куда приспособить часть лишних деталей, но многое осталось: 2 дверцы, ножки, направляющие для монтажа верхних шкафов, панель для заглушки и пара боковых декоративных панелей. Мы поехали возвращать это все в ИКЕА.



Все наши лишние предметы были не использованы, многие в закрытой упаковке. Но ИКЕА в течение целого года принимает и те вещи, которые вы уже собрали, а потом они вам по какой-то причине не понадобились. Разбираете, берете чек и везете в отдел возврата. Нам очень быстро и без вопросов вернули деньги за все товары. Оказалось, что в ИКЕА удобнее взять деталей для кухни про запас, а потом привезти обратно, чем дозаказывать какие-либо элементы.
Установка мебели
После того, как все элементы гарнитура собраны, их нужно разместить по своим местам. Сначала ставятся столы. Столешницами их накрыть лучше после размещения на месте. Во многих моделях гарнитуров столешницы свободно ложатся на основу и ни чем не прикрепляются. Поэтому их удобнее накладывать в заключительном этапе.

Столы должны встать ровно. Это проверяется уровнем. Если есть перекосы, ножки регулируются и подгоняются под идеал.
Навешивание шкафов
После установки напольных шкафчиков следует навешивание настенных частей конструкции. Первым делом размечается место под монтирование профилей. Это специальные полосы для крепления навесных шкафчиков. От пола до нижнего края шкафа мастера обычно отмеряют 140 см. Можно замерять и от поверхности столов.
В задних стенках шкафчиков просверливаются отверстия. В них продеваются навесы. Которые прикручиваются к стенам. Шкафы навешиваются на крепежные полосы за эти навесы. Некоторые мастера для особой прочности скрепляют еще и смежные стенки шкафов. Но, если понадобится демонтаж, разъединить их будет сложно.

Варианты планировки мебельных решений для кухни
Угловая компоновка
Одна из самых универсальных вариаций расположения кухонного ансамбля. Г-образная планировка позволяет расположить достаточное количество систем хранения с интегрированной бытовой техникой в помещениях самой разной формы и размеров.
Словом, угловая планировка позволяет создать полноценную рабочую и обеденную зону, не в ущерб вместительности систем хранения или размерам бытовых приборов.
В угловой компоновке несложно выполнить плавило «рабочего треугольника», расположив плиту или варочную панель на одной стороне гарнитура, а мойку – на перпендикулярной. Холодильник можно установить отдельно или интегрировать в ряд с раковиной.
с кухонным островом:
с полуостровом:
Линейная планировка
Компоновка кухонного ансамбля в один ряд удобна для кухонных пространств небольшого размера или семей, у которых нет необходимости в установки большого количества систем хранения и интеграции нескольких бытовых приборов в мебельный гарнитур.
с кухонным островом:
с обеденным столом:
П-образное расположение мебельного ансамбля
Компоновка кухонного гарнитура в форме буквы «П» целесообразна в случае, если вам необходимо расположить большое количество систем хранения с интегрированными бытовыми приборами. При этом верхний ярус кухонных шкафов может быть частично или полностью заменен на открытые полки (все зависит от размеров помещения и ваших личных предпочтений).
- В большой кухне, форма которой близка к квадрату, останется достаточно свободного пространства для установки обеденной группы или кухонного острова в центре помещения.
- Если же кухонное пространство сильно вытянуто, или имеет малую площадь, то столовый сегмент придется переносить в гостиную или обустраивать отдельное помещение.
с кухонным островом:
Параллельная планировка
При параллельной планировке кухонные модули располагаются в два ряда друг напротив друга. Такой способ организации рабочей зоны целесообразен в кухнях, которые являются проходными помещениями или обладают большим панорамным окном, балконным блоком или дверью (выход на задний двор в частном доме).
- Если помещение сильно вытянуто, то для установки обеденной группы или кухонного острова, скорее всего не останется свободного места.
- Если же форма помещения квадратная или близка к этому, то небольшой (желательно круглый или овальный) обеденный стол можно будет установить без последствий для эргономичного протекания всех рабочих процессов.
При параллельной компоновке несложно использовать правило «рабочего треугольника», расположив его две воображаемые вершины, «конфликтующих» между собой, раковину и плиту, на противоположных сторонах.
В чём американцы обвиняют комоды
Удобная мебель стала причиной непоправимой трагедии. В нескольких американских семьях погибли дети. И комод стал непосредственной причиной их гибели.
Это связано с неустойчивостью собранного товара. Оказалось, что собранный комод (модель с шестью ящиками весит почти 24 кг) легко опрокидывается. Причём в домах, где нет маленьких детей, с мебелью нет проблем. Ведь комоды не переворачиваются просто так, сами по себе. Всё происходит в тот момент, когда любопытный и подвижный ребёнок пытается разглядеть, что находится на комоде. Немного выдвинув ящики, малыши используют их в качестве ступеней лестницы и начинают забираться наверх. В этой ситуации и проявляется неустойчивость предмета мебели. Он переворачивается, малыш падает, а комод придавливает его сверху.
Оставлять ситуацию без вмешательства было нельзя. В США было принято решение о запрете мебели, оказавшейся опасной.
Изменения в ассортименте и новинки
Если говорить о масштабных новинках, то последняя была в апреле 2016 года, потому что это была новая веха в истории компании, которая наконец-то отказалась от производимой в течении последних нескольких десятков лет системы каркасов («Фактум») и теперь стала выпускать мебель с новой системой каркасов, которая называется «Метод». Такая система считается более мобильной, а это в ощутимой мере увеличивает количество разных вариантов сборки.
Кухни от ИКЕА является многолетним и отточенным до мелочей производственным циклом, невероятно большой базой и технических, и маркетинговых знаний, которые каждый день с успехом применяются на практике. На производственной линии постоянно появляются самые последние разработки и необычные инновационные материалы, что дает возможность кухням компании иметь современную продукцию, которая способна отвечать всем требованиям компании. Важным аспектом является применение новейших дизайнерских разработок, и в основном это будет касаться аксессуаров, а не модельного ряда кухонных помещений, но они всегда достаточно точно помогаю дополнять стиль, выбранный покупателем. Если вы захотите купить мебель от этого производителя, то вряд ли пожалеете о своем выборе.
( Пока оценок нет )
Олег Сомов/ автор статьи
Особенности «Икеевских» кухонных гарнитуров
Шведы предлагают четыре линейки, в каждой из которых можно найти множество вариантов: от самых бюджетных до премиум-класса. Выполнены они в одном из следующих стилей:
- Скандинавском.
- Современном («модерн»).
- Кантри («деревенском»).
- Молодежном.
Мебель Икеа для кухни в скандинавском стиле
Все они производятся в соответствии с общими внутрифирменными стандартами и единым подходом к изготовлению и дизайну, поэтому у них имеются свои особенности:
- Почти все напольные шкафы устанавливаются на ножки из ударопрочного ABS-пластика, каждая из которых способна выдерживать нагрузку до 120 килограмм, а все вместе они — до пяти центнеров.
- Кухонная мебель от Икеа состоит из отдельных модулей стандартного размера, что позволяет с удобством подобрать нужную вам компоновку.
- Фурнитура, закрепляющая выдвижные ящички, очень надежна за счет применения тандембоксов от компании Blum и особых направляющих, которые производятся для шведов по специальному заказу.
- Все фасады производятся по безрамочной технологии из качественной МДФ. При этом отсутствие рамки никак не уменьшает прочность конструкции, ведь она надежно фиксируется с помощью дюбелей и винтов.
- «Икеевская» МДФ производится из древесного шпона, который затем ламинируется специальной долговечной пленкой, изготовленной по стандарту Е-1. В зависимости от коллекции и модели пленка различается расцветками и текстурой.
Кухонный гарнитур Икеа в стиле модерн
Стулья
Стулья и табуреты «ИКЕА» имеют особую конструкцию, что позволяет сэкономить полезную площадь кухни. К тому же данные предметы мебели от европейского бренда выполнены в различных стилях и могут дополнительно декорироваться съёмными чехлами или подушками.
Благодаря широкому разнообразию ассортимента «ИКЕА», каждая домохозяйка сможет подобрать наиболее эргономичный и гармонично вписывающийся в интерьер кухни вариант стула или табурета.












Барные стулья и табуреты для кухни







Учитывая все изложенные выше факты, можно резюмировать:
- надежную и функциональную мебель не обязательно заказывать в дорогих фирмах,
- обеденные зоны можно выбрать как из готовых комплектов, так и скомпоновать самому,
- расширить возможность просторной кухни можно за счет дополнительных столешниц, тумб и барной мебели Икеа.
Все варианты для этого есть.
Особенности выбора
Готовые кухни действительно облегчают процесс заказа мебели
Но чтобы не пожалеть о выбранном гарнитуре, обратите внимание на важные нюансы:
Размер. Замеры включают не только габариты комнаты по длине, ширине, высоте
Важно также учесть расположение проемов (двери, окна), коммуникаций, розеток. Планировка
Определитесь, какая кухня вам нужна — прямая, угловая, двухрядная, п-образная, островная, двухуровневая или одноярусная. Стиль
Важная составляющая мебели — вы предпочитаете классические формы с фасками или минималистичный дизайн в глянце? Техника. Учтите все электроприборы, для которых нужно предусмотреть место. Холодильник, варочная панель, духовой шкаф, посудомоечная и стиральная машины. Хранение
Понятно, что чем больше вещей вы планируете хранить, тем больше должно быть шкафов икеа Но обратите внимание также на фурнитуру: нужен ли вам рейлинг, решение для сортировки мусора, карусель в угловой модуль?
Сколько в среднем стоит кухня на заказ?
Смотря какая и где
Хороший опрос)) ) мы заказали за 80 тыс. Подруга за 460 тыс. Среднее посчитать?))
сестра где-то около 200т. р. отвалила
От 15000 и выше, смотря где и как заказывать будете. Мы брали в икее, нам всё рассчитали, нарисовали в программе по нашим размерам. При этом мы выбирали не дорогую мебель, цвет и комплектующие. И у нас кухня маленькая.
Знакомые за 70 000 установили, и это не самая дорогая.
Сильно заисит от площади и от материалов фасада. На многих сайтах есть предварительный расчет стоимости, там и прикиньте.
с понедельника тока «фартук» тысяч на 30,а мебель и техника где-то на 300т. р., 8 пог. м. с барной стойкой. а так от 100-до 200 т. р.
значительно дешевле покупать модульную мебель. Берете что надо и что влезает к вам на кухню.
друг мой делал недавно — 32000 у. е. массив, с элементами резьбы, столешница дуб, фасад — ольха — липа, боковые стенки — точно не помню — вроде бы как липа перед этим делал чуть поменьше — 24000 у. е
в леруа мерлен есть консультанты по планировке кухни. Даешь им размеры и выбираешь модель кунхи. Они делают расчет. У нас кухня получилась около 60 тыс. Но собирали ее мы сами.
А сколько стоит автомобиль ?
Обязательно делайте кухню на заказ, не пожалеете. Да дороже чем обычная, но очень удобная и красивая, экономит место и отличается своей функциональностью. Я здесь заказывала и очень довольна https://www.schabs.ru/kuhni-s-fasadami-mdf-pokrytye-emalyu.html.
touch.otvet.mail.ru
ANRÄTTA комбинир СВЧ с горячим обдувом
3.1/5 оценка (86 голосов)
Артикул: 104.117.65
Комбинация горячего обдува и СВЧ сокращает время приготовления блюд и расход энергии. Бесплатно 5 лет гарантии. Подробнее об условиях гарантии – в гарантийной брошюре. Функция быстрого подогрева на полной мощности; идеально подходит для подогрева напитков. Функция автоматической разморозки 5 типов продуктов (тесто, рыба/морепродукты, овощи, мясо и птица). Функция «гриль» для приготовления тонких ломтиков мяса и овощей, а также для обжаривания стейков. Легко поддерживать в чистоте, так как благодаря специальной обработке на поверхности нержавеющей стали не остается видимых отпечатков пальцев. Легко установить на комфортной высоте в напольный или высокий шкаф.
Ограниченные размеры

Теперь, когда вы знаете, что вас ждет, и готовы работать самостоятельно, пришло время познакомиться с размерами мебели, чтобы подготовить дизайн кухни IKEA. Здесь очень помогает программа планировщика и дизайна кухни, которая позволяет вам свободно планировать и оценивать нашу кухню.
Однако это всего лишь инструмент. Вы даже можете сделать хороший проект с помощью листа бумаги и карандаша. Как мы уже говорили, вы можете воспользоваться помощью консультанта ИКЕА, но даже он не преодолеет ограничения, связанные с размерами мебели.
Размеры кухонных шкафов ИКЕА

В случае кухонь ИКЕА у нас есть только несколько готовых размеров шкафов и, что является самым большим недостатком, у нас нет навесного шкафа шириной 45 см, который соответствовал бы ширине узкой посудомоечной машины. Это вызывает значительные трудности в дизайне кухни, потому что нижняя мебель не будет соответствовать верхней мебели.

Более того, меньший диапазон размеров — еще одно препятствие, которое особенно ощутят люди, планирующие маленькие кухни, в которых борьба ведется за каждый сантиметр. При таких интерьерах очень остро стоит отсутствие промежуточных или нестандартных размеров.
Простые изменения означают отсутствие гарантии
Здесь также отсутствует тесное сотрудничество между дизайнером и редактором. Некоторые идеи осуществимы, но требуют внесения изменений самостоятельно. Конечно, доработка шкафа влечет за собой потерю гарантии, но часто это жертва, благодаря которой вы можете выиграть.
Не говоря уже о том, что вы теряете гарантию, даже когда делаете решения, обычно используемые в нестандартной мебели, например, более мелкие шкафы. Но как мы уже говорили в первом пункте — ИКЕА — это магазин самообслуживания с готовой мебелью. Этот момент чувствуется на каждом этапе реализации.

Одним словом, если у вас нетипичный интерьер, использование только стандартных решений без внесения ваших модификаций может привести к необходимости использовать слишком много компромиссных решений, которые никогда не будут соответствовать самым важным потребностям.
Выводы
При всей привлекательности кухонной мебели Ikea, доверить сборку кухни Икеа лучше профессионалам, ведь именно они точно знают, как это делать. Собрать кухню Икеа в Москве вам помогут наши специалисты, звоните +7 499 340 32 21
Напольный шкаф под мойку (1 дверца и 2 ящика) МЕТОД / МАКСИМЕРА в магазине IKEA можно найти в разделе МЕТОД система Напольные шкафы, высота каркаса 80 см, для быстрого поиска используйте артикул 491.049.25. Дизайнером изделия является IKEA of Sweden/Mikael Warnhammar.
Полезная информация
Данная информация о товаре «Напольный шкаф под мойку (1 дверца и 2 ящика) МЕТОД / МАКСИМЕРА» поможет поближе познакомиться с продуктом.
Для разных стен требуются различные крепежные приспособления. Подберите подходящие для ваших стен шурупы, дюбели, саморезы и т. п. (не прилагаются).Можно дополнить ручкой.
Главные черты
- Благодаря доводчику ящики закрываются плавно, мягко и бесшумно.
- Ящик напольного/высокого шкафа выдвигается полностью, обеспечивая удобный доступ к содержимому.
- Ящик с плавным ходом.
- Последние несколько сантиметров ящик закрывается автоматически.
- Каркас имеет устойчивую конструкцию, толщина 18 мм.
Описание
Фронтальная панель ящика/ дверь:
Основные части: ДСП
Фронтальная сторона/ Задняя сторона: Дубовый шпон, Прозрачный акриловый лак
Кромка: Массив дуба, Прозрачный акриловый лакНапольный шкаф д/встр духовки/мойки:
Каркас: ДСП, Меламиновая пленка, Полипропилен
Задняя стенка: ДВП, Акриловая краска
Передняя обвязка: Сталь, ГальванизацияЯщик, низкий/ ящик, высокий:
Боковая часть ящика/ Задняя стенка ящика: Сталь, Эпоксидное/полиэстерное порошковое покрытие
Дно ящика: ДСП, Меламиновая пленка, Меламиновая пленка
Направляющие: Оцинкованная сталь
Обвязка ящика: Сталь, Полиэстерное порошковое покрытие
Амортизаторы: Пластмасса АБС, МаслоФронтальная панель ящика, низкая:
ДВП, Акриловая краскаКрепеж д/установки ящика на дверцу:
Пластмассовые части: Ацеталь пластик
Уголок: Сталь
Артикул
Используйте артикул, чтобы быстро найти «Напольный шкаф под мойку (1 дверца и 2 ящика) МЕТОД / МАКСИМЕРА» в магазине IKEA.
Кухни от ИКЕА не только стильно выглядят, но и просты в сборке. Я решила проверить это на своем опыте, а теперь делюсь им с вами. В этой статье вы узнаете о трудностях, которые могут поджидать вас с момента доставки кухни и до возврата лишних деталей. Если вы только раздумываете о покупке кухни, полезно будет прочитать первые две части: и .



































