Оптимальное управление
В статье рассмотрено управление только одним видом исполнительных устройств СПДВ – вентиляторами. Однако СПДВ с принудительным побуждением перемещаемой среды, помимо вентиляторов, использует и другие исполнительные устройства:
- вентиляционные клапаны с электромеханическим или электромагнитным приводом, управляющие движением потоков;
- самооткрывающиеся вентиляционные клапаны, сбрасывающие избыточное давление (КСИД) в обслуживающих помещениях или защищающие здания от теплопотерь;
- вспомогательные вентиляционные клапаны с электромеханическим приводом, которые теплоизолируют противодымное вентиляционное оборудование в холодное время года (например, при установке КСИД в проеме наружного ограждения);
- ворота, двери или окна с электромеханическим приводом для открывания проемов при возмещении воздухом удаляемого дыма.
Обилие дистанционно управляемых исполнительных устройств делает разработку полного комплекта ШУ СПДВ непростой задачей. В этом случае сначала следует определиться с составом применяемых шкафов, а затем отрабатывать их конфигурацию. При выборе количества ШУ СПДВ необходимо соблюдать разумный баланс между их сложностью и количеством. Эти вопросы авторы предполагают рассмотреть в дальнейшем.
___________________________________________1 Устройство управления различными исполнительными механизмами специалисты называют по-разному: шкафом, щитом, панелью. В данной статье принято название, используемое в ГОСТ Р 53325–2012 “Техника пожарная. Технические средства пожарной автоматики. Общие технические требования и методы испытаний” (п. 7.2.6).2 В настоящий момент о возможности подобного решения следует запрашивать ВНИИПО.
Опубликовано: Каталог “Пожарная безопасность”-2018Посещений: 6321
Автор | |||
Автор | |||
В рубрику “Пожарная безопасность” | К списку рубрик | К списку авторов | К списку публикаций
Управление
Управление выполняется:
- В автоматическом режиме – по командному сигналу от приборов АПС, блоков контроля/пуска систем пожаротушения тонкораспыленной водой, порошками, аэрозолями, газами; клапанов управления автоматических установок водяного тушения со спринклерными, дренчерными оросителями.
- Дистанционно – от команд, которые выдает шкаф управления противопожарными клапанами, установленный в диспетчерской/в помещении пультовой дежурной смены предприятия/организации, а также с кнопок, установленных в пожарных шкафах или возле эвакуационных выходов. Перевод заслонок из исходных – открытых/закрытых положений в рабочее состояние выполняется при подаче электропитания на привод или при его обесточивании.
- Возврат заслонок в исходные положения после эксплуатации в условиях пожара или контрольных испытаний после окончания монтажно-наладочных работ, проверок работоспособности в зависимости от вида/типа, исполнения изделий выполняется подачей электропитания или вручную. Как правило, все устройства огне-, дымо-преграждения снабжены внешними датчиками положения заслонки с дублированием этой информации на контрольных панелях блоков/шкафов управления.
Электроприводы противопожарных клапанов, являющиеся исполнительными устройствами нормально закрытых, дымовых КП, согласно указаниям СП 7.13130.2013 обязаны сохранять исходное положение заслонки при отключении электроснабжения привода устройства.
Дополнительная информация по теме
Преимущества и недостатки различных подходов.
В дополнение к рассмотренному в статье оборудованию, в качестве выводов, рассмотрю плюсы и минусы различных подходов к организации систем противодымной защиты: на основе полнофункциональных мультиустройств, и на основе многокомпонентных блочно-модульных адресных систем.
Недостатки применения блочно-модульных систем.
В статье Типичные проблемы с противопожарными клапанами вентиляционных систем в качестве одной из проблем при управлении клапаном и вентилятором при помощи разных устройств отмечал возможность пуска вентилятора без открытия клапана.
Часто это чревато.
В случае когда и вентилятором и клапанами управляет одно устройство – отслеживание недопустимых ситуаций происходит внутри этого устройства.
Даже первый рассмотренный шкаф с недостатками имеет такую возможность.
Недостатки применения полнофункциональных мультиустройств.
- Можно предположить наличие самого рассматриваемого недостатка – цены, но выше уже было показано, что цена не обязательно будет выше.
- Ну и второй по неприятности недостаток – кабельные линии: к каждому клапану нам необходимо тянуть силовой и сигнальный кабель от шкафа управления. В случае с адресными системами все устройства соединяются одной сигнальной адресной линией, а все клапана – одним силовым кабелем.
- При заказе полнофункционального шкафа структура автоматизации на объекте должна уже быть ясна 100% – а это редкость.
Ресурсы, сроки службы
Показатели надежности (ресурс) клапанов для атомной станции соответствуют следующим значениям:
- средняя наработка на отказ не менее 16 000 часов;
- время непрерывной работы без проведения техобслуживания и ремонта не менее 13200 часов;
- назначенный срок службы корпусных изделий не менее 40 лет;
- вероятность безотказной работы 0,98;
- среднее время восстановления работоспособности не более 24 ч.
Клапаны I категории сейсмостойкости сохраняют работоспособность во время и после прохождения землетрясения интенсивностью до максимально расчетного землетрясения (МРЗ), сохранять работоспособность при землетрясении интенсивностью до проектного землетрясения (ПЗ) включительно и после его прохождения, а также воздействия внешней ударной волны (ВУВ) и падения самолета, в соответствии со спектрами ответа строительных конструкций для АЭС.
Клапаны II категории сейсмостойкости сохраняют работоспособность после прохождения землетрясения интенсивностью до проектного землетрясения (ПЗ) включительно, в соответствии со спектрами ответа строительных конструкций.
К клапанам III категории сейсмостойкости требование работоспособности в указанных режимах не предъявляется.Клапаны выполняют свои функции и обладают стойкостью к следующим параметрам перемещаемой среды – дым с температурой до + 600 0С.
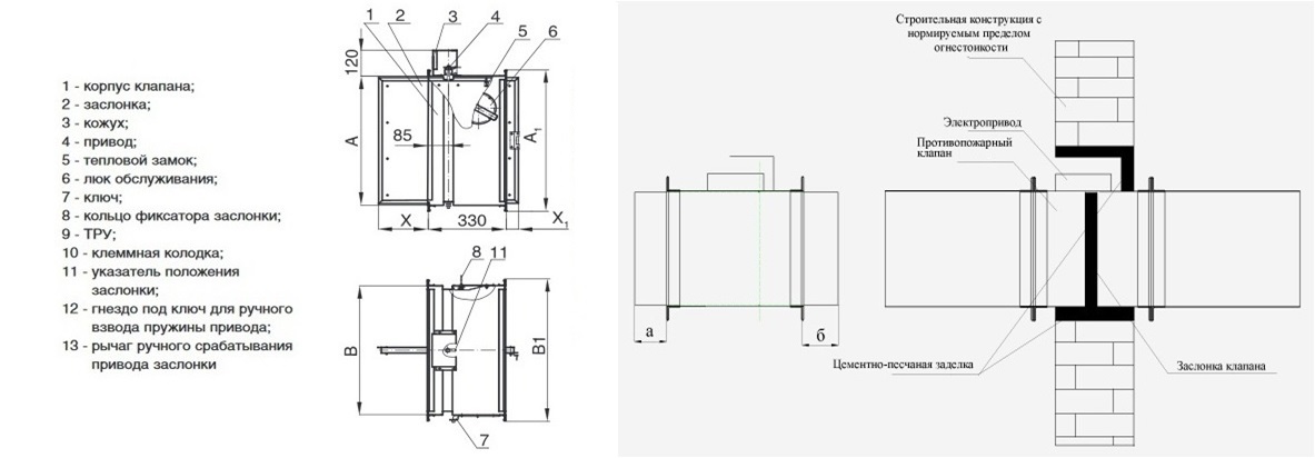
![]() | 1 – Заслонка2 – Корпус3 – Привод4 – Термодатчик5 – Фланец |
Рисунок 1 – Общее устройство клапана противопожарного
![]() | 1 – Заслонка2 – Корпус3 – Оболочка взрывозащиты с приводом4 – Термовыключатель5 – Фланец |
Рисунок 2 – Общее устройство клапана противопожарного взрывозащищенного
Типы
Существует несколько видов/типов таких технических устройств, являющихся как преградой открытому огневому, интенсивному тепловому воздействию, проникновению горячих дымовых газов в смежные помещения, так и исполнительным устройством удаления вредных летучих веществ:
- Нормально открытый – закрывающийся при возникновении очага пожара в обслуживаемом вентиляционной системой помещении. Такой клапан противопожарный огнезадерживающий используется в составе различных систем вентиляции, установок местных отсосов, кондиционирования воздушной среды в защищаемых помещениях. Довольно часто этот самый распространенный вид называют огнезадерживающим, что вполне отвечает его основной функции.
- Нормально закрытый – открывающийся при пожаре. Предназначен для эксплуатации в составе установок противодымной или общеобменной вентиляции.
- Двойного действия – в обычных условиях открытый, закрывающийся при возникновении возгорания; открывающийся после его ликвидации для возможности удаления из помещения летучих продуктов горения, взвеси порошка, газов, аэрозолей, если ликвидация очага пожара проводилась АУПТ с такими огнетушащими веществами.
- Дымовые – это клапана нормально закрытые, имеющие предел огнестойкости только по характеристике Е, т.е. по потере плотности. Они предназначены для монтажа в вентиляционных проемах как вертикальных вытяжных шахт систем дымоудаления, так и на огнестойких воздуховодах, ответвляющихся от дымовых шахт.
- Универсальный (КПУ) предназначен для автоматической блокировки потоков пламени, разогретых дымовых газов, распространяющихся по вентиляционным коробам/каналам как в общеобменных установках, так и в системах дымоудаления.
- Автоматический – это наиболее распространенный вариант изготовления этой пожарно-технической продукции, позволяющий без участия дежурного персонала, дистанционно приводящего такое оборудование в действие; а значит без пресловутого «человеческого фактора», надежно герметизировать, разделять пожарные отсеки/помещения при возникновении пожара в одном из них.
- Обратный предназначен для установки у вентиляторов установок приточной противодымной защиты для их защиты.
Многие компании производители вентиляционного оборудования изготавливают различные виды/типы противопожарных клапанов, без которых невозможно спроектировать, монтировать и эксплуатировать современные системы обеспечения общественных, промышленных зданий/сооружений чистым воздухом, удаления загрязненной среды в результате дыхания, приготовления пищи, ведения технологических процессов.
Для защиты вентиляционных систем производственных цехов/участков, отдельных помещений категорий по взрывопожарной опасности А и Б выпускаются во взрывозащищенном исполнении.

Виды монтируемых клапанов в систему вентиляции
Пример не соответствующего нормам шкафа управления противопожарными вентиляторами и клапанами.
Не знаю как там устроена кухня вентиляционщиков (наверное шкафы управления им пихают поставляют вместе с вентилятором при заказе), но часто оказывается что …
На объекте уже куплены за не малые деньги шкафы управления вентиляторами, которые не годятся для противопожарных нужд.
В лучшем случае будет вот такой замечательный Шкаф системы автоматического управления ВПД-4П13К2IP54-2-0-0-0.
Этот шкаф имеет каналы управления вентилятором подпора воздуха и тремя клапанами.
Сделан хорошо, добротно и, наверное, дорогой. Запуск вентилятора происходит по схеме “И” – все три клапана должны открыться, чтобы разрешить запуск вентилятора. Есть индикация состояния всех клапанов.
Есть подобие режима автоматики, выход сигналов пуск и авария.
Собственно у шкафа три режима ВКЛ/ВЫКЛ/ДУ: опробование, совсем отключен, автоматический (внешний).
Вот схемы соединений из паспорта этого шкафа, из которых все понятно.
Этот шкаф не соответствует нормам, что не мешает повсеместно применять подобные шкафы.
Бывает что появляется предписание и в эти шкафы добавляют реле для выдачи сигналов диспетчеризации уже кустарным способом. Но контроль целостности обмоток двигателя добавить не просто.
Вот статья инженеров ООО «ВЕЗА» об их точке зрения на то – какие должны быть шкафы противодымной вентиляции: “Лукавая сертификация, или Невыученные уроки Зимней вишни”.
Статья опубликована в журнале “АВОК” за №4’2019. В этой статье авторы ругают производителей шкафов, подобных рассмотренному выше, и рекламируют секретный шкаф “Шквал” (о котором не нашел информации в интернете).
Но постойте – а какой производитель указан в документации на рассмотренный шкаф? … Но может этот шкаф старый или левого производства? Оставим это и рассмотрим технические решения.
Конструкция клапанов
Конструктивно клапаны изготавливаются круглого и прямоугольного сечений. Размер клапанов прямоугольного сечения от 150х100 мм до 1000х1000 мм. Размер клапанов круглого сечения – диаметры от 160 до 1000 мм.
Конструкция клапанов обеспечивает возможность присоединения клапана как к каналу воздуховода, так и стеновой проем. Конструкция клапанов состоит из корпуса, выполненного из нержавеющей стали марки 12Х18Н10Т, установленной в нем заслонки створчатого (поворотного) типа с огнестойким материалом и привода.
В конструкции используются электроприводы собственного производства ЭПВА-5П, ЭПВА-10П для клапанов 2 и 3 классов безопасности I и II категорий сейсмостойкости, а также электроприводы «BELIMO» типов BLE, BLF для клапанов 4 класса безопасности II и III категории сейсмостойкости.
Клапаны работоспособны при любой пространственной ориентации.
По функциональному назначению клапаны могут применяться в качестве:
- нормально открытые НО (закрываемые при пожаре). В соответствии с классификацией НПБ 241-97 данный тип клапанов имеет наименование «огнезадерживающий клапан». Устанавливаются в системах общеобменной вентиляции, кондиционирования воздуха, а также в приточных и вытяжных системах помещений, защищаемых установками газового, аэрозольного или порошкового пожаротушения, для отключения от помещения, в котором возник пожар;
- нормально закрытые НЗ (открываемые при пожаре), устанавливаемые в системах вытяжной и приточной противодымной вентиляции и системах для удаления дыма и газа после пожара из помещений, защищаемых установками газового, аэрозольного или порошкового пожаротушения;
- двойного действия (закрываемые при пожаре и открываемые после пожара), устанавливаемые в системах общеобменной вентиляции помещений с газовым, аэрозольным или порошковым пожаротушением, используемых для удаления газов и дыма после пожара. Конструкция клапанов двойного действия аналогична конструкции клапанов НЗ и не имеет отдельного обозначения;
- дымовые клапаны Д, предназначенные для удаления дымовых газов системами вытяжной противодымной вентиляции.
Взрывозащищенное исполнение предполагает наличие в конструкции клапана «неискрящих пар материалов», т.е. все элементы клапана, входящие в минимальное соприкосновение (узлы трения, удара и т.п.) изготавливаются с использованием разнородных металлов. Клапаны во взрывозащищенном исполнении относятся к электрооборудованию группы IIA, IIB, IIC по ГОСТ IEC 60079-10-1 и предназначены для применения во взрывоопасных зонах в соответствии с маркировкой взрывозащиты 1Ex d IIC T4 Gb / IIGb с IIC Т4 по ГОСТ Р МЭК 60079-0-2011 и требований ГОСТ IEC 60079-14, ГОСТ IEC 60079-17.
Взрывозащита обеспечивается соответствием клапанов требованиям ГОСТ Р МЭК 60079-0, ГОСТ Р МЭК 60079-7-2012, ГОСТ IEC 60079-1, ГОСТ Р 52350-7, ГОСТ Р 52350-7, ГОСТ 31441.1, ГОСТ 31441.5. Взрывозащищенные клапаны устанавливаются во взрывоопасных помещениях, относящихся к классам В-1, В-1а и В-1б по классификации ПУЭ.
Структурная схема условного обозначения клапанов:

Пример условного обозначения при заказе и в другой документации:«Клапан противопожарный КП–А-EI120-НО-М24-4-II-400×400 ГТКМ.632752.002ТЗ»Клапан противопожарный с пределом огнестойкости 120 мин, нормально открытый, с электромеханическим приводом на 24В, 4 класса безопасности, II категории сейсмостойкости, сечением 400×400 мм.
«Клапан огнезадерживающий КП–А-EI60-НО-В-М24-Т-2НО-I-200×200 ГТКМ.632752.002ТЗ»Клапан огнезадерживающий с пределом огнестойкости 60 мин, во взрывозащищенном исполнении, нормально открытый, с электромеханическим приводом на 24В, с термоэлементом, 2 класса безопасности, классификационное обозначение 2НО, I категории сейсмостойкости, сечением 200х200 мм.
Электроприводы противопожарных клапанов
На противопожарных клапанах устанавливаются следующие типы приводов:
- электромеханические приводы с возвратной пружиной;
- реверсивные электроприводы;
- электромагнитные приводы.
При выборе типа привода и дополнительных устройств (например, тепловых замков), обеспечивающих срабатывание клапана, учитываются следующие факторы:
- назначение клапана (нормально открытый, нормально закрытый и дымовой);
- нормативные требования к способам управления срабатыванием клапана при пожаре;
- место установки клапана с точки зрения удобства проведения периодических испытаний и возможности управления им при пожаре;
- затраты на эксплуатацию клапанов.
Электромагнитные, электромеханические и реверсивные приводы позволяют обеспечить автоматическое, дистанционное и местное управление клапанами в соответствии с нормативными требованиями при надлежащем исполнении системы управления.
Устройство
Любое устройство для вентиляции состоит из следующих элементов:
- Корпуса. Он может быть квадратного, круглого или прямоугольного сечения. Изготавливается из металлических сплавов, не подверженных коррозии, или оцинкованной стали. Имеет один фланец – стеновое исполнение или два присоединительных элемента – для канального варианта монтажа.
- Заслонки – поворотной конструкции, располагающейся полностью внутри корпуса. Может быть только цельной, для обеспечения надежности и плотности изделия; дроссельные заслонки, предназначенные для регулировки потоков воздуха, что состоят из нескольких частей, соединенных между собой, для КП не применяются. Для установки на вентиляционные прямоугольные короба большого сечения изготавливаются с несколькими заслонками, называемые многостворчатыми.
- Корпуса огнезадерживающих клапанов выпускаются в двух вариантах исполнения – для внутреннего и наружного размещения привода.
- Для обеспечения необходимого предела стойкости к воздействию огневого потока, способного распространяться по вентиляционному коробу/каналу, заслонку и стенки корпуса обрабатывают термостойкими покрытиями/красками, отвечающими требованиям по огнезащите металлических конструкций.
- Привода. Он может быть пружинным, электромагнитным или электромеханическим. Управление приводом осуществляется дистанционно или в автоматическом режиме. В качестве побудительной внешней системы в большинстве случаев используются установки АПС с тепловыми, газовыми, дымовыми пожарными извещателями, способными фиксировать тление, начальную стадию возгорания органических веществ.

Устройство противопожарного клапана
Размеры противопожарных клапанов различны в связи с тем, что сечение вентиляционных коробов, каналов/шахт на общественных, промышленных объектах сильно различаются. Ряд стандартных типоразмеров обычно начинается от диаметра в 200 мм – для КП круглого сечения, 200 х 200 мм – для изделий квадратного/прямоугольного сечения. Пределов габаритам не установлено, при необходимости защиты крупных вентиляционных систем промышленных предприятий, общественных объектов с большим сечением воздуховодов многие производители изготавливают такое оборудование на заказ, если готовые варианты из выпускаемой линейки моделей не подходят по размерам или исполнению.
Блок управления противопожарными клапанами от различных производителей предназначен для контроля за группой КП – от 1 до 4 шт., формируя командные сигналы на открытие/закрытие заслонок. БУПК также необходим для наблюдения за исправностью электромеханических, реверсивных, электромагнитных приводов, наличием электроснабжения, проверки работоспособности устройств в составе систем приточно-вытяжной вентиляции, дымоудаления.
Принцип работы
Шкафы управления противопожарным вентилятором, соответствующие нормам.
Эти шкафы имеют все, что необходимо чтобы соответствовать нормам:
1. Шкафы имеют возможность запуска, напряжением 24В, что снимает проблемы с контролем целостности.
2. Имеют режимы работы Ручной/автоматический
3. Шкафы выдают исчерпывающие сигналы диспетчеризации: Работа, Автоматика, Авария.
4. Осуществляется контроль всех цепей в том числе и силовых.
5. Имеется возможность внешнего ручного управления и управления с панели шкафа.
6. Ну и самое главное – сертификат соответствия федеральному закону №ФЗ-123.
Болид.
ШКП-10 14925₽.
Шкаф контрольно-пусковой. Цепей управления клапаном нет и необходимо применение в рамках адресной системы модуля дымоудаления С2000-СП4, стоимостью 2200₽.
Плазма-Т.
ШУВ 11кВт 15332₽.
Шкаф управления трехфазным двигателем насоса/вентилятора мощностью до 11кВт с прямым пуском комплектация DEK, IP31. Цепей управления клапаном нет – тоже надо что-то делать.
Рубеж.
ШУН/В-15-00 прот.R3 29000₽.
Сравнение этого шкафа с другими не совсем корректное, поскольку этот шкаф сам является адресным устройством, то-есть к нему необходимо подключить только один провод адресной линии связи и не нужен прибор или модуль для шлейфов контроля и линии пуска.
Управление и диспетчеризация происходит по адресной сети.
Цепей управления клапаном нет и необходимо применение в рамках адресной системы модуля дымоудаления МДУ-1, стоимостью 2280₽.
Юнитроник.
Шкаф управления (электродвигателем) адресный ШУП-3/ШУП-45 28000р.

Это тоже адресный шкаф управления.
Для управления клапанами требуется модуль адресный управляющий МАКС-УРП за 2380р.
Специфика производства и проектирования
Шкафы управления (ШУ) СПДВ производятся фирмами двух видов:
- компаниями, производящими как вентиляционное оборудование, так и оборудование систем автоматического управления вентиляционными системами;
- компаниями, которые не производят вентиляционное оборудование и специализируются на производстве приборов автоматического управления системами, используемыми в зданиях и сооружениях.
Компании первого вида нередко сталкиваются с ситуациями, когда проектировщики нуждаются в серьезной технической поддержке в расчетах при выборе типа вентиляционного оборудования, консультациях по размещению его в здании и выбору конкретных типоразмеров. В этих случаях отработка четкого алгоритма управления СПДВ осуществляется совместно обеими сторонами.
Естественно, после решения всех технических вопросов в спецификации раздела ОВ закладываются модели ШУ СПДВ фирмы, производящей вентиляционное оборудование. Эти шкафы являются информационно и электрически совместимыми с любыми видами взаимодействующих средств пожарной автоматики.
Компании второго вида, как правило, не могут оказать серьезную техническую поддержку при проектировании СПДВ, и им часто приходится ограничиваться производством ШУ СПДВ, которые решают задачу управления СПДВ фрагментарно.
Выпускаются три основные разновидности ШУ СПДВ:
- шкафы управления вентиляторами;
- шкафы управления клапанами;
- комбинированные шкафы управления вентиляторами и клапанами или другими исполнительными устройствами, заполняющими проемы (воротами, дверьми, окнами).
При этом следует иметь в виду, что комбинированные ШУ охватывают управление СПДВ не полностью. Это вызвано тем, что до сих пор не выработаны общепризнанные типовые вентиляционные схемы СПДВ, например для безопасных зон или поэтажных коридоров с компенсирующей подачей наружного воздуха. Поэтому решения принимаются индивидуально, иногда с сомнительной эффективностью получаемых результатов. Отсутствие четкого представления об алгоритмах управления исполнительными устройствами СПДВ препятствует оптимизации состава ШУ и тем более безошибочному созданию общего для системы ШУ.
В данной статье рассматриваются шкафы, которые управляют только основными исполнительными устройствами механической СПДВ – вентиляторами (ШУВ).
Общие технические требования к техническим средствам управления исполнительными устройствами систем противопожарной защиты, к которым относятся вентиляторы СПДВ, содержатся в ГОСТ Р 53325– 2012 “Техника пожарная. Технические средства пожарной автоматики. Общие технические требования и методы испытаний”. ШУВ СПДВ, в соответствии с п. 7.1.6 и п. 7.2.6, являются компонентом пожарного прибора управления (ППУ), состоящего из нескольких модулей.
Несмотря на то что существенно обновленная редакция стандарта ГОСТ Р 53325–2012 действует уже четыре года, многие специалисты, занимающиеся проектированием СПДВ и систем управления ими, еще недостаточно информированы об изменившихся требованиях, порой неправильно толкуют требования стандарта, да и сам стандарт не лишен недостатков.
Данная статья направлена на устранение препятствий, мешающих грамотному использованию стандарта.
Недостатки стандарта
В п. 7.1.4 ГОСТ Р 53325–2012 перечисляются объекты управления приборов пожарных управления, и среди них установки “дымогазоудаления”. Но если под этим определением подразумевать СПДВ, то оно является слишком узким, потому что большая часть вентиляторов этих систем обеспечивает во время пожара подачу наружного воздуха в здания и сооружения.
В результате ШУ вентиляторами СПДВ, подающими наружный воздух, оказываются формально выведенными из-под требований стандарта. Тем самым создается возможность использования ШУВ, не сертифицированных на соответствие требованиям Федерального закона № 123-ФЗ “Технический регламент о требованиях пожарной безопасности”. Провокативность стандарта усиливается тем, что вентиляторы, подающие при пожаре наружный воздух, действительно не подлежат проверке соответствия требованиям № 123-ФЗ. Но данное обстоятельство не означает, что такие вентиляторы влияют на пожарную безопасность в меньшей степени, чем вентиляторы, удаляющие дым. При обеспечении пожарной безопасности контроль целостности связи между ШУ и вентилятором, состояния вводов электропитания одинаково важен для обоих видов вентиляторов.
П. 7.2.14 ГОСТ Р 53325–2012 требует, чтобы прибор пожарной автоматики не выполнял “функций, не связанных с противопожарной защитой, за исключением функций, связанных с охранной сигнализацией”. Применительно к СПДВ данное требование является вредным. При эксплуатации, как правило, не выполняется даже выборочная проверка СПДВ (не чаще одного раза в два года)
В такой ситуации для обеспечения надежности СПДВ крайне важно стремиться использовать вентилятор СПДВ и в обычных условиях, в режиме общеобменной вентиляции. Переключение вентилятора с обычного режима на аварийный может быть осуществлено только в рамках одного шкафа
Поэтому допускаемое для охранной сигнализации исключение по п. 7.2.14 должно распространиться и на СПДВ2.
П. 7.6.1.14 предусматривает тестирования единичных световых индикаторов. Это требование представляется анахронизмом, сохранившимся с тех времен, когда в качестве единичных индикаторов применялись лампочки накаливания с малым сроком службы. Сейчас в качестве единичных индикаторов используются гораздо более долговечные светодиоды. Но требование их тестирования приходится выполнять. Следует надеяться, что авторы ГОСТ Р 53325–2012 проанализируют интенсивность отказов современных единичных индикаторов и на основании полученных результатов смягчат требования в этой части.
И еще одно замечание редакционного характера. Многокомпонентное исполнение прибора характеризуется в ГОСТ Р 53325–2012 как “блочно-модульное”. “Блок”, “модуль” – это практически синонимы, означающие часть чего-либо, в частности прибора. Чтобы уйти от тавтологии, желательно в данном случае прибор назвать “модульным”.







































