Кодирование пульта от ворот Came
Программирование изделия от ворот фирмы Came предполагает следующую последовательность манипуляций:
- Нажмите клавишу PROG.
- Индикатор должен начать мигать.
- Кликните по нужно клавише на брелоке.
- Появится ровный свет, который указывает на успешное программирование блока управления.
- Уберите пальцы от кнопок. Сигнал записан.
Если необходимо записать еще один прибор, сделать это можно. Но предыдущий сотрется по умолчанию. Поэтому учимся копировать сигнал:
- Кликните и удерживайте клавиши на новом приборе, которые следует закодировать.
- Когда индикатор начнет мигать, отпустите кнопки и нажмите ту, которую хотите запрограммировать.
- Индикатор будет излучать ровный свет.
- Через 10 секунд поднесите уже запрограммированное изделие внизу и позади программируемого сейчас. Нажмите рабочую клавишу.
- Светодиод мигнет 3 раза и потухнет.
Эта операция настраивает систему Came на функционал с любым числом брелоков и одинаковым сигналом.
Правило 1. Все решает притолока.
Какая у вас притолока? Так начинается общение с человеком, решившим заказать секционные ворота. Дело в том, что для размещения конструкции ворот требуется место справа, слева, и больше всего, над проемом. И да, это место над проемом ворот и есть притолока.
Та самая пресловутая притолока.
Какая она должна быть, зависит от следующих параметров
У вас проем до 8м2
Для небольших бытовых гаражных ворот площадью до 8м2 устанавливаются пружины растяжения. Высота притолоки должна быть не меньше 100мм (для ручного подъема) и 125мм для ворот с приводом. Это в теории. А на практике, что бы не вылавливать миллиметры, делайте 150мм.

Пример ворот с пружинами растяжения. Видно как мало места ворота занимают над проемом.
У вас проем больше 8м2

Пример ворот с торсионными пружинами. Места над проемом требуется значительно больше.
Вы хотите встроить калитку
Для всех ворот с калиткой, независимо от размера, нужна притолока не меньше 210мм, (стандартный монтаж).
Ворота с калиткой всегда идут с торсионными пружинами.
Что делать, если у вас высокая (больше метра) притолока?
Если у вас притолока 500мм и больше, вам сказочно повезло, и вам доступен так называемый высокий монтаж, когда ворота сначала поднимаются максимально к потолку, а уже затем уезжают параллельно потолку. См. рисунок, так понятнее.

Высокий монтаж. Заводской чертеж.
Преимущество: ворота не висят над головой, не нужны длинные подвесы.
Недостатки: высокий подъем доступен не во всех сериях, и за него нужно доплачивать 8% от стоимости ворот.
Что делать, если у вас низкая (меньше 210мм) притолока?
А если у вас притолока меньше 210мм, а нужны ворота больше 8м2, или нужна калитка? Вам поможет низкий монтаж!
Это когда вал с пружинами располагается сзади, в глубине гаража (см. рисунок). В этом случае минимальный размер притолоки будет 100-130мм, в зависимости от типа управления.
Недостаток: доплата 5%.

Низкий монтаж. Заводской чертеж.
Замеры и размеры
Секционные ворота называются еще подъемно-секционными. Такое название обусловлено строением и принципом действия. Полотно ворот состоит из отдельных секций, подвижно соединенных между собой. Отсюда в названии слово секционные
. При открывании секции движутся вверх по направляющим, плавно переходя на потолок. В открытом состоянии они удерживаются на потолке. А это — причина, по которой добавляют слово подъемные
— они поднимаются вверх.
Общее устройство секционных ворот с торсионными пружинами
Секционные ворота состоят из двух частей — полотна и направляющих, по которым полотно движется при открывании/закрывании. Чтобы установка секционных ворот своими руками прошла без проблем, надо тщательно провести замеры проема. В этой части ничего особо сложного нет. Нужна только рулетка, отвес, если есть — лазерный уровень.
С терминологией все понятно, конструкция в общих чертах ясна, теперь более подробно о замерах и подготовке проема, без которых установка секционных ворот обойтись просто не может.
Что и зачем измерять
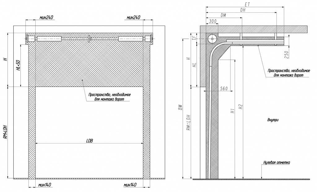
Чтобы заказать подъемно-секционные ворота, надо измерить следующие расстояния (показаны на рисунке):
Высота (H) и ширина (B) проема. Тут, вроде, все понятно, измерения простые. Но, для нормальной работы ворот, плоскости проема должны быть параллельны. Боковые стенки должны быть строго вертикальными, пол и перемычка — строго горизонтальными, без отклонений и провисаний. В вертикальности и горизонтальности можно убедиться при помощи уровня, отвеса. Также можно проконтролировать параметры проема, проведя изменения в нескольких точках. Если данные совпадают до миллиметра, все хорошо. Если нет, придется проем готовить — выравнивать и только после этого измерять и заказывать секционные ворота.
Какие параметры нужны и важны
При стандартном монтаже установка секционных ворот не затрагивает проем
Еще раз обращаем ваше внимание: на последний параметр стоит обратить внимание — глубина помещения, в который устанавливаются секционные ворота, не может быть меньше этой величины
При установке привода
Если же планируется автоматическое открывание и привод обычный, потребуется место еще и для него (на рисунке ниже оно обозначено буквой W).
Пространство внутри помещения должно быть достаточно для монтажа системы направляющих и привода, если используется автоматизированная модификация
Чтобы вы могла ориентироваться, для установки привода на потолке, минимальная глубина помещения должна быть от 3290 мм до 4400 мм (для разных систем подъема). Для менее глубоких помещения есть другой выход — установка осевого привода. Он дороже, но мощнее и место для установки требует только сбоку от проема.
Это все необходимые замеры. Как видите, все несложно
Но при этом очень важно, чтобы проем ворот был ровным, без значительных отклонений. Также важно состояние пола и потолка (в районе установки ворот). Для потолка важно выровнять ту часть, на которой будут монтироваться потолочные направляющие
Пол должен тоже быть ровным чтобы раму не перекосило. Если есть неровности, придется проем ворот готовить, только потом проводить повторные измерения и заказывать ворота
Для потолка важно выровнять ту часть, на которой будут монтироваться потолочные направляющие. Пол должен тоже быть ровным чтобы раму не перекосило
Если есть неровности, придется проем ворот готовить, только потом проводить повторные измерения и заказывать ворота.
Работы по регулировке
Чтобы ворота правильно функционировали, придется заранее отрегулировать натяжение тросов. Регулировочные работы проводятся в такой последовательности:
- Фиксация кронштейнов, установленных в нижней части ворот.
- Закрепление шпонки на полотне.
- Ставим ручку вала и поворачиваем ее, пока тросы не перестанут провисать. Для обеспечения оптимального уровня натяжения достаточно провернуть вал 2-3 раза.
После выполнения перечисленных действий тросы хорошо натянутся, и вороты будут правильно работать. Работы по регулировке тросов необходимо периодически повторять, так как со временем их натяжение может ослабнуть.
Установка торсионного механизма и направляющих
На начальном этапе монтажных работ должны установиться направляющие с торсионным механизмом.
Монтаж вертикальных направляющих
Крепление начинается с монтажа и последующей подрезки вставок для уплотнения конструкции. Специалисты советуют пользоваться вставками, которые продавались вместе с воротами, так как их не придется подрезать.

Когда уплотнительные материалы будут установлены, занимаются прикреплением нащельника с опорными стойками. При установке направляющих следят за тем, как расположен профиль. Его перекос по вертикали не должен превышать 1-2 миллиметра.
Монтаж горизонтальных направляющих
При выполнении монтажа придерживаются такой последовательности действий:
Прикрепление направляющих горизонтального типа к стойкам опор.
Соединение профилей к поверхности потолка при помощи подвеса.
Передний профиль удаляют от проема на 850 миллиметров, а задний — на 400 миллиметров.
Элементы, выступающие за пределы конструкции, осторожно подрезаются болгаркой.

Монтаж торсионного механизма
Монтажные работы должны выполняться с соблюдением инструкции, состоящей из нескольких этапов:
- Монтаж механизма в опорные кронштейны.
- Прикрепление к валу подшипников, состоящих из двух пружин.
- Просверливание в барабане отверстия, в которое будет пропускаться трос.
- Установка барабана на вал и фиксация троса при помощи крепежных болтов.
- Регулировка интенсивности натяжения установленного троса.
Монтаж конструкции
Монтаж ворот достаточно прост благодаря очень подробным инструкциям, которые можно найти на просторах интернета. Также можно найти чертежи и схемы гаражных порталов, а также рекомендации по регулировке секционных ворот.
Разнообразие выбора фирм производителей секционных подъемных гаражных ворот достаточно велико, но самыми популярными порталами являются одновременно самые дорогие.
Это связано с тем, что у более дорогих конструкций толщина полотна 45 миллиметров, нержавеющие кронштейны и петли, накладные ручки и засовы, а также имеется защита на случай разрыва пружин. Также герметичность закрытия створки на высшем уровне.
Между перемычкой и потолком должно быть определенное расстояние. Если подъем стандартного размера, то более 210 миллиметров, а при низком подъеме от 100 до 145 миллиметров (в зависимости от вида управления).
Принцип действия пульта управления
Особенности
Все большим спросом пользуется продукция, представленная компанией Doorhan. Эта фирма занимается производством и выпуском большого ассортимента ворот. Примечательным является то, что панели для таких конструкций производятся непосредственно в России, а не везутся из-за рубежа.
Ворота устанавливаются многими автовладельцами в их гаражи. Автоматическая регулировка, а также настройка и программирование брелока позволяет, не выходя из автомобиля, свободно проникнуть в место его хранения.
Отличительной особенностью продукции данной компании является надежность и долгий период эксплуатации. Степень ее защиты от проникновения посторонних в гараж очень высокая. Цена приобретения – вполне доступная.
Обладая навыками монтажных и сварочных работ, можно выполнить установку ворот самостоятельно, не прибегая к помощи специалистов. Необходимо пошагово следовать пунктам инструкции (она обязательно имеется в комплекте приобретаемой продукции), настроиться на скрупулезную подготовительную работу.
Фирма Doorhan производит и реализует практически все типы гаражных ворот:
- секционные;
- рулонные (роллетные);
- подъемно-поворотные;
- механические распашные и сдвижные (откатные).
Секционные ворота для гаража очень практичны. Теплоизоляция их достаточно велика – не ниже, чем у кирпичной стены толщиной 50 см, они прочные и долговечные.
Данная продукция выпускается в различных исполнениях. Компания Doorhan предусматривает наличие в гаражных воротах встроенной калитки.
Секционные ворота делают из сэндвич-панелей. Толщина полотна состоит из нескольких слоев. Внутренний слой заполняется пеной, что позволяет удерживать тепло. Установка таких конструкций возможна в гаражи с маленькими боковыми простенками.
Рулонные (роллетные) ворота представляют собой набор алюминиевых профилей, которые посредством автоматики сворачиваются в защитный короб. Располагается он на самом верху. Вследствие того, что ворота ставятся вертикально, их установка возможна на гаражи, где прилегающая территория (место въезда) незначительна или рядом находится тротуар.
Свое название подъемно-поворотные ворота получили из-за того, что их полотно (щит с системой роликов и замков) перемещается в пространстве из вертикального положения в горизонтальное, образуя при этом угол 90 градусов. Электромеханический привод контролирует процесс движения.
Откатные ворота изготовлены из сэндвич-панелей с гладкой или структурной поверхностью. Несущие балки сдвижных ворот делают из горячекатаной стали. Все стальные элементы покрыты толстым слоем цинка. Это обеспечивает защиту от коррозии.
Самыми обычными воротами являются распашные. Открываются они наружу или внутрь. Имеют две створки, которые крепятся на петлях с подшипниками по сторонам проема. Чтобы ворота открывались наружу, необходимо иметь территорию перед домом 4-5 метров.
Компания Doorhan разработала и внедрила в производство скоростные рулонные ворота. Удобным моментом при интенсивном их использовании является скорость рабочего процесса. Тепло внутри помещения сохраняется благодаря способности ворот быстро открываться и закрываться. Тепловые потери при этом минимальны. Изготавливают их из прозрачного полиэстера. Это дает возможность видеть территорию снаружи.
Компания Came
Программирование пульта Came происходит по подобной схеме. Сначала нужно нажать и держать кнопку Prog на приёмнике. Как только начнёт мигать светодиод, второй рукой нужно нажать соответствующий выступ на брелоке. Если диод загорается ровным светом, то обе кнопки нужно отпустить. Пульт будет записан в привод.
Записать второй брелок по этой же инструкции не получится, так как таким образом можно только перекодировать приёмник. То есть, из памяти сотрётся первый прибор, а новый запишется на его место. Вместо этого, необходимо провести процедуру по копированию. На новом устройстве нужно нажать и задержать обе кнопки, начнёт мигать светодиод. Затем их отпускают и нажимают ту, которая позволяет запрограммировать приёмник, лампочка должна гореть ровно.
Через десять секунд к брелоку подносят первый пульт, который уже был подключён к приводу. Его располагают сзади подключаемого прибора, нажимают на нём рабочую кнопку. Диод должен мигнуть три раза и потухнуть. Так проходит программирование брелока Came.
Условия, которые должны выполняться перед установкой
Проем гаража обязательно должен быть укреплен металлическим каркасом. Это может быть швеллер или каркас, сваренный из уголка и металлических пластин.
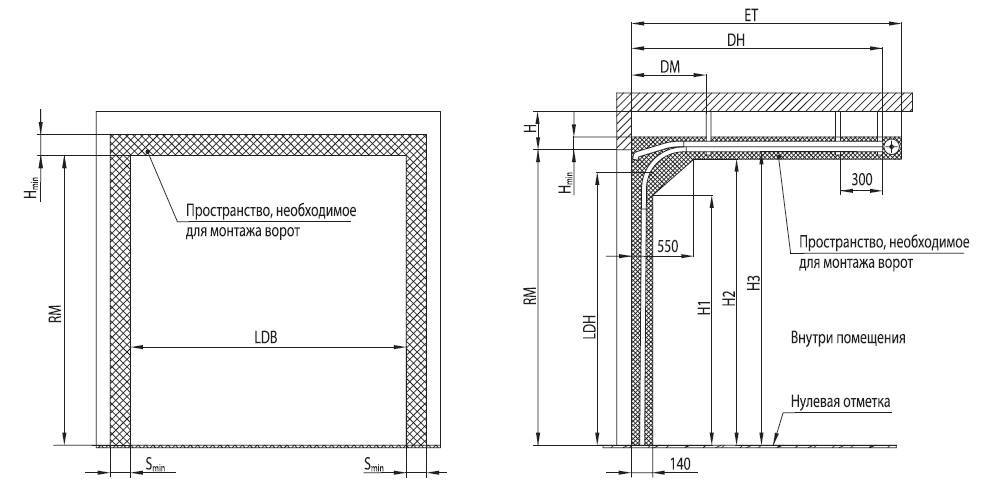
Расстояние от боковой стороны проема до стены должно составлять не менее 250 мм, со второй стороны должно быть точно такое же. От верхнего края проема до потолка расстояние должно составлять не менее 350 мм.
Материал для установки секционных ворот
Рекомендуем не пытаться самостоятельно изготавливать механизмы и полотно для гаражных ворот. Это займет много времени и маловероятно, что у вас получится сделать качественно и надежно. Причиной этому может быть отсутствия современных материалов и фирменных комплектующих.
Лучшим вариантом будет заказать стандартный комплект ворот по размеру проема и собрать их самому по имеющейся инструкции.
Ламели представляют собой сэндвич-панель, которая состоит из оцинкованной стали, окрашенной с внешней стороны полимерной декоративной краской. Между панелями проложен слой утеплителя.
Для гаражей неотапливаемого типа можно выбирать ламели толщиной 20 мм, для отапливаемого гаража рекомендуется брать ламели толщиной от 35 мм.

Разнообразные виды панелей дают возможность выбрать под свои запросы
С готовыми деталями, подогнанными под необходимые размеры проема, установка ворот не займет много времени. Желательно во время монтажа и настройке механизмов иметь помощника.
Необходимые инструменты для работы:
- Для разметки понадобится уровень и рулетка.
- Пассатижи и отвертки для монтажа.
- Шуруповерт и дрель для крепления направляющих к стене проема и потолку гаража.
- Болгарка на случай обрезки материала.
Требования к проему и его подготовка
Установка секционных ворот требует предварительной подготовки проема. Проем во-первых, должен иметь достаточную несущую способность, во-вторых, по сторонам и вверху должно быть достаточно места для установки направляющих, и в третьих, он должен быть ровным. Давайте разбираться по порядку.
Чтобы было понятнее, почему установка секционных ворот возможна только на ровные стены
Несущая способность и способы ее корректировки
Если стены, к которым будут крепится секционные ворота, сложены из полнотелого кирпича, бетона, шлакоблока, даже ракушняка, крепление направляющих возможно. Для этих материалов обычно используют анкера или дюбеля. Хуже, если стены сложены из пустотелого щелевого кирпича, пеноблока. В них тяжелую конструкцию без доработки не поставишь. Придется делать усиление проема. Есть два способа:
- Сделать усиление проема из металлических уголков и крепить систему к ним. Все будет держаться, но затраты высоки.
- Оштукатурить стены и попытаться закрепиться в штукатурный шов. Если что-то пойдет не так, можно еще использовать химические анкера. Этот вариант дешевле, но не самый надежный, так что лучше его не использовать.
К усилению несущей способности стены лучше подойти серьезно и сделать-таки каркас из уголков. Да, это недешево, но ворота ставятся не на один день, и не на один год, так что затраты оправданы.
Способы усиления проема если стены сделаны из щелястого кирпича или пенобетона
Если гараж планируется отапливать, при усилении при помощи уголков, не забудьте под металл положить теплоизоляцию. В данном случае лучше всего подойдет картон из стекловолокна. При малой толщине он имеет хорошо предотвращает утечку тепла.
Если места для монтажа конструкции недостаточно
Бывает и так, что вверху или по бокам не хватает места для установки конструкции. Если слишком мала притолока, есть штатное решение — фальшпанель. Она сделана из того же материала, что и полотно ворот, крепится в проеме к несущей балке. Тем самым уменьшается высота ворот, но появляется возможность установить более удобную в монтаже систему стандартного подъема.
Вот что такое фальшпанель. Она может крепиться по-разному
Бывает и так, что не хватает расстояния не только вверху, но и по бокам. Обычно этой болезнью страдают металлические гаражи.
В металлических гаражах обычно нет ни расстояний сбоку, ни сверху. Надо сварить такой каркас и к нему прикрепить ворота,зазоры заделать и утеплить
Самый удобный метод коррекции размеров проема ворот в том случае — приварить по периметру профилированную трубу требуемого сечения. Сечение выбирается так, чтобы было достаточно места и вверху, и по бокам. Еще вариант — сделать как на фото выше — сделать ворота не на всю ширину гаража.
Выравнивание проема и потолка
Кроме несущей способности и параметрам проема, необходимо проверить, чтобы его поверхность была ровной и гладкой. Также должны быть выровнены стены вокруг проема и две полосы на потолке. К ним будет крепиться система направляющих, все они должны быть ровными, и лежать в одной плоскости.
Требования к проему для установки секционных ворот
Минимальная ширина полосы, на которой не должно быть отклонений — 210 мм. Это при монтаже стандартной комплектации и стандартного подъема. Для других систем требуется чуть больше. Так что можно вывести сразу около 300 мм. Точно не ошибетесь.
Для выравнивания стен из бетона, кирпича, строительных блоков используют штукатурку по маякам. Поверхность проверяют во всех плоскостях. Установка секционных ворот начинается после того, как штукатурный раствор высохнет.
Разновидности конструкции
Современные секционные ворота подойдут для помещений всех типов.

Варианты ворот
Конструкции вертикального подъема
Предназначаются для гаражей с большой высотой подъема. Продаются исключительно в строительных гипермаркетах и отличаются тем, что занимают минимальное пространство при установке.
Конструкции высокого подъема
Такие ворота стоят дороже и используются там, где небольшая высота не позволяет выполнить вертикальное поднятие полотна. Высокая цена объясняется применением подвесных кронштейнов, специальных направляющих и большого количества расходных материалов.
Конструкции стандартного подъема
Используются в помещениях, которые полностью готовы к установке, с минимальной высотой притолоки минимум 18 см. Все элементы выполняются из нержавеющей стали. Самый простой и удобный вариант, оттого наиболее популярный.
Конструкции низкого подъема
Низкоподъемные ворота целесообразны в условиях ограниченной высоты проема (притолоки). К потолку крепятся контрольные элементы и торсионные пружины, и если он низкий, то весь аппарат фиксируется на тыльной части направляющих. Если говорить более конкретно, то такой аппарат состоит из:
- торсионного вала;
- наматывающих шкивов;
- балансировочных пружин.
После выбора подходящей конструкции можно приступать к подготовительным работам.
Подготовка гаража и проёма к установке конструкции
Прежде чем приступать к установке каркаса следует обеспечить ровность поверхности пола в районе проёма. Это необходимо, потому что к полу на линии ворот будет плотно прилегать нижняя секция полотна, окантованная резиновым уплотнителем. Кроме того, эта поверхность обязательно должна быть горизонтальной.

В проёме вертикальные и горизонтальные положения должны строго соблюдаться, к тому же все углы проёма должны находиться в одной плоскости. Это гарантирует плавность и бесшумность движения воротного полотна. При малейшем перекосе будет происходить закручивание секционного полотна и нарушение слаженности действия механизма.
Сборка секционных элементов
Перед самостоятельной установкой секционных панелей надо их собрать. Несмотря на то, что сборка очень простая, все равно лучше ознакомиться с рекомендациями по собиранию элементов панели.
Все секционные элементы пронумерованы, и поэтому сборку начинают с нижнего компонента, который является первым. Для крепления ламелей между собой используют специальные петли, установленные в просверленные отверстия. После установки промежуточных крепежных петлей прикручиваются ролики и затягиваются крепежные винты. Затем монтируются держатели с нащельником и угловыми кронштейнами.
Расчет размеров
Чтобы правильно установить ворота, придется заранее рассчитать все необходимые размеры. При этом измеряются следующие параметры:
Высота с шириной. В этом случае определяют габариты воротной конструкции
Также при проведении замеров обращают внимание на то, чтобы плоскости располагались параллельно друг к другу. Стенки конструкции должны располагаться в вертикальном положении, а перемычка с нижней гранью — в горизонтальном
Для проверки правильности положения элементов пользуются отвесом или строительным уровнем.
Размер перемычки. При определении этого параметра занимаются измерением расстояния от края проема до перекрытия потолка. Оптимальный размер составляет 350-550 миллиметров. В такие проемы удастся установить наиболее надежные и качественные модели ворот со специальной подъемной системой.
Степень вхождения конструкции внутрь помещения. Некоторые не обращают внимания на этот параметр и не определяют его размеры. При расчете величины учитываются особенности системы подъема ворот, а также габариты проема.
Также определенные расчеты проводятся перед установкой привода конструкции. Прежде чем поставить его, определяют глубину помещения, которая должна находиться в диапазоне 3-4 метров. Если здание слишком маленькое, придется устанавливать более компактный привод осевого типа.

Установка торсионного механизма и взведение пружины
Используя нивелир, следует убедиться в том, что торсионный механизм вмонтирован строго параллельно полу. Он располагается в опорных кронштейнах. Далее на валу нужно разместить пружины. На поверхности барабана с одной стороны необходимо просверлить отверстие, куда будет уходить трос. Есть барабаны уже с готовыми отверстиями, поэтому данный этап можно пропустить.
Следующий шаг — установка барабанов на вал. Барабаны обладают специальной маркировкой — правый и левый, для соответствующего размещения.
Собранный узел необходимо закрепить на поверхности, используя кронштейны и саморезы.
Установка должна быть строго горизонтальной, соответствие этому требованию проверяют уровнем
Посредством болтов осуществляется крепление фланца окончания пружины.
После этого следует установить нижнюю секцию ворот строго по уровню.
Затем необходимо протянуть тросы через барабаны и зафиксировать их обжимной втулкой или винтом. Нужно внимательно следить за тем, чтобы оба троса имели одинаковое натяжение.
Взведение пружин проводят таким способом:
- В спецотверстия на конце пружин нужно установить две воротки.
- Направленность закрутки пружин должна совпадать с направленностью их завитков, то есть для правой пружины закручивание осуществляется против движения часовой стрелки, для левой — по часовой стрелке.
- Проводят закрутку витков пружины до уровня, указанного на пружине (как правило, такой уровень обозначен красной полосой).
- После того как пружины взведены, их фиксируют путем помещения опор под монтажные воротки. Далее затягивают болты крепления окончания пружин и вытаскивают воротки.
Узнайте, как сделать теплицу из пластиковых труб, по Митлайдеру, с открывающейся крышей, из поликарбоната, из дерева, термопривод для проветривания, фундамент под теплицу, как выбрать пленку, поликарбонат или сетку для теплицы, как сделать отопление в теплице.
Монтаж ворот
Первым шагом в установке ворот является их проектирование. Для этого необходимо замерить проем и самостоятельно составить эскиз или подобрать готовый чертеж .
Чертеж подъемно-поворотных ворот
После этого приобретаются материалы, инструменты и начинается непосредственная работа по изготовлению ворот:
- Собирается коробка из брусков, которые скрепляются между собой угольниками или металлическими пластинами.
- Коробка фиксируется в проеме и крепится штырями, низ примерно на 2 см заглубляется в стяжку пола.
- Собирается полотно ворот: рама обшивается щитом и закрывается листовым металлом.
- Из уголка изготавливается опора механизма, в одной полке просверливается два отверстия диаметром 1 см для фиксации к продольным стойкам, в другой – еще три под крепления пружинного кронштейна. Для крепления швеллерного кронштейна, используемого как опора для пружины, в одной из полок просверливается 3 отверстия.
- Кронштейн и пружина соединяются с помощью регулировочной пластины, изготовленной из полоски железа. Крайние витки пружины используются в качестве зацепов, а к низу присоединяется регулятор натяжения из прутка. С одной из сторон получается кольцо, с другой – нарезается резьба.
- Шарнирный узел снизу изготавливается из уголка с отверстием (0,85 см) и приваривается к раме между нижним ребром и серединой отверстия для рычага механизма подъема на расстоянии 12 см.
- Пластина с отверстием для регулятора натяжения приваривается к торцу рычага.
- Изготавливаются рельсы для движения щита: составляются 2 уголка, и края их полочек свариваются таким образом, чтобы внутреннее пространство между их вершинами равнялось 5 см.
- Один конец такой рельсы приваривается к пластине с отверстиями. Между осевой линией направляющего и нижним ребром поперечины должен остаться промежуток 8 см. Куски швеллера привариваются к другим краям рельс на расстоянии 14-15 см. Швеллер крепится к потолочному бруску с помощью болта.
После окончания сборки конструкция окрашивается для придания ей эстетичного вида, труднодоступные места рекомендуется окрасить перед сборкой.
Схема установки ворот
Рекомендации профессионалов, которые надо учитывать при изготовлении подъемно-поворотных гаражных ворот:
- для сборки деталей рекомендуется использовать сварку, что снизит необходимость в крепеже и сверлении отверстий;
- высота проема ворот не должна быть меньше, чем 2,2 метра, а расстояние от верхней части проема до потолка – 0,35-0,5 метра;
- если подъем низкий, барабан следует располагать сзади;
- в нижнем профиле полотна должен быть паз, в который устанавливается уплотнитель;
- вес полотна – очень важный параметр, его оптимальное значение составляет 100 кг;
- в качестве привода можно установить реверсивную самоблокирующуюся лебедку (220 В, 350 Вт, тяговое усилие – 125 кг);
- для обустройства автоматики можно воспользоваться автомобильной сигнализацией.
Для удобства эксплуатации полотно можно изготовить со вставками из полупрозрачных материалов, что увеличит количество света, а также оснастить стопорными устройствами и системами безопасности, защищающими от защемления или предотвращающими взлом.
Самодельные подъемно-поворотные ворота – это самая экономная возможность закрыть проем гаража, не ограничивая функциональность, удобство пользования и оригинальность их дизайна.
На видео — подробный рассказ о самостоятельном изготовлении подъемно-поворотных гаражных ворот:
- Новые и старые СНиПы по дачному.
- Как сделать быстрорастущую живую.
- Как сделать плетеный забор на даче.
- Расстояние от забора до забора.
- Установка шлагбаума во дворе многоквартирного.
- Какие существуют виды деревянных.
- Как сделать форму для бетонного.
- Виды и порядок монтажа сварных.
- Как сделать оригинальный забор.
- Как установить декоративный забор.
- Что делать если в лунке вода? 24.10.2014 — 07:29 по Сергей
- Это и так понятно,а как делать если. 24.10.2014 — 07:29 по Сергей
- Мне надо шумопоглащающий забо. 31.08.2014 — 10:17 по Руслан
- Я так и не пойму ,при вертикальном. 04.11.2014 — 21:57 по Галя
- А про топинамбур забыли. 17.10.2014 — 02:38 по 1k
Подготовка и монтаж
Перед осуществлением монтажных работ следует понять, что у каждого гаражного проема есть свои особенности. Именно поэтому у вас не получится делать все строго по инструкции, ведь в любом случае будут те или иные непредвиденные нюансы. Однако задать определенный тип установки вполне возможно.
При самостоятельном осуществлении монтажных работ и настройке системы своими руками следует всегда помнить о соблюдении определенных правил и технике безопасности. От этого будут зависеть долговечность и работоспособность ворот.
Перед монтажом конструкции необходимо подготовить проем. Если вы хотите избежать перекосов рамы, придайте ему идеальную прямоугольную форму. Убедитесь в том, что проем и рама находятся в одной плоскости.
Убедитесь в том, что на поверхности нет дефектов: трещин, неровностей. Такие недостатки пола могут оказать негативное влияние на результаты монтажных работ.
При осуществлении монтажных работ необходимо учитывать все рекомендации, указанные производителем в заводской инструкции. Так вы избежите возникновения проблем с конструкцией в будущем. После установки конструкции нужно будет проверить, плотно ли подогнан уплотнитель. В противном случае в гараже потом возникнут сквозняки. Если при закрытых воротах и выключенном свете не будет просветов – с уплотнителем все в порядке.
Проверьте, нет ли сбоев при работе автоматики. Ворота должны двигаться свободно и достаточно быстро.
Секционные ворота своими руками
Секционные ворота одинаково удобны в использовании как в частном доме, так и на производственной площадке. Однако, профессиональное установление стоит немалых денег, поэтому сделать прочные и качественные ворота своими руками – неплохая альтернатива.
Сам процесс изготовления ворот не является сложным, но требует некоторого времени и старательной работы. Размеры и формы ворот могут быть самыми разными, а для изготовления и установки необходимо несколько инструментов.
Основная задача – стабильность и прочность. Для этого используются различные материалы, например, профильная труба, сэндвич-панель или листовая сталь. Изготавливаются секции ворот, которые в дальнейшем монтируются между двумя направляющими колоннами. Для управления воротами используют механизмы, включая привод, роликовые каретки и т.д.
Секционные ворота своими руками – это отличная возможность сэкономить деньги на установке и получить качественное изделие;
Для изготовления ворот нужны определенные материалы и инструменты;
Важно учитывать размеры и вес будущих ворот;
Процесс монтажа включает установку колонн и направляющих, монтаж секций и установку механизмов управления;
В конце концов, своими руками можно получить надежную и достаточно простую в использовании конструкцию ворот.
Что потребуется для изготовления
Для изготовления рамы створки больше всего подойдут профильные трубы прямоугольного сечения размерами 40*20 и толщиной стенки 2 мм. Для поперечных и продольных лонжеронов также используем профильные трубы, но меньших размеров — а именно 20*20*2 мм, для уменьшения веса конструкции. Для зашивания лицевой и внутренней сторон створки лучше всего подойдёт профильный лист, так как он уже изначально с завода покрыт антикоррозийным составом. Также можно использовать листы оцинкованной жести.
Для направляющих идеально использовать швеллер шириной до 20 см. Размер полки швеллера зависит от ширины используемых роликов в вашем конкретном случае. Коробку, к которой крепится рычажно-пружинный механизм в дверном проёме гаража, можно выполнить из деревянного бруса 100*50 мм. Для этих целей также можно использовать металлический уголок с полкой 50 мм.
Опорно-откатные ролики и рычажно-пружинный покупаются отдельно в магазине, специализирующемся на откатных воротах.
Для теплоизоляции ворот, из соображений цена-качество, целесообразно использовать пенополистирол толщиной 40 мм и плотностью от 15 до 25 кг/м3.





































