10 крошечный современный шедевр, расположенный в дикой природе

Иногда иметь хороший крошечный дом – все о выборе правильного места. И с этой целью люди, которые сделали это, безусловно, преуспели. Как вы можете видеть, скальные образования действительно добавляют в колоду, обеспечивая аккуратное ощущение, которое сливает естественность с шиком и современностью. Расположенный прямо в лесу Чаппаква, штат Нью-Йорк, этот дом – 300 квадратных футов совершенства.
В соответствии с Загородная жизнь, Команда дизайнеров, создавшая этот дом, очень тщательно подбирала дерево и цвета, чтобы они идеально вписывались в окружающую его природу. Окна от пола до потолка позволяют дневному свету выходить за пределы домашнего пространства.
Проекты домов с террасой
Выбирая подходящий проект дома с террасой, следует учитывать множество различных факторов. К примеру, если семья большая и в ней имеются дети с большой разницей в возрасте, то лучше остановиться на террасе с двумя либо тремя уровнями, соединенных небольшими ступеньками между собой. Каждый из этих уровней можно отвести под различную зону, учитывающую интерес и потребности каждой возрастной группы.
Если естественного обдува не хватает можно установить дополнительно вентилятор
Терраса пристроенная к дому с великолепно спланированным дизайном
Для еще более комфортного времяпровождения на открытом воздухе, владельцы загородных домов обустраивают свои летние постройки подвесными качелями, которые идеально подходят, как для детей, так и для взрослых.
Роскошные подвесные качели изготовленные в классическом стиле
Воздушное подвесное кресло с оригинальным плетением хорошо подходит для любого типа террас
Хороший проект веранды или террасы должен учитывать множество мелочей, таких как:
- Не будут ли воздушные потоки образовывать сквозняки, создавая тем самым дискомфорт для окружающих;
- Поместиться ли вся мебель, которая планировалась приобретаться для данной постройки;
- Достаточно ли хорошо спланировано освещение и соответствует ли оно всем правилам пожарной безопасности;
- Соблюдены ли правила необходимого угла лестницы и расстояние между её ступенями для безопасного и удобного подъема и спуска.
Оригинальный оранжевый столик и удобный угловой диван как нельзя кстати подходит данному интерьеру
Оригинальное использование горшков с растениями на террасе
Фантазия человека не знает границ — данная терраса тому яркое подтверждение
Мини-дом у воды в Швеции
Старый маленький коттедж, отреставрированный супругами, служит домом для гостей. Площадь каркасного дома на берегу Балтийского моря всего 30 м². Чтобы расширить узкое помещение не только визуально, хозяева добавили складные стеклянные двери и террасу, выходящую прямо на берег.

Основную часть коттеджа, как и в большинстве подобных домов, занимает кухня-гостиная. Кухонный гарнитур находится у окна – это позволяет любоваться заливом во время готовки. Маленькую спальню от гостиной отделяет холл, а вторая спальня обустроена на антресоли.


Фасад коттеджа выкрашен в традиционный красный, а рамы — в контрастный белый. Отделка интерьера подчёркивает его близость к морю. Из прозрачных раздвижных дверей гостиной и с террасы, расположенной рядом с водой, открывается живописный вид на морской пляж и деревянный пирс. В постройке напротив дома обустроена баня и место для хранения рыбацкого снаряжения и лодок.



Дом от Майкла Лоуренса
Дом, находящийся в Северной Калифорнии, был спроектирован Майклом Лоуренсом для своей жены Дианы. В течение долгой совместной жизни супруги переезжали по меньшей мере раз 20, прежде чем решили, что хотят собственный домик в лесной местности.
К воплощению своей мечты Диана и Майкл подошли очень ответственно – они построили дом, и результат их очень обрадовал. Уже более 9 лет супруги живут в своем гнездышке вдали от цивилизации и не пользуются электричеством. Внутри очень уютно, есть все необходимое. Можно только догадываться, как приятно по вечерам сидеть на крылечке и наслаждаться тишиной.
Материалы для здания и террасы
Выбирая материалы нужно подумать о том, что терраса в отличие от комнат постоянно подвергается постоянным воздействиям: ультрафиолетовым лучам, увлажнению дождем, снегом и туманом. В городах к этому добавляется пыль, автомобильные и промышленные выбросы, которые становятся «наждачной бумагой» для материала отделки. Поэтому выбирайте качественные материалы. Регулярно обрабатывайте их от выше перечисленного воздействия, очищайте от загрязнений.
Побеспокойтесь о защите террасы от природного воздействия
Полы покрывают материалами, которые могут сопротивляться высокой влаге:
- Кафельной плиткой (выбирайте термостойкие модели, с шероховатой поверхностью).
- Деревянной доской обработанной препаратами (лаками, морилкой, пропиткой), которые препятствуют гниению. Выбирайте смолистые сорта деревьев.
Если открытая площадка не встроена, крышу покрывают материалом. Столбики используют из надежных материалов: металла, деревянных брусьев большого размера, кладки из кирпича, камня, бетона.
Столбики должны быть из надежных материалов
Декорирование такое же, как у общего фасада дома. Интересное сочетание дают соединение различных материалов строительства или отделки: дерево и натуральный камень, кирпичная кладка и декоративная штукатурка, сайдинг разного цвета + фундаментные панели.
Основной принцип
Терраса должна быть дополнением, поэтому радикальные отличия внесут диссонанс с оформлением всего участка. Строение потеряет привлекательность.
Используйте кирпичную кладку как декор
Позаботьтесь о декоративных элементах
Если столбы конструкции сделаны из металла, добавьте кованые элементы. Для деревянных конструкций подойдут резные элементы, домотканые грубые дорожки. Кирпичная кладка хорошо гармонирует с глиняной посудой.
Натуральный камень гармонирует с деревом
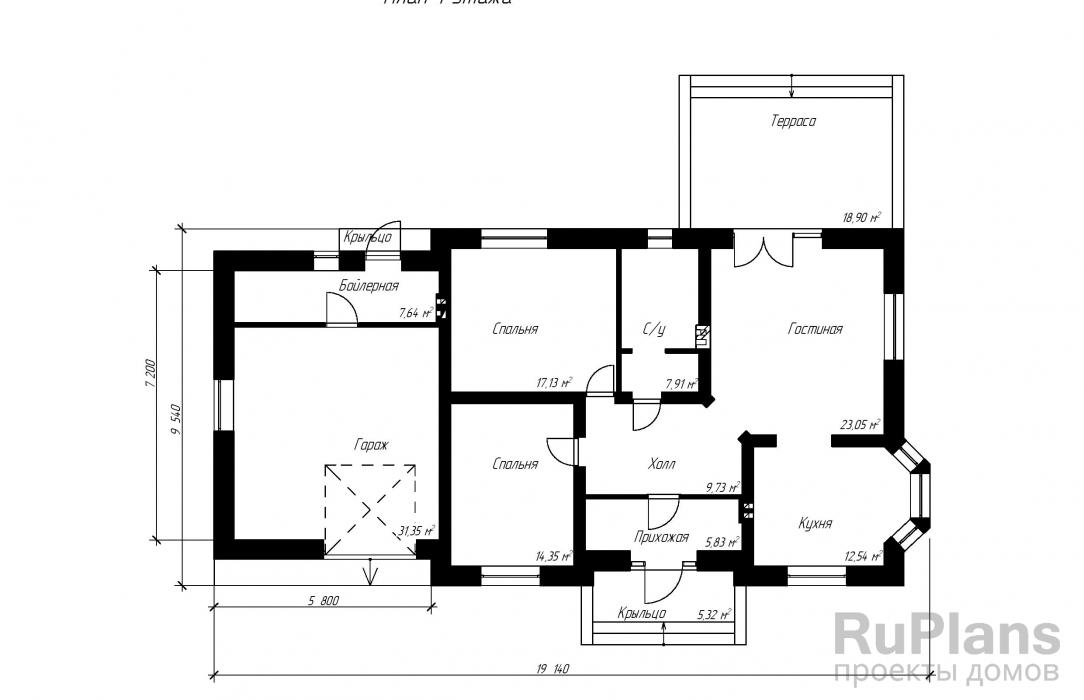
Первый этаж дома
Общий вид первого этажа — площадь 35,8 квадратных метров

План первого этажа включает 3 маленьких помещения: гостиная, санузел и кухня
Рассмотрим вариант уютного здания или проекта дачи эконом класса, предусматривающий следующие параметры — общая площадь первого этажа: 35,8 кв м, размер: 7,32 м х 4,88 м, высота потолков (до крыши) чуть меньше 5,7 м. Самой удачной планировкой в данном случае будет следующая:
Общая гостиная
Гостиная – естественно, это будет самая главная комната, где вся семья будет собираться за чаепитием. Для достижения максимального комфорта надо будет отвести под это помещение
Кухня
Учитывая то, что дача – это не частная городская квартира, где люди большую часть свободного времени проводят на кухне, это помещение можно будет укомплектовать необходимым минимумом – плита для приготовления пищи, кухонный стол и холодильник. Вполне для этого будет достаточно помещения, площадью 5,92 кв м, при размерах: 2,13 м х 2,78 м. Идеальная планировка современных дачных вариантов!
Проект одно- и двухэтажного дома: разница в экономии
Отдельным пунктом следует выделить вопрос стоимостного сравнения домов. По сути, здесь одно простое правило: чем выше этажность постройки, тем дешевле обойдется 1 кв. метр полезной жилой площади. И экономия тут начинается именно с крыши. Она меньше по площади, а значит расходы на кровельный материал и установку каркаса также сокращаются.






Если соорудить междуэтажное перекрытие из древесины, то можно на порядок сэкономить на черновой, чистовой стяжке и в утеплении самого пола. В данном случае напольная доска выступает и в качестве завершающего покрытия, и в качестве несущей части. А если использовать для перекрытия бетон, то разница в стоимости напольного покрытия в одно- и двухэтажном здании сводится на нет.








На заметку: дополнительно уменьшить расходы позволяет возведение дома с мансардой. Сэкономить можно на 35-40%, но если это будет типичный двухэтажный дом.









Что касается фундамента, то здесь надо учитывать, какой именно материал будет использоваться для постройки. Так, двухэтажные дома из кирпича потребуют закладки мощного, высококачественного, дорогого фундамента, который способен выдерживать большие нагрузки. В данном случае стоимость двухэтажных строений, по сравнению с аналогичной площадью одноэтажных, если не будет идентична, то вполне может оказаться на порядок выше последних.

Совет: строительство двухэтажной конструкции из бруса сократит затраты на фундамент.


Еще один аспект, который также надо учесть при возведении двухэтажного дома – цена на аренду строительных лесов.

На заметку: чем более правильная форма (прямоугольник или квадрат) будет дома и фасадов, тем дешевле и проще будут строительные работы, при этом такие постройки ни сколько не теряют в привлекательности.



Дом с баней в России
Несмотря на компактные размеры, этот коттедж, стоящий в густом сосновом лесу Ленинградской области, представляет собой многофункциональный комплекс. Дом, построенный на берегу искусственного водоёма, напоминает небольшой корабль — с круглыми окнами, деревянными сваями и имитацией бруса на фасаде.



Постройка из готовых сандвич-панелей была возведена всего за 2 месяца. Фасад дома выкрашен в серо-бирюзовые цвета, благодаря чему органично вписывается в окружающий ландшафт. Морская тематика поддерживается и в интерьере: полосатыми шторами, обивкой, голубым полом. Значительную часть первого этажа занимает баня, а на втором ярусе располагается спальня и мини-кухня.



Терраса дома является продолжением гостиной и в солнечную погоду служит столовой: владельцы выносят сюда обеденный стол и наслаждаются лесными видами.

Дом с баней в России
Несмотря на компактные размеры, этот коттедж, стоящий в густом сосновом лесу Ленинградской области, представляет собой многофункциональный комплекс. Дом, построенный на берегу искусственного водоёма, напоминает небольшой корабль — с круглыми окнами, деревянными сваями и имитацией бруса на фасаде.


Постройка из готовых сандвич-панелей была возведена всего за 2 месяца. Фасад дома выкрашен в серо-бирюзовые цвета, благодаря чему органично вписывается в окружающий ландшафт. Морская тематика поддерживается и в интерьере: полосатыми шторами, обивкой, голубым полом. Значительную часть первого этажа занимает баня, а на втором ярусе располагается спальня и мини-кухня.

Терраса дома является продолжением гостиной и в солнечную погоду служит столовой: владельцы выносят сюда обеденный стол и наслаждаются лесными видами.
23 Интерьер этого крошечного дома совсем не душит

Несмотря на то, что снаружи крошечного дома действительно круто смотреть, часто именно интерьер действительно сбивает ваши носки. Эти крошечные дома должны быть очень умными и изобретательными, когда дело доходит до таких вещей, как хранение и использование пространства.
Действительно радостно видеть, как эти крошечные дома справляются с этой задачей.!
Вы можете видеть, что много внимания и тщательного планирования было вложено в эту жилую зону, которая также является кухней. Здесь не было никаких затрат, и как HGTV Согласно отчетам, в номере есть гранитные столешницы, мини-плита и несколько искусно расположенных окон..
Функциональная мебель для интерьеров маленьких домов
Если комнаты катастрофически малы, рационально использовать пространство вам поможет правильная мебель. Существует широкий выбор систем хранения, а также предметов мебели, которые несут сразу несколько функций.
Многофункциональные кровати в дизайне коттеджей
В небольших домах, где одно помещение выполняет сразу несколько функций, незаменимы различные виды выдвижных кроватей. Разместив такую кровать, вы освободите место для другой мебели в комнате.
Нередко можно встретить кровати, выезжающие из подиума, на котором можно установить небольшой столик. Интересны также кровати, спрятанные в шкафах.
Для рационального использования пространства, используйте кровати, представляющие собой также место для хранения. Такие спальные места послужат оригинальным интерьерным решением для небольших комнат. В верхней части кровати располагается кровать, а нижняя используется как гардероб или тумба под телевизор.

Хранение вещей в небольшом доме
Проблема хранения вещей возникает в домах любых размеров. Но в маленьком жилище встает особенно остро. Производители мебели и аксессуаров для интерьера готовы предложить вам множество решений.
В небольшой спальне используйте все доступное пространство. Замените громоздкий шкаф для одежды, гардеробной системой. Скомбинировать ее вы сможете самостоятельно, отталкиваясь от своих потребностей. Скрыть платья от посторонних глаз поможет обычная штора. Она же послужит дополнительным декором.

Если места совсем нет, установите рейл для одежды. В зависимости от потребностей, он может быть двойным или даже тройным. Места он займет немного, зато вы сможете разместить все необходимое прямо в спальне.
Откажитесь от обилия тумб и комодов в пользу стеллажа. Размеры вы сможете выбрать сами. Такая мебель одновременно и украсит помещение, и поможет рационально организовать хранение вашей одежды, книг, документов и сувениров. Для удобства используйте специальные коробки для хранения вещей в стеллажах.

Дом из гаража в Великобритании
Владельцы участка на северном побережье Великобритании превратили старый пустующий гараж в комфортабельный коттедж. Бетонный дом площадью 46 м² выглядит необычно, но стильно и надёжно. Часть его фасада обшита деревянной дранкой и напоминает оперение птицы или чешую рыбы. Широкие подоконники установлены под наклоном и выступают дополнительным местом для отдыха.
На крытой террасе находится летняя кухня, сделанная из бетона: она позволяет готовить еду прямо во дворе дома. На участке стоят шезлонги и бетонный очаг. Интерьер коттеджа повторяет внешнюю отделку: для облицовки стен использован прочный микроцемент, в санузле находится бетонная ванна, в гостиной – камин. Чтобы добавить уюта, архитекторы добавили абажуры из лозы, натуральный текстиль и множество элементов из дерева.
6 Этот крошечный дом на самом деле расширяется, когда вы паркуете его

Одна из самых сложных задач, возникающих при создании большого крошечного дома, заключается в том, чтобы выяснить, как увеличить пространство. Это может показаться вам очевидным препятствием для значительного сокращения. Но когда вы смотрите на некоторые из лучших крошечных домов на рынке, они используют все виды изобретательных методов, чтобы максимально эффективно использовать небольшое количество квадратных метров их работы с.
Это потрясающая картина интерьера крошечного дома “Аврора”, который на самом деле расширяется при парковке. Как Новый Атлас сообщает, что крошечный дом расширяется примерно до 375 футов и может бежать от сетки с солнечными батареями.
11 Роскошная Крошечная Хижина

Глядя на этот крошечный дом, мы хотим сразу же переехать. Очевидно, этот домик – один из самых дорогих крошечных домов, которые мы когда-либо видели..
Он излучает современную и стильную атмосферу.
Это может выглядеть довольно дорого, но оно было построено на большом RV – это означает, что этот дом площадью 392 кв. Фута на самом деле является мобильным, так как он сидит на колесах и может быть вырван в любое время!
Как Загородная жизнь Как сообщается, в просторном и открытом интерьере есть камин и множество других дополнений. Этот дом также может быть сдан в аренду тем, кто хочет вкус крошечной домашней жизни!
Дача в Швеции
Этот каркасный коттедж в шведском поселке Салтаро занимает всего 33 м² и располагается в живописном месте: на берегу озера. Скромную площадь дома компенсирует просторная многоуровневая терраса, адаптированная к неровностям участка.

На террасе с широкими ступенями можно устроиться с комфортом, положив подушки прямо на обработанные доски. Коттедж представляет собой лаконичную одноэтажную постройку, напоминающую бытовку или дом из контейнеров. Тёмный графитовый цвет делает его современным и придаёт облику благородства.



Внутри установлена печь с очагом за остеклённой дверцей. Печь отделяет кухню-гостиную от спальни, санузла и входной зоны. Чтобы сэкономить площадь, кровати поставили в ниши. Мебель из ИКЕА подчёркивает минималистичность интерьера, придавая ему лёгкости.

Мини-дом у воды в Швеции
Старый маленький коттедж, отреставрированный супругами, служит домом для гостей. Площадь каркасного дома на берегу Балтийского моря всего 30 м². Чтобы расширить узкое помещение не только визуально, хозяева добавили складные стеклянные двери и террасу, выходящую прямо на берег.

Основную часть коттеджа, как и в большинстве подобных домов, занимает кухня-гостиная. Кухонный гарнитур находится у окна – это позволяет любоваться заливом во время готовки. Маленькую спальню от гостиной отделяет холл, а вторая спальня обустроена на антресоли.


Фасад коттеджа выкрашен в традиционный красный, а рамы — в контрастный белый. Отделка интерьера подчёркивает его близость к морю. Из прозрачных раздвижных дверей гостиной и с террасы, расположенной рядом с водой, открывается живописный вид на морской пляж и деревянный пирс. В постройке напротив дома обустроена баня и место для хранения рыбацкого снаряжения и лодок.



Терраса-палуба домика в США
Коттедж принадлежит семейной паре, уставшей от высоких арендных плат за съёмное жильё. Молодые люди обзавелись домом площадью 30 м², который позволил им обрести финансовую свободу и вкладывать деньги в хобби.

Коттедж был построен профессионалами, а внутреннюю отделку владельцы осуществили своими руками. Планировка дома представляет собой открытую студию. Кухня объединена с гостиной, а на верхнем закрытом ярусе расположена спальня.



Благодаря светлым стенам и большим окнам, компактный дом выглядит просторным и вместительным. Кухонный гарнитур, доставшийся от родственников, супруги отреставрировали сами — отшлифовали и покрасили. Терраса-палуба площадью 12 м² расширяет жилую часть и соединяет её с окружающим ландшафтом.

Несмотря на небольшую площадь домов, каждый из них вызывает желание поселиться в нём хотя бы ненадолго. Просторные террасы, украшающие постройки, помогают расширить пространство и сблизиться с природой.
Дом на воде
В Швеции был создан миниатюрный домик на воде. Туристы, выглядывая из окна, могут любоваться разнообразными видами рыб и, конечно же, водными просторами.
Мини-отель Utter Inn находится на озере Маларен – недалеко от берега. Сложно поверить в то, что такая постройка включает в себя кухню, спальню, а также террасу. На террасе туристы могут любоваться живописным видом, слушая любимую музыку в наушниках, а спустившись на глубину 3 м. насладиться сном.
Окна с комнаты выходят на озерную гладь, где рыбы живут своей жизнью, лишь изредка заглядывая в окна. Такой интересный отель – не единственный в своем роде, такие же находятся в Китае, Турции и ОАЭ.
Проекты одноэтажных домов с террасой: используемые материалы
Экологическое оформление террасы одноэтажного загородного дома
Материалы для оформления террасы: линолеум, дерево, камень
Одноэтажный дом с несколькими террасами. Оформление дома и пристроек выполнено из деревянного сайдинга
Бетонные полы и древесина в оформлении пристроенной к дому террасы
В настоящее время строительство домов осуществляется из разных материалов и их комбинаций. Например, можно возвести могущественный замок из натурального камня, построить прочную конструкцию из кирпича. Проект кирпичного дома с террасой порадует ваше воображение и позволит воплотить в реальность детские и взрослые мечты. Также у вас есть возможность создать огромные и практичные стены из бетона или отдать предпочтение классической древесине и материалам из нее. Первые три варианта хороши, но по сочетанию экологических свойств и доступности выигрывает, несомненно, натуральное дерево. Что может быть лучше, чем жить с семьей и растить своих детей в доме из натуральных элементов, обладающем достойными экологическими качествами.
Деревянный сайдинг в оформлении террасы контрастирует с глиняными горшками с геранью. Плетеная мебель, фарфоровые и металлические детали завершают дизайн одноэтажного дома с террасой
Просторная терраса с отделкой натуральным деревом и плетеной мебелью. Металлические фонари выполняют две функции: освещение и декор
Открытая отдельно стоящая терраса. Оформление – дерево
16 Интерьер этого крошечного дома намного просторнее, чем мы думали

В этом крошечном доме царит какая-то серьезная футуристическая атмосфера. Хотя внешний вид этого дома выглядит довольно футуристично, мы действительно погружаемся в его продвинутый характер, когда выходим на улицу. Просто посмотрите на все это открытое пространство!
Это выглядит почти как то, что вы увидите в Звездные войны фильм, и это идеальное место для создания дома или же бизнес. Это офисное помещение чистое и аккуратное, с видом на природный ландшафт, простое и понятное.
Как Новый Атлас сообщает, что это называется Wikkelhouse, и это займет всего один день, чтобы собрать. Это также всего 500 килограммов и стоит скромные 35 000 долларов.
Гараж
Проекты загородных домов с гаражом весьма востребованы. Такая планировка дает хозяину несколько преимуществ:
- Становясь частью дома, гараж не занимает отдельное место на участке, при этом экономится площадь.
- Включение гаража в план здания дает жильцам возможность переходить в дом, минуя улицу.

Необходимо учитывать, что над гаражным помещением не должен быть размещен жилой блок. В первую очередь из соображений пожарной безопасности. К тому же, это повлечет дополнительные расходы:
- устройство в гараже системы вентиляции;
- теплоизоляция, пароизоляция и звукоизоляция жилых помещений над гаражом;
- обеспечение системы пожаротушения в гараже.
Но эти правила в реальных проектах часто нарушаются.
Sol Duc Cabin
Этот маленький домик находится в США – недалеко от Сиэтла. Из окон вид открывается просто потрясающий – на живописный лес. Смотришь вдаль, слышишь звуки птиц и представляешь, что находишься в сказке…
Домик предназначен для уединенного времяпровождения – можно представить, как приятно здесь отдыхать, отдалившись от городской суеты. Внутри домика есть двухсветная общая зона и антресоль со спальными местами – вполне неплохо. На кухне можно приготовить ароматный кофе и закуски.
В 2015 году Sol Duc Cabin вошел в десятку самых лучших архитектурных проектов, а построен он был в 2014 году.
Интерьер гостиной для маленького коттеджа
В маленьких домах обычно не бывает отдельного помещения для приема гостей и семейных сборов. Если у вас в доме есть гостиная, считайте, что вам крупно повезло. Наверное, ваше жилище имеет не такие уж и маленькие размеры. Обычно, при планировании пространства, приходится совмещать гостиную и другие комнаты.
Совмещение гостиной с кухней — решение для небольших домов
Такой способ планировки популярен уже потому, что очень удобно совмещать обеденную зону с зоной отдыха.
Для экономии места, откажитесь от обеденного стола в пользу небольшого журнального столика. Собраться за семейным столом станет проблематично, зато сэкономит вам место и не усложнит прием пищи. Можете разместить сразу несколько маленьких столиков рядом с диваном, для всех членов семьи и друзей.

Совмещая кухню и гостиную, позаботьтесь о достаточном месте, для размещения и отдыха всех членов семьи.Обязательно следите, чтобы все помещение было выполнено в общем стиле. Если места достаточно, можете использовать импровизированную гостиную для хранения каких-то крупных вещей, таких как велосипед.
Гостиная и спальня вместе в маленьком доме
Разумеется, спальня — уединенное место. Но если она является единственной комнатой в доме, то гостей вам придется принимать тоже там. Позаботьтесь, чтобы помимо кровати, в такой комнате была мебель для их размещения.
Разграничьте пространство таким образом, чтобы гостевая зона не мешала месту для сна. В интерьере гостиной традиционно принято использовать телевизор. Позаботьтесь о том, чтобы его присутствие не отвлекало вас во время приготовлений ко сну. Уже давно известно, что установка телевизора в спальне — не лучшая идея.

Дизайнеры предлагают выполнять такие комнаты в мягких спокойных тонах. Преобладание ярких красок и обилие аксессуаров, характерное для гостиных комнат, будут мешать вам настроиться на сон и отдохнуть в такой спальне. Отличное решение для интерьера небольшого дома.
Рабочее место в гостиной для экономии места в доме
Нередки случаи, когда в маленьких домах приходится совмещать место для гостей и рабочий кабинет. Сейчас люди часто берут работу на дом и наличие рабочего места им необходимо.
Решение найти не сложно — разместите небольшой рабочий стол в углу комнаты. Выбирайте светлое место около окна
Обратите внимание на то, чтобы мебель в рабочей зоне, совпадала по стилистике с оформлением гостиной. У некоторых производителей мебели вы сможете выбрать сразу готовый комплект

Хороший способ сэкономить пространство — найти стенку для гостиной со встроенным рабочим столом. Так вы обретете не только компактный рабочий стол, но и интересное дизайнерское решение для интерьера.

21 Тщательно современный взгляд на крошечный дом

Нам нравится современная, уютная атмосфера, которую мы получаем от этого крошечного дома, и владелец теперь живет мечтой. Хотя это выглядит как дом, в котором хотел бы жить даже миллионер, его стоимость может составить всего около 11 000 долларов. Загородная жизнь. Сейчас она живет без арендной платы и ипотеки в своем доме площадью 196 квадратных футов..
И она действительно живет мечтой.
Стены сделаны из переработанного дерева, хотя конечный результат является современным и стильным. Это означает, что этот дом повторно использует материалы, чтобы сделать что-то совершенно новое, функциональное, домашнее и милое! Когда мы можем переехать?
Красивые террасы и веранды для дачи
Задачей летних пристроек является не только увеличение общей площади дома за счет дополнительных квадратных метров, но и получения помещение в котором всегда будет приятно расслабиться на удобных качелях или кресле, принять солнечную ванну, позагорать, насладиться ароматом душистых цветов и почувствовать ласковое прикосновение летнего ветерка.
Просторная и роскошная терраса оборудованная всем, что нужно для незабываемого отдыха
И помните, только вложив душу, в оформление интерьера вы получите самую прекрасную пристройку для отдыха, приема гостей и провождения семейных праздников.
Ничем не ограничивайте вашу фантазию, творите, пробуйте, экспериментируйте и у вас все получится…


Материал: Пеноблок / Газобетон


Материал: Пеноблок / Газобетон


Материал: Пеноблок / Газобетон, Монолит


Материал: Пеноблок / Газобетон


Материал: Пеноблок / Газобетон


Материал: Пеноблок / Газобетон


Материал: Пеноблок / Газобетон


Материал: Бетонные блоки

Материал: Пеноблок / Газобетон


Материал: Кирпич


Материал: Кирпич


Материал: Пеноблок / Газобетон
Проекты домов с террасой прекрасно подойдут тем, кто любит комфортное времяпрепровождение на свежем воздухе . Терраса представляет собой дополнительную пристройку к дому, имеющую вид площадки или настила и является не только практичным, но и эстетичным дополнением к коттеджу. Терраса может быть открытой или застекленной. Как правило, площадка в доме с террасой не отапливается.
Все типовые проекты домов с террасой адаптируются под регион строительства (грунты и местные климатические условия ), а так же пожелания Заказчиков по материалам стен – БЕСПЛАТНО (кроме проектов, предлагаемых по акции со скидкой). При необходимости, могут быть внесены дополнительные изменения в габаритные размеры дома, планировки, конструкции фундамента, стен, перекрытий дома или коттеджа с террасой.





































