Виды жалюзи для кухни
Нынешние магазины предлагают огромное количество самых разных жалюзи, но для кухни подойдут лишь отдельные виды. Чтобы разобраться, какие жалюзи лучше, нужно рассмотреть характерные особенности каждого из них.
Горизонтальные – с горизонтальным расположением ламелей. Именно этот тип пользуется огромным спросом.
Преимущества горизонтальных жалюзи:
- Компактность;
- Удобство в эксплуатации;
- Легко регулируют интенсивность освещения и прекрасно защищают помещение от жарких лучей;
- Для их изготовления используют целый ряд материалов – дерево, бамбук, пластик и алюминий;
- Подходят для маленьких окон и компактных кухонь;
- Имеют обширную цветовую палитру;
- Представлены разной шириной ламелей;
Недостатки горизонтальных жалюзи:
- На таких жалюзи очень быстро оседает пыль и грязь, поэтому мыть их придется достаточно часто – 1-2 раза в неделю;
- Полосатый свет, проникающий сквозь ламели, утомляет глаза;
- Ограничение длины ламелей до 2 метров. Жалюзи с большим пролетом прогибаются под собственным весом.
Вертикальные – с вертикальным расположением ламелей.
Преимущества вертикальных жалюзи:
- Повышенная влагостойкость;
- Подходят для больших и маленьких кухонь;
- Визуально приподнимают низкие потолки;
- Могут поворачиваться под каким угодно углом;
- Прекрасно сочетаются со шторами и занавесями разных видов;
- Фиксируются на любой высоте;
- Устанавливаются и на пластиковые, и на деревянные окна;
- Ткань жалюзи подвергается обработке специальным составом, сохраняющим цвет и отталкивающим влагу и пыль;
- Возможность фотопечати – еще один весомый плюс.
- Придают кухне особый уют.
Недостатки вертикальных жалюзи:
- Не позволяют использовать подоконник для хозяйственных нужд;
- Чистка вертикальных жалюзи – довольно хлопотное дело, требующее немало времени и сил;
- При сквозняке и открытом окошке, ламели будут путаться между собой и сильно болтаться.
Рулонные – представляют собой одно сплошное полотно.
Преимущества рулонных жалюзи:
- Выглядят очень стильно и красиво, так как нередко выполняются с рисунком;
- Это замечательное решение для кухонь в минималистическом или же восточном стиле;
Недостатки рулонных жалюзи:
- Их трудно очистить от копоти и капелек жира, да и сама грязь на таких жалюзи очень заметна, что негативно сказывается на внешнем виде всей кухни;
- Их нельзя тереть, мыть с сильнодействующим моющим средством и обильно поливать водой. Для этих целей больше подходит химчистка;
- Полотно рулонной шторы быстро впитывает все ароматы;
- Детали этих жалюзи выполнены из пластика, который имеет невысокую прочность;
- Установив рулонные жалюзи не на профиль, а на раму, вы не сможете открыть форточку или окно.
Основные преимущества рулонных штор
К основным плюсам рулонных штор относятся:
- В отличии от жалюзи, рулонные шторы отличаются огромным ассортиментом различных фактур и тканей с рисунками.
- Рулонные шторы можно подбирать практически под любой интерьер, они позволяют сделать оформление окна более законченным.
- Владельцы рулонных штор не имеют никаких проблем с уходом или управлением ими. С помощью обычной цепочки штора с легкостью поднимается и фиксируется на любой высоте.
- Рулонные шторы отлично сочетаются с гардинами, которые позволяют не только отрегулировать свет, но и создавать дополнительные цветовые решения. В данном случае они являются отличной альтернативой обычным шторам, нуждающимся в дополнительном уходе — как правило, они собирают на себе пыль, кроме того плохо поддаются глажке после стирки.
- Замечательно выглядят роллеты с цветной рамой — при использовании закрытой системы против солнечных лучей окно выглядит довольно цельно. К примеру, чтобы сделать окно с витражами, нужно подобрать к тканевому роллету полупрозрачный материал с рисунком.
- Рулонные шторы, как правило, изготавливают из специальных тканей, обработанных пылеотталкивающим составом. Он помогает сохранить цвет или рисунок от выгорания на солнце. Поэтому, если у вас нет времени на уборку, советуем купить роллеты из ткани и надолго забыть о глажке и стирке штор.
На что обратить внимание при выборе
Сначала определитесь, куда вы собираетесь повешать шторы. Рулонные шторы можно смонтировать непосредственно на оконных створках, а также установить внутри проема окна либо над проемом
В первых двух случаях важно проверить, чтобы фурнитура оконного блока не мешала свободно закрывать и открывать шторы
Затем определите, какой вариант конструкции лучше выбрать, и какой тип управления вам больше подходит. На створки рекомендуется крепить конструкции закрытого типа – полотно не будет свешиваться, когда створка пластикового окна приоткрыта на проветривании. Шторы блэкаут нужно приобретать в обязательном порядке с закрытой конструкцией, чтобы обеспечить полноценное затемнение помещения.
Также важно правильно рассчитать размер конструкции – производители предлагают широкий выбор рулонных штор, которые различаются диаметром и шириной вала. При расчете длины шторы лучше предусмотреть небольшой запас, поскольку недостаток длины выглядит не эстетично и снижает функциональность шторы. На следующем этапе следует правильно выбрать ткань
Для изготовления рулонных штор используются различные ткани, в том числе нейлон, хлопок, фибергласс. Материал проходит специальную обработку, после которой он не притягивает и не накапливает пыль, и не выгорает под воздействием солнечных лучей
На следующем этапе следует правильно выбрать ткань. Для изготовления рулонных штор используются различные ткани, в том числе нейлон, хлопок, фибергласс. Материал проходит специальную обработку, после которой он не притягивает и не накапливает пыль, и не выгорает под воздействием солнечных лучей.
Цвет, фактура и рисунок ткани подбирается с учетом общей цветовой гаммы помещения и его назначения. К примеру:
- для использования в офисах и учреждениях подходят светлые однотонные ткани приятного оттенка;
- для создания эффекта витража выбирают полупрозрачную ткань с подходящим рисунком;
- джутовое полотно подходит для окон в кухне, на лоджии, поскольку добавляет спокойного уюта;
- для детской можно подобрать ткань с веселым рисунком;
- цвет и фактура полотна штор в гостиной или спальне может перекликаться с текстильным оформлением помещения;
- шторы блэкаут незаменимы при создании домашнего кинотеатра.
Заключение
Выбирая рулонные шторы, обратите внимание на принцип установки конструкции. К примеру, производители предлагают модели для крепления на створки окон, монтаж которых не требует сверления рамы. Короб шторы, которая крепится снаружи оконного проема, может быть установлен на стену или на потолок – выбор зависит от особенностей архитектуры и интерьера конкретного помещения
Можно сочетать рассеивающие рулонные шторы на створках окна со шторой блэкаут, полностью закрывающей проем
Короб шторы, которая крепится снаружи оконного проема, может быть установлен на стену или на потолок – выбор зависит от особенностей архитектуры и интерьера конкретного помещения. Можно сочетать рассеивающие рулонные шторы на створках окна со шторой блэкаут, полностью закрывающей проем.
Рулонные шторы для пластиковых окон пользуются высоким спросом благодаря своей практичности. К преимуществам рулонных штор также можно отнести оригинальный внешний вид, компактность, простоту и удобство использования, многофункциональность.
Видео по теме «как выбрать рулонные шторы на пластиковые окна»:
Крепеж рулонных штор
Здесь мы более подробно рассмотрим как крепить рулонные шторы к потолку и оконной раме при помощи просверленных отверстий и без них. Как уже говорилось выше рулонные шторы можно крепить к потолку над окнами.
В этом случае установка штор производится с помощью сверления отверстий, в которые монтируют крепежи. На крепежи устанавливают штатив со шторой. То же самое можно сделать непосредственно на раме окна.
Если Вам жалко портить раму пластикового окна сверлением отверстий, есть вариант установки рулонных штор без сверления. Для этого пригодится двухсторонний скотч или специальный клеевой состав. Однако такой вариант подойдёт только для маленьких штор.
Также устанавливаются и направляющие для ткани. В установке небольших штор на пластиковые окна нет ничего сложного и Вы вполне можете справиться с ней самостоятельно. Устанавливать большие шторы лучше пригласив специалистов.
В установке штор непосредственно на раму есть свои преимущества. Во-первых, экономится пространство комнаты, во-вторых, рулонная штора защищает стекло от загрязнений и повреждений. И, в-третьих, при использовании такого варианта крепления, возможно применение других дизайнерских решений. Например, можно дополнить рулонные шторы длинными в пол, или итальянскими шторами.
Крепление к потолку позволяет закрыть окно одной монолитной шторой, что в определенных интерьерах смотрится довольно интересно. Особенно такой вид штор актуален в комнате с большими окнами.
Итак, устанавливая рулонные шторы, Вы делаете просторнее помещение комнаты. Как закрытый, так и открытый механизмы имеют свои преимущества. Открытый механизм рулонных штор проще как в установке, так и в эксплуатации. Он ниже в цене, однако смотрится менее аккуратно, чем открытый механизм.
Рулонные шторы отлично подходят для интерьера маленькой кухни. Они легко отталкивают грязь, их можно снять с рулона и просто выступать при появлении загрязнений. Благодаря утяжелителям по краю шторы, их не развевает сквозняками, что делает их соответствующими пожаробезопасности.
Ещё одним преимуществом рулонных штор является возможность управлением естественного освещения в комнате. Кстати, управление штор может осуществляться дистанционно.
Выбирая рулонные шторы Вы делаете шаг в сторону технологичности и уюта.
Как зависит выбор штор от размера кухни
Несмотря на минимализм дизайна, рольшторы могут внести диссонанс в интерьер кухни. Если в просторном помещении даже неудачно выбранные шторы можно уравновесить другим декором: скатертью, настенным панно, то в маленьком к выбору нужно подойти иначе.
И без того маленькую кухню большое число фактур и оттенков зрительно уменьшат, поэтому определите главный тон и вокруг него выстраивайте интерьер.
Иногда контраст может быть и выигрышным. Так, в бело-черной кухне цветные рулонные шторы внесут нотку тепла и уменьшат монотонность. Но только используйте однотонные полотна без рисунков.


Размерный ряд готовых изделий
Выбирая рулонные шторы на пластиковые окна важно также знать какие бывают размеры заводских образцов. Здесь производители предлагают ассортимент как для отдельных створок, так и для оконного проема в целом
Первые актуальны, если в конструкции присутствуют открывающиеся рамы. Тогда ночью не приходится открывать все стеклопакеты для проветривания или сдвигать ткань в сторону от окна. От последнего полотно нередко деформируется и быстрее пачкается.
Для определения ассортимента рольштор по размерам производители ориентируются на стандарты ГОСТа 54863 от 2011 года. Документ составлен для жалюзи и ставень, но также распространяется на изделия для внутреннего применения. А среди них присутствуют и рулонные шторы (включая межстекольные с автоматическим управлением). Также можно отталкиваться от стандартных оконных конструкций. Но в случае со стеклопакетами (особенно в частном секторе) не существует постоянных величин
Поэтому во внимание берется третий момент – покупательский спрос. На основании перечисленного часто приходится сталкиваться с различными таблицами размеров в зависимости от компании
Но все значения условно можно объединить в такие пределы:
- ширина – до 3500 мм;
- высота – до 3000 мм.

За минимальное значение ширины принято считать 300 мм. Длину всегда можно выбрать с запасом, так как полотно не обязательно полностью распускать. Чаще показатель не превышает 1800 мм. Здесь главное, чтобы ткани было достаточно, дабы закрыть им весь стеклопакет. Многие производители предлагают услуги по выполнению индивидуальных заказов. То есть необязательно ограничиваться только таблицами «товарных» размеров рулонных штор на пластиковые окна.
Правильный алгоритм снятия мерок
С учетом конструктивных различий и широкого ассортимента рулонных штор на пластиковые окна, стоит разобраться как правильно измерить их размер. Здесь самое важная величина – ширина. С длиной всегда проще. Нужно учитывать показатели касательно проема и стеклопакета. Первый может быть закрыт полотном снаружи (что редко) или стать ограничивающим фактором (откосы подстраивать под шторы никто не станет).
Касательно стеклопакета рассматриваются размеры, если занавес планируется монтировать внутри оконного проема.

Здесь нужно учитывать следующие моменты:
- ширина светопрозрачной вставки – это необходимый минимум, который проверяется в разных точках по всей высоте створки или окна в целом (они могут отличаться, а за расчетную единицу берется минимальный показатель);
- ширина штапика – запас берется для частичного или полного по возможности устранения просвета между тканью и рамным переплетом, хотя оптимальными считаются 30-40 мм (обычно ткань близко прилегает к раме, а снизу дополнительно прижимается с помощью небольших магнитов);
- расстояние от ручки или петель (прочей фурнитуры) до штапика – это предельный запас для ширины полотна, чтобы оно не ровно свисало и перекрывало стеклопакет.
Открытого типа рольшторы, как правило, комплектуются крепежными элементами с площадками и зацепами. Но лучше этот момент уточнять у продавца, так как фиксаторы не всегда у разных производителей имеют одинаковые размеры и форму. В любом случае с обеих сторон к определенной для ткани ширине нужно прибавить запас для заглушек с блока управления. Обычно это не более 15-20 мм. Если по периметру профиль окна утоплен за откос, то такой момент может стать существенным.

Теперь рассмотрим как правильно на пластиковые окна замерить рулонные шторы закрытого типа. Ведь здесь исключается вариант самостоятельного уменьшения ширины готового изделия. А вот с параметрами ткани необходимо ознакомиться отдельно. Информация, как правило, указывается в инструкции к изделиям. Обычно разница между полотном и карнизной частью составляет 40-50 мм. А по высоте на крепление вала требуется не менее 70 мм.
Отдельно стоит обратить внимание на то, как определить размер рулонных штор на створки пластиковых окон. В таком случае ткань по все длине плотно прилегают к штапику
Поэтому оптимальные 30-40 мм и расположение фурнитуры на рамах учитывать нет необходимости. А у закрытого типа конструкций в дополнение прилагаются направляющие, которые имеют достаточно малую ширину.

Выбор рулонных штор для разных помещений
В каждой комнате своего дома любой из нас хочет чувствовать себя комфортно. Для этого необходимо как можно тщательнее отнестись к выбору рулонных штор. Ведь они способны не только украсить наше жилье, но и защитить от нежелательного проникновения солнечных лучей.



Для гостиной
Для гостиной лучше выбрать рулонные шторы типа «день-ночь». Они могут варьироваться при необходимости по интенсивности проникновения солнечного света. Также удачны будут и рулонные шторы из плотной ткани. Они создадут необходимый уют. Не менее выигрышно в маленькой гостиной смотрятся и шторы в тон стен, однако на таких шторах должны быть яркие узоры или рисунки. Так ваша гостиная станет намного оригинальнее и свежее.










Для спальни
Спальня, пожалуй, самое «интимное» место, где хочется чувствовать себя в полной безопасности, не боясь, что вас увидят или вашему «приподнятому настроению» помешает яркий солнечный свет, при этом нарушая всю чарующую атмосферу таинственного полумрака. Чтобы этого избежать приобретите туда плотные рулонные шторы светоотражающего типа. Поверьте, это будет не только полезно, но и очень стильно. Однако для поддержания общего уюта и ощущения комфорта подбирайте шторы в тон обоям или другим элементам декора и мебели. Иначе говоря, они должны быть «комплектом», а не вызывать чувство, что они «не от мира сего».








Для кухни
Не менее актуальны в своем использовании рулонные шторы и на кухне. Здесь они не столько декор, сколько функциональный предмет интерьера. Конечно же, подбирайте ткани с водоотталкивающей пропиткой, что уменьшает быстрое возникновение загрязнений. Прежде всего, рулонные шторы на кухне должны быть одним целым с общим интерьером. Не обязательно, чтобы шторы были длинными. Довольно-таки неплохо смотрятся полотна средней длины. Для данного помещения лучше подбирать шторы из натуральных тканей – они более удобны в уходе.









Из чего состоят и как работают рулонные шторы
Рулонные занавески состоят из плотного полотна, покрывающего отдельные створки или оконный проем полностью. Ткань не пропускает свет и препятствует сквознякам. При закрывании она наматывается на специальный вал. Это круглая трубка, выполненная из металла или пластика. Ее диаметр зависит от длины и толщины полотна.
Вал приходит в движение с помощью направляющего механизма, который позволяет планке вращаться в разные стороны. Натягивает штору и придает ей неподвижное положение утяжелитель, расположенный внизу. Также это могут быть магниты или крючки.
В закрытой конструкции по всему периметру полотна устанавливается рама. Она фиксирует ткань и не позволяет ей провисать. Такой короб идеально подходит для наклонных створок пластиковых окон.
В скрученном положении материал занавески может оставаться открытым. В некоторых моделях предусмотрена специальная кассета, которая укрывает ткань от загрязнений и повреждений и делает всю конструкцию незаметной. Кроме того, такой чехол может иметь оформление и служить украшением интерьера.
Существует несколько типов управления рулонными шторами.
Шнур
На торце вала располагается барабан с углублениями по окружности. Сверху на него надевается шнур с шариками. Натяжение цепочки вращает барабан в разные стороны, из-за чего полотно разматывается или собирается
Важно, чтобы свисающая часть веревочного механизма составляла не мене 2/3 длины шторы

Шнур для управления рулонными шторами
Это простая и довольно надежная конструкция, но она требует аккуратного обращения. При резких рывках цепь обрывается или сползает с барабана, и механизм заклинивает. К счастью, шнур легко заменить.
Пружина
Пружина устанавливается в намоточной трубе. Ее натяжение регулируется специальной ручкой. Такая система позволяет легко фиксировать полотно на нужном расстоянии от рамы. Вал устанавливается сверху, снизу или сразу с двух сторон. То есть полотно можно тянуть снизу-вверх или использовать две шторы одновременно.
Такой тип занавесок крепится на раме или снаружи оконного проема. Позволяет комбинировать цвета тканей и создавать оригинальные дизайнерские решения. Идеально подходит к наклонным створкам и мансардным окнам.
Система удобна в использовании, но недолговечна. Пружина быстро изнашивается и управление механизмом затрудняется. Заменой одной детали в этом случае не обойтись. Придется устанавливать новый вал. Поэтому рекомендуется вешать такие изделия в помещениях, где не требуется частая регулировка естественного освещения.
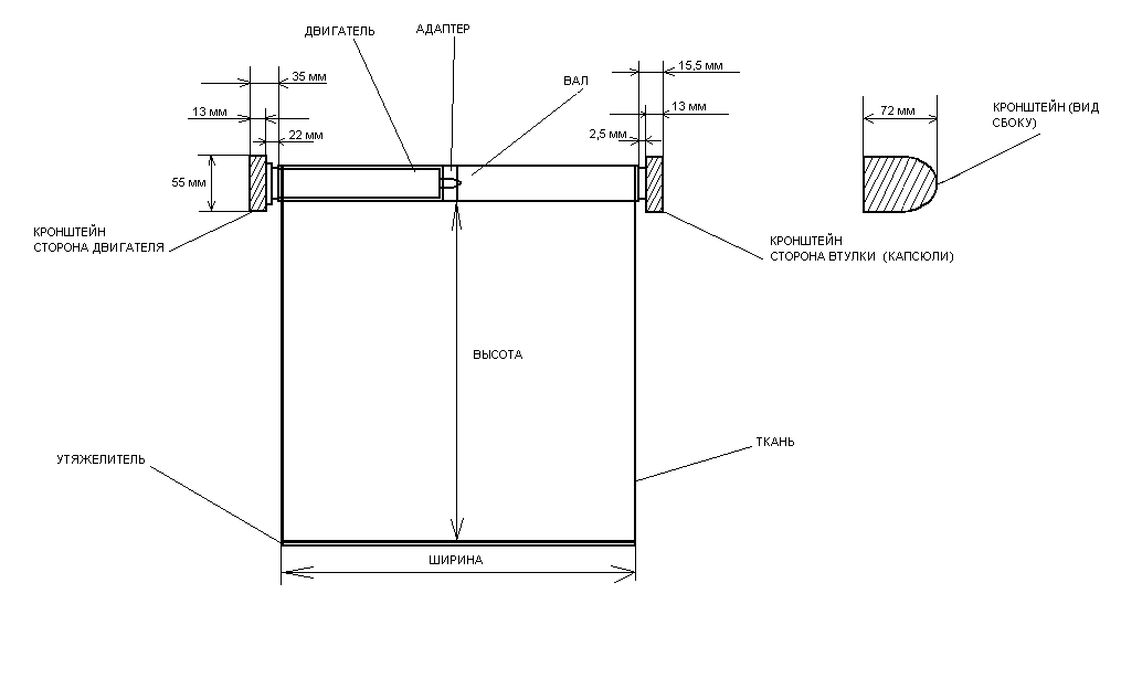
Электропривод
Внутри вала устанавливается двигатель, который приходит в движение благодаря пульту управления. Он может быть стационарным и переносным. Существуют автоматические модели с сенсорами, которые реагируют на освещение и при необходимости самостоятельно запускают механизм. Такие шторы используются на панорамных окнах, в помещениях с высокими потолками и проемах, расположенных в труднодоступных местах.
Рулонные шторы с электроприводом
Главным недостатком таких изделий является цена. Этот вариант самый дорогой из всех. Кроме того, в случае поломки самостоятельно устранить неполадки не удастся. Сложный ремонт требует участия специалиста.
Рулонные шторы на кухню
Рулонные шторы (рольшторы) практичны и эффектны. Они создают ощущение уюта, одновременно ограждая жилище от посторонних вглядов снаружи. Особенно хорошо они подходят для кухни, где многие другие варианты оформления окна могут оказаться неуместными. Как правильно выбрать рулонные шторы для кухни, какие виды рулонных жалюзи и способы их крепления существуют, какие материалы стоит использовать на кухне — читайте в этой статье.
Рулонная шторы представляет собой полотно, свернутое в компактный рулон вокруг горизонтальной оси карниза или валика. С помощью простого цепочного механизма с фиксатором шторное полотно разворачивается, спускаясь вниз, или поднимается, наматываясь на валик. Механизм имеет замки, позволяющие зафиксировать штору на любом уровне. Цепочка может быть расположена с правой или левой стороны шторы.
Ось рулона шторы иногда крепится над оконным проемом с помощью кронштейнов. Более популярный способ крепления – в самом проеме на раме окна
В этом случае штора занимает минимальное пространство, не загораживая подоконник, что особенно важно для кухни
- Они гигиеничны и эргономичны, при этом полотно может иметь выраженные декоративные свойства, благодаря окраске или рисунку на поверхности.
- Для защиты ткани в таком типе штор часто используются специальные пропитки с водоотталкивающим и пылезащитным действием. Хлопок, лен или полиэстер, из которого чаще всего изготовлено полотно, остается чистым долгое время.
- Уход за тканью с пропиткой очень прост. При необходимости поверхность можно протереть влажной тряпкой или промыть мыльным раствором.
- Хорошим вариантом для кухни будут «рулонки» с дополнительной антибактериальной и жаростойкой пропиткой полотна.
- Современные ткани для рольштор имеют стойкую окраску, не выцветающую от солнечного света.
- Крепление кухонных рулонных штор непосредственно на стеклопакет считается оптимальным. В этом случае каждая половина окна имеет отдельную штору, что позволяет свободно открывать и закрывать створки. Боковые направляющие ограничители придерживают полотно в натянутом положении.
При желании рольшторы можно легко скомбинировать с традиционными занавесками. При этом можно получить весьма интересное сочетание цветов, узоров и материалов, которое станет изюминкой вашей кухни.
Шторы Quelle
Рольшторы в разных стилях интерьера
Вы знаете, как выбрать рулонные шторы на кухню так, чтобы они гармонировали с интерьером? А ведь они подойдут любому из них.
Классическая кухня, арт-деко, модерн подружится с рулонными шторами, сделанными из плотной, фактурной ткани. Цветовая гамма благородная: белая, золотая, бордо и пр.
Хай-тек и другие столь же современные направления – это минималистский дизайн на полотнах и ткань с гладкой и ровной структурой. Цвета – от белого до ярко-зеленого или фиолетового.
Экостили: деревенский, лофт, кантри – это натуральные материалы теплых оттенков. Цвет зависит от стиля. Но он не ядовитый, а естественный.
Шебби-шик, прованс – это нежность, свет. Потому и рулонные шторы светлые, в мелкий рисунок. По нижнему краю может идти фигурная кайма.



В рулонных шторах используются различные материалы: циновка, бамбук, натуральные, синтетические и смесовые ткани, плотные и легкие, прозрачные и светонепроницаемые. Их можно вешать, как самостоятельную одежду для окон или комбинировать с занавесками.
Разнообразием оттенков, материалов, рисунков, вариаций и объясняется популярность рулонных штор на кухне. Остальное – дело фантазии и умелых рук.
Преимущества и недостатки
Чтобы решить, подходят ли рулонные шторы для применения в вашей кухне, необходимо изучить их достоинства и недостатки. Итак, начнем.

Система для рулонных штор закрытого типа
- Возможность установки конструкции несколькими способами позволяет использовать их для оформления самых сложных и нестандартных оконных проемов.
К тому же ими оборудуют окна не только в жилых помещениях, но также на балконах, лоджиях и даже дверных проемах.
- Регулируемая длинна. Такие занавески можно зафиксировать на любой высоте, что позволяет защитить комнату от попадания интенсивного солнечного света, но в то же время оставить подоконник свободным. Его, как правило, используют в качестве полки для цветов и других элементов декора.
- Превосходный внешний вид. Рольшторы выглядят стильно и современно. Кроме того, они отлично гармонируют с традиционными портьерами и тюлем. В классическом стиле можно применять их вместе с ламбрекеном. Днём вы всегда сможете спрятать роллшторы за роскошную драпировку, а вечером распустить полотно, полностью скрыв помещение от любопытных взглядов прохожих. Согласитесь, это не только красиво, но и весьма удобно.

Ухаживать за рулонными занавесками довольно просто
- Широкий ассортимент. Благодаря наличию огромнейшего количества разнообразных вариаций орнаментов, расцветок и принтов, каждый сможет найти идеальное изделие для своего интерьера. К тому же даже недорогие модели выглядят эстетично и модно. Убедитесь в этом сами, просмотрев фото рулонных штор в интерьере кухни.
- Улучшенные ткани. Шелк, хлопок, полиэстер, бамбук – это далеко не полный перечень материалов, из которых могут изготавливаться роллеры. Какую бы ткань вы не выбрали, обязательно уточните у продавца, была ли она обработана специальными составами. Например, «зеркальная» пропитка обеспечивает полное отражение солнечных лучей от поверхности. Также существуют пропитки, которые предотвращают скапливание пыли, выгорание, а также защищают ткань от воздействия влаги и высоких температур.

Чертёж рулонных штор с электроприводом
- Практичность. Ухаживать за рулонными занавесками довольно просто. Сухую чистку можно выполнить при помощи пылесоса с небольшой насадкой или обыкновенной мягкой щеткой для мебели. Если изделие сильно загрязнилось, снимите его с карниза, уберите утяжелитель и постирайте вручную. Некоторые ткани можно очистить в стиральной машинке, но температура не должна превышать 30-40°С. За сохранность дополнительных элементов механизма вы можете быть спокойны, так как все они защищены специальными крышками, благодаря которым пыль и грязь не попадают на них.
- Множество вариантов управления. Использовать электропривод, шнур или пружинную систему – решать только вам. Выбирайте для себя наиболее удобный способ регулировки, учитывая особенности размещения оконного проема.
- Защита мебели. Плотный материал, обработанный пропитками, предотвращает попадание прямых солнечных лучей на предметы декора и мебель, поэтому они не выгорают. Один раз потратившись на качественные занавески, вы значительно сэкономите на реставрации и замене потерявшей цвет мебели.
Естественно, нельзя забывать и о недостатках, которые, без сомнений, имеет каждое изделие.
- Если в вашей квартире установлены старые деревянные окна, открывать форточку будет не очень удобно. Рольшторы лучше всего подходят для оформления пластиковых окон.

Не рекомендуем экономить на роллерных шторах, ведь качественное изделие имеет длительный срок эксплуатации, а значит прослужит вам долгие годы
- Некоторые модели могут иметь ненадежный механизм скручивания, поэтому он будет часто ломаться. Не рекомендуем вам экономить на роллерных шторах, ведь качественное изделие имеет длительный срок эксплуатации, а значит прослужит вам долгие годы.
- Для некоторых стилей интерьера применение рулонных штор будет неуместно. Хотя, если вы обратитесь к услугам профессиональных дизайнеров, они смогут выполнить эксклюзивные изделия, которые превосходно впишутся даже в такие стили как барокко и ренессанс.
Как видите, список достоинств намного больше.

Для северных кухонь уместной будет тёплая гамма, поэтому отдайте предпочтение золотым, оранжевым или кремовым занавескам
Да и недостатки легко нивелировать, обратившись за помощью к специалистам.
Как выбрать
К приобретению рулонных штор следует подходить осознанно. Как сделать покупку проще подскажут критерии выбора, среди которых можно отметить.
Способ крепления
Понимание, как планируется крепить шторы, — немаловажный критерий, с которым следует определиться до приобретения изделия, с учетом плюсов и минусов каждого варианта.
Сторона открывания
Рассматриваемые изделия имеют 2 вида открывания: правое и левое. Определяется открывание в зависимости от расположения оконной ручки, т. к. цепочка должна располагаться на противоположной стороне. В случае, если створка глухая – расположение цепочки значения не имеет.

Механизм управления
С каким устройством управления лучше купить товар необходимо также определиться заранее. Это может быть цепочный вариант, который помогает регулировать расположение полотна, или дистанционное управление, когда движение ткани осуществляется с помощью электромотора.
Материал ткани. Его плотность и пропитка
От типа материи зачастую зависит срок службы изделия. При изготовлении рольштор используется различный материал. Это может быть хлопок, полиэстер, нейлон или другие ткани, как с фактурой и/или дополнительными элементами декора, так и без них.
От толщины ткани зависит её светопроницаемость. Кроме того, полотно может иметь светоотражающие и светорассеивающие свойства.
Пропитка полотна позволяет использовать его в течение длительного периода, т.к. защищает от выгорания на солнце и влаги. Кроме того, пропитка может иметь антибактериальные, антистатические свойства или уменьшать степень впитывания запахов, что актуально для кухонных вариантов.
Материал элементов конструкции
Система устройства обычно изготовлена из пластика или алюминия. Но существуют варианты, в которых используется дерево.
Назначение помещения
То, для каких целей будет использоваться помещение, также имеет значение. Офисные варианты отличаются от тех, которые пользователи выбирают для кухни или детской комнаты, к которым могут быть предъявлены дополнительные требования, например, по пропитке или светопроницаемости.

Интерьер помещения, в котором предполагается использование
Приобретая предметы оконного декора необходимо опираться на дизайн помещения, чтобы изделие не выглядело лишним элементом. Если продукция приобретается для использования в домашнем интерьере, то это нужно обязательно учитывать.
Расцветка
Этот критерий напрямую зависит и от интерьера помещения, и от его назначения. Изделие должно сочетаться с основной цветовой гаммой и соответствовать функционалу, которое выполняет помещение. Например, для спальни, расположенной в северной части дома или квартиры, подойдут «теплые» оттенки.
Характеристики
Этот вопрос подразумевает определение размеров конструкции и с какими функциями она должна быть.
Производитель




































